Įsiminti
Patalpos nuomai, Panevėžys, Rožės, Stoties g. id:453994 1 kmb.
160 € / mėn.
5,33 €/m²
Įsiminė
0
Parodymai
Šiandien: 41
Viso: 20072
Peržiūros
Šiandien: 6
Viso: 524
Objekto informacija
REKLAMA
REKLAMA
Aprašymas
Išnuomojamos komercinės paskirties patalpos, esančios Stoties g. Panevėžyje. Patalpos yra komercinio pastato antrame aukšte. Patalpų langai orientuoti į S. Kerbedžio gatvę. Patogus privažiavimas prie pastato, šalia yra didelė automobilių parkavimo aikštelė.
Pastate, kuriame nuomojamos patalpos, yra daug įvairių įmonių, parduotuvių, paslaugų paskirtis patalpų.
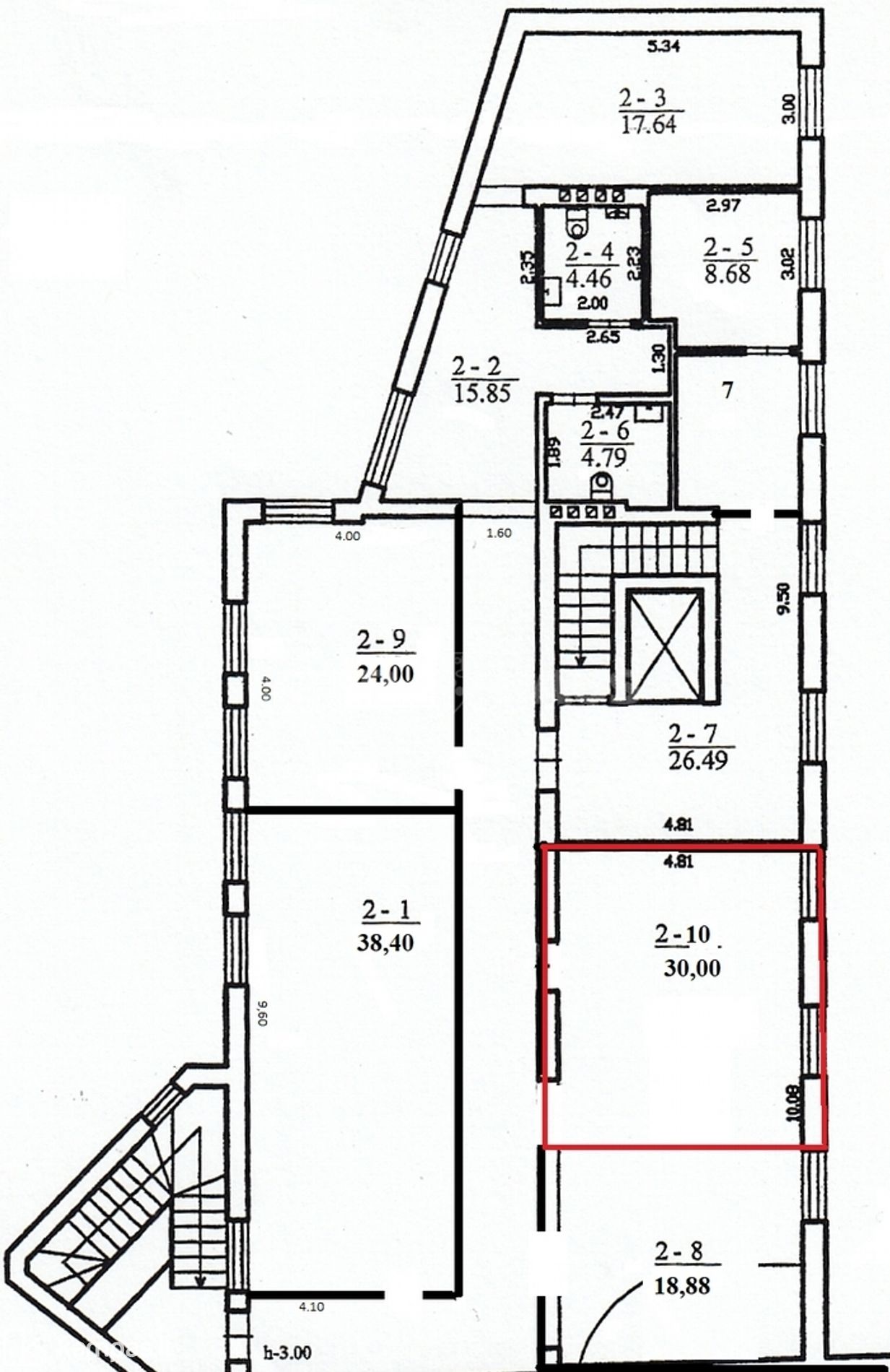
Patalpos yra pastato antrame aukšte, plotas 30 kv.m., centrinis šildymas, yra vandentiekis, kanalizacija.
Patalpų nuomos kaina 160 eur plius PVM (jei nesate PVM mokėtojas mokestis neskaičiuojamas).
-- Objekto nr. Ober-Haus tinklapyje www.ober-haus.lt/OH430580
Pastate, kuriame nuomojamos patalpos, yra daug įvairių įmonių, parduotuvių, paslaugų paskirtis patalpų.
Patalpos yra pastato antrame aukšte, plotas 30 kv.m., centrinis šildymas, yra vandentiekis, kanalizacija.
Patalpų nuomos kaina 160 eur plius PVM (jei nesate PVM mokėtojas mokestis neskaičiuojamas).
-- Objekto nr. Ober-Haus tinklapyje www.ober-haus.lt/OH430580
Nuotraukos










