Įsiminti
Patalpos nuomai, Panevėžys, Rožės, Paliūniškio g. id:1032801
1 500 € / mėn.
3 €/m²
Įsiminė
0
Parodymai
Šiandien: 9
Viso: 1739
Peržiūros
Šiandien: 20
Viso: 840
Objekto informacija
Aprašymas
Nuo 2026 01 01 Paliūniškio gatvėje nuomojamos patalpos su rampa sandėliavimui.
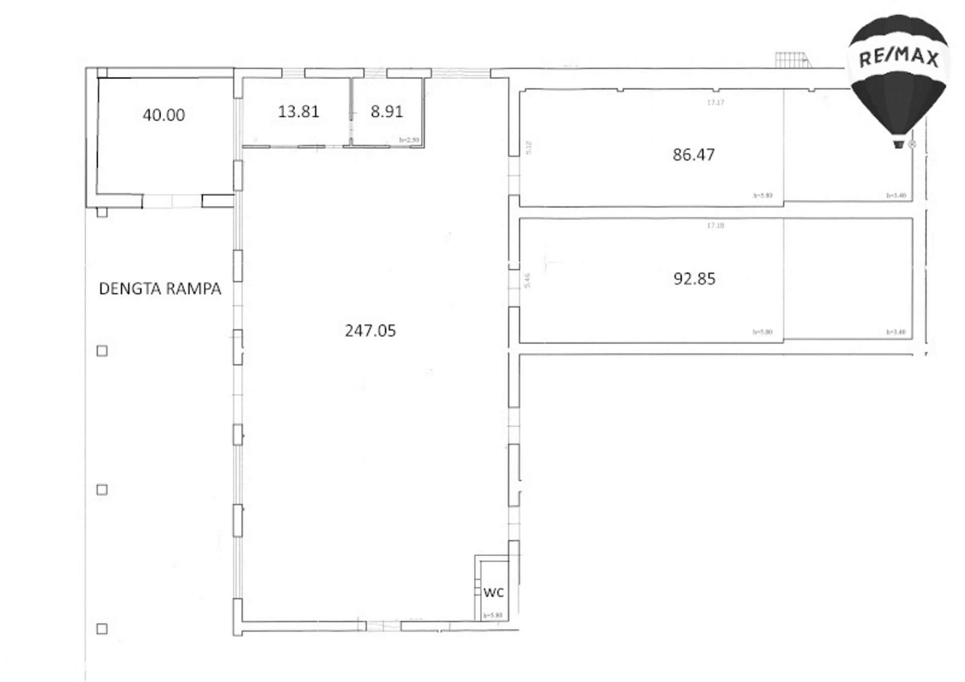
IŠPLANAVIMAS :
• Bendras plotas - 500 m².
• Dengta pakrovimo – iškrovimo rampa.
• Patalpos administracijai.
• Sanitarinė patalpa.
TECHNINĖS CHARAKTERISTIKOS:
• Sandėlio aukštis – 5,80 m.
• Priešgaisrinė, apsaugos signalizacija.
• Galimybė šildytis šilumos siurblių pagalba.
PAPILDOMA INFORMACIJA:
• Parkavimas darbuotojų ir krovininiam transportui;
• Aptverta teritorija;
• Asfaltuotas privažiavimas;
• Patogus išvažiavimas Kauno, Vilniaus, Rygos kryptimis.
KAINA – 3,00 EUR/m2 + PVM + komunaliniai mokesčiai.
IŠPLANAVIMAS :
• Bendras plotas - 500 m².
• Dengta pakrovimo – iškrovimo rampa.
• Patalpos administracijai.
• Sanitarinė patalpa.
TECHNINĖS CHARAKTERISTIKOS:
• Sandėlio aukštis – 5,80 m.
• Priešgaisrinė, apsaugos signalizacija.
• Galimybė šildytis šilumos siurblių pagalba.
PAPILDOMA INFORMACIJA:
• Parkavimas darbuotojų ir krovininiam transportui;
• Aptverta teritorija;
• Asfaltuotas privažiavimas;
• Patogus išvažiavimas Kauno, Vilniaus, Rygos kryptimis.
KAINA – 3,00 EUR/m2 + PVM + komunaliniai mokesčiai.

