Įsiminti
Sklypas pardavimui, Vilniaus r. sav., Naujasodžiai, Lankų g. id:994326
650 000 €
430 464 €/ha
REKLAMA
Įmoka
2 450 €/mėn

Paskola 552 500 €
Palūkanos 3.40%
Trukmė 30 metų
Įsiminė
0
Parodymai
Šiandien: 1
Viso: 1563
Peržiūros
Šiandien: 2
Viso: 2934
Objekto informacija
Įrengta
REKLAMA
REKLAMA
Aprašymas
Parduodamas investicinis projektas, 13 sklypų kvartalas Naujasodžių vs, Lankų g., Vilniaus rajone.
APIE PROJEKYĄ:
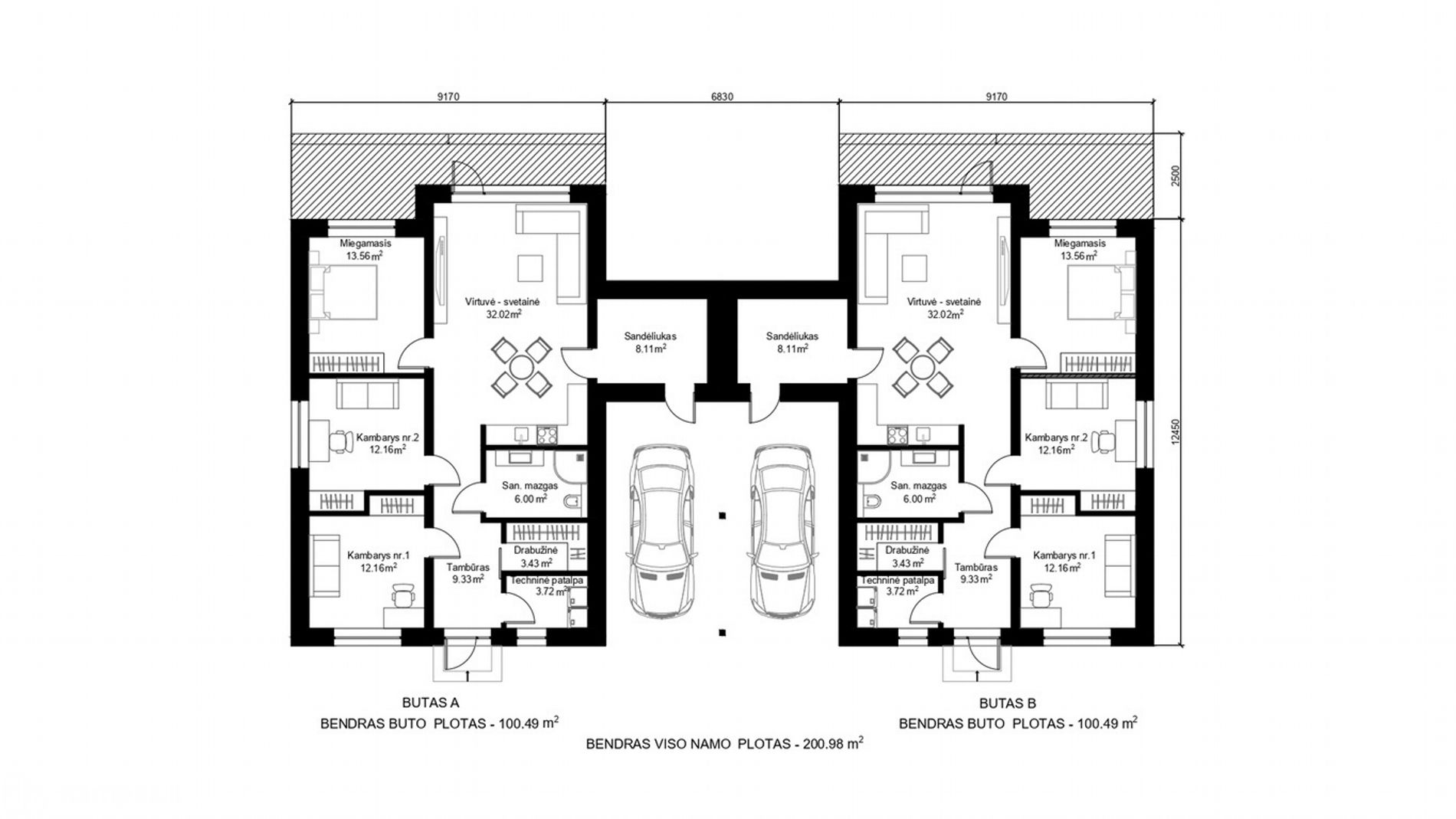
• 13 namų valdos sklypų kuriuose projektuojami dvibučiai namai (4 sklypuose pastatyti dvibučiai namai ir parduoti);
• Projektuojami ir suprojektuoti butai dvibučiuose namuose - 100 kv. m su stoginėmis automobiliams;
• Visiems sklypams pasirašyta infrastruktūros sutartis;
• 2 mėnesių bėgyje planuojama baigti tiesti vandentiekio ir nuotekų trasas;
• Nutiestas naujas kelias nuo pagrindinės gatvės iki pat projekto (su gerais pagrindais, paruoštas asfaltavimui);
• Į kainą įskaičiuoti du papildomi sklypai t. y - 134 a žemės ūkio paskirties sklypas ir 30 a. miško paskirties.
KOMUNIKACIJOS
• Elektra: galingumas butui 18 kW sklypui;
• Vandentiekis: numatomas miesto vandentiekis.
• Nuotekos: numatomos miesto nuotekos.
INFRASTRUKTŪRA:
~ 13 km iki Katedros aikštės;
~ 3 km Vilniaus r. Avižienių vaikų lopšelis-darželis
~ 3,1 km Vilniaus r. Avižienių gimnazija
~ 1,6 km „Rimi”, „Rimi Bendorėliai“
Perkant turtą kaina - 650 000 Eur.
Kilus klausimams susisiekite su manimi - +370 677 26371
APIE PROJEKYĄ:
• 13 namų valdos sklypų kuriuose projektuojami dvibučiai namai (4 sklypuose pastatyti dvibučiai namai ir parduoti);
• Projektuojami ir suprojektuoti butai dvibučiuose namuose - 100 kv. m su stoginėmis automobiliams;
• Visiems sklypams pasirašyta infrastruktūros sutartis;
• 2 mėnesių bėgyje planuojama baigti tiesti vandentiekio ir nuotekų trasas;
• Nutiestas naujas kelias nuo pagrindinės gatvės iki pat projekto (su gerais pagrindais, paruoštas asfaltavimui);
• Į kainą įskaičiuoti du papildomi sklypai t. y - 134 a žemės ūkio paskirties sklypas ir 30 a. miško paskirties.
KOMUNIKACIJOS
• Elektra: galingumas butui 18 kW sklypui;
• Vandentiekis: numatomas miesto vandentiekis.
• Nuotekos: numatomos miesto nuotekos.
INFRASTRUKTŪRA:
~ 13 km iki Katedros aikštės;
~ 3 km Vilniaus r. Avižienių vaikų lopšelis-darželis
~ 3,1 km Vilniaus r. Avižienių gimnazija
~ 1,6 km „Rimi”, „Rimi Bendorėliai“
Perkant turtą kaina - 650 000 Eur.
Kilus klausimams susisiekite su manimi - +370 677 26371
Nuotraukos












