Įsiminti
Sklypas pardavimui, Vilniaus r. sav., Bajorai, Jazminų g. id:1034139
210 000 €
10 500 €/a
REKLAMA
Įmoka
792 €/mėn
Paskola 178 500 €
Palūkanos 3.40%
Trukmė 30 metų
Įsiminė
0
Parodymai
Šiandien: 7
Viso: 609
Peržiūros
Šiandien: 2
Viso: 360
Objekto informacija
Aprašymas
Parduodami netoli miško esantys du besiribojantys namų valdos sklypai po 10 arų.
Galimybė rinktis iš dviejų sklypų arba pirkti abu.
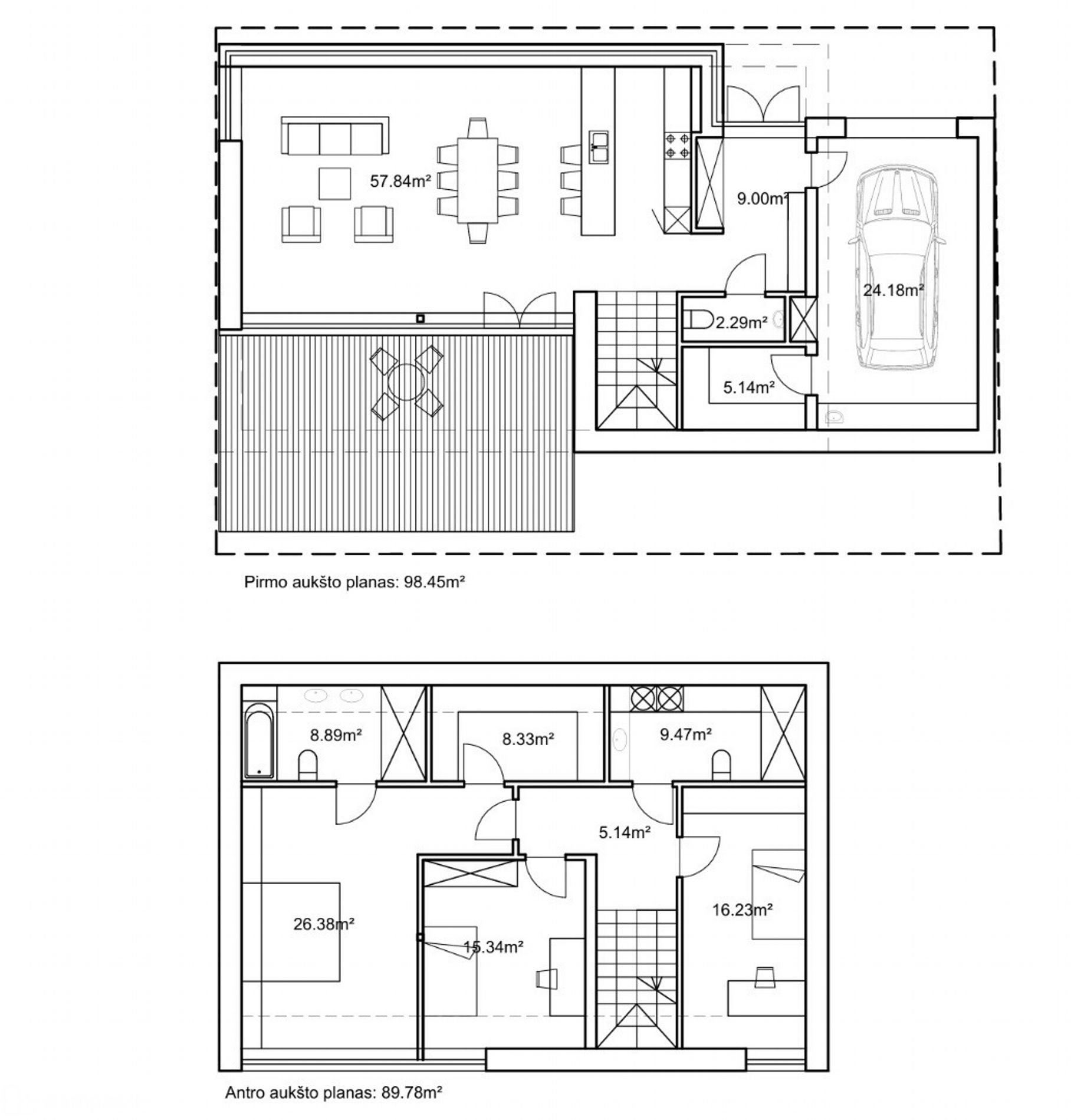
Yra paruoštas namo projektas!
Taigi, jeigu ieškote gamtos ir ramybės netoli miesto, apsuptos naujų namų kaimynystės, tai kviečiu atvykti ir tuo įsitikinti!
BENDRA INFORMACIJA:
- Adresas: Jazminų g. 16, Bajorų k., Avižienių sen., Vilniaus raj. sav.
Jazminų g. 18, Bajorų k., Avižienių sen., Vilniaus raj. sav.
- Plotas – 2 sklypai po 10 arų;
- Sklypo naudojimo paskirtis: kita;
- Žemės sklypo naudojimo būdas: vienbučių ir dvibučių gyvenamųjų pastatų teritorijos;
- Sklypas suformuotas atliekant kadastrinius matavimus.
PRIVALUMAI:
-Yra paruoštas namo projektas;
- Per sklypus eina elektra ir dujos;
- Patogus privažiavimas;
- Sklypai taisyklingos formos ir lygaus reljefo;
- Naujų namų kaimynystė;
- Sklypai netoli miškelio.
INFRASTRUKTŪRA IR VIETA:
- Vos už 12 kilometrų nuo pačio miesto centro šurmulio esantys sklypai neleidžia atitrūkti nuo miesto ritmo, tačiau priverčia įsimylėti gamtą iš naujo, mėgautis ramybe ir gamos privalumais.
- Bajorų rajonas kasmet tampa vis labiau prestižinis ir laikui bėgant jo vertė tik augs.
- Iki Vilniaus miesto centro ~ 12 km.
- Iki artimiausios viešojo transporto stotelės – 1,3 km (Šaulio st. 57 autobusas)
Nuoroda į Regia - https://www.regia.lt/map/regia2?x=579459&y=6070696&scale=2000&identify=true&sluo_ids=22,250,251,72,148,252,270,271,272,273,274,275,276,277,280,281,282,283,284,285,287,288,98,95,96,99,97,179,27,190,28,29,30,31,25,130,131,132,133
Visus naujausius CAPITAL nekilnojamojo turto skelbimus rasite mūsų internetiniame puslapyje www.capital.lt. Kviečiame apsilankyti!
Galimybė rinktis iš dviejų sklypų arba pirkti abu.
Yra paruoštas namo projektas!
Taigi, jeigu ieškote gamtos ir ramybės netoli miesto, apsuptos naujų namų kaimynystės, tai kviečiu atvykti ir tuo įsitikinti!
BENDRA INFORMACIJA:
- Adresas: Jazminų g. 16, Bajorų k., Avižienių sen., Vilniaus raj. sav.
Jazminų g. 18, Bajorų k., Avižienių sen., Vilniaus raj. sav.
- Plotas – 2 sklypai po 10 arų;
- Sklypo naudojimo paskirtis: kita;
- Žemės sklypo naudojimo būdas: vienbučių ir dvibučių gyvenamųjų pastatų teritorijos;
- Sklypas suformuotas atliekant kadastrinius matavimus.
PRIVALUMAI:
-Yra paruoštas namo projektas;
- Per sklypus eina elektra ir dujos;
- Patogus privažiavimas;
- Sklypai taisyklingos formos ir lygaus reljefo;
- Naujų namų kaimynystė;
- Sklypai netoli miškelio.
INFRASTRUKTŪRA IR VIETA:
- Vos už 12 kilometrų nuo pačio miesto centro šurmulio esantys sklypai neleidžia atitrūkti nuo miesto ritmo, tačiau priverčia įsimylėti gamtą iš naujo, mėgautis ramybe ir gamos privalumais.
- Bajorų rajonas kasmet tampa vis labiau prestižinis ir laikui bėgant jo vertė tik augs.
- Iki Vilniaus miesto centro ~ 12 km.
- Iki artimiausios viešojo transporto stotelės – 1,3 km (Šaulio st. 57 autobusas)
Nuoroda į Regia - https://www.regia.lt/map/regia2?x=579459&y=6070696&scale=2000&identify=true&sluo_ids=22,250,251,72,148,252,270,271,272,273,274,275,276,277,280,281,282,283,284,285,287,288,98,95,96,99,97,179,27,190,28,29,30,31,25,130,131,132,133
Visus naujausius CAPITAL nekilnojamojo turto skelbimus rasite mūsų internetiniame puslapyje www.capital.lt. Kviečiame apsilankyti!

