Įsiminti
Sklypas pardavimui, Kretingos r. sav., Kiauleikiai, Lazdynų g. id:415817
120 000 €
REKLAMA
Įmoka
452 €/mėn
Paskola 102 000 €
Palūkanos 3.40%
Trukmė 30 metų
Įsiminė
0
Parodymai
Šiandien: 45
Viso: 1865
Peržiūros
Šiandien: 18
Viso: 599
Objekto informacija
Aprašymas
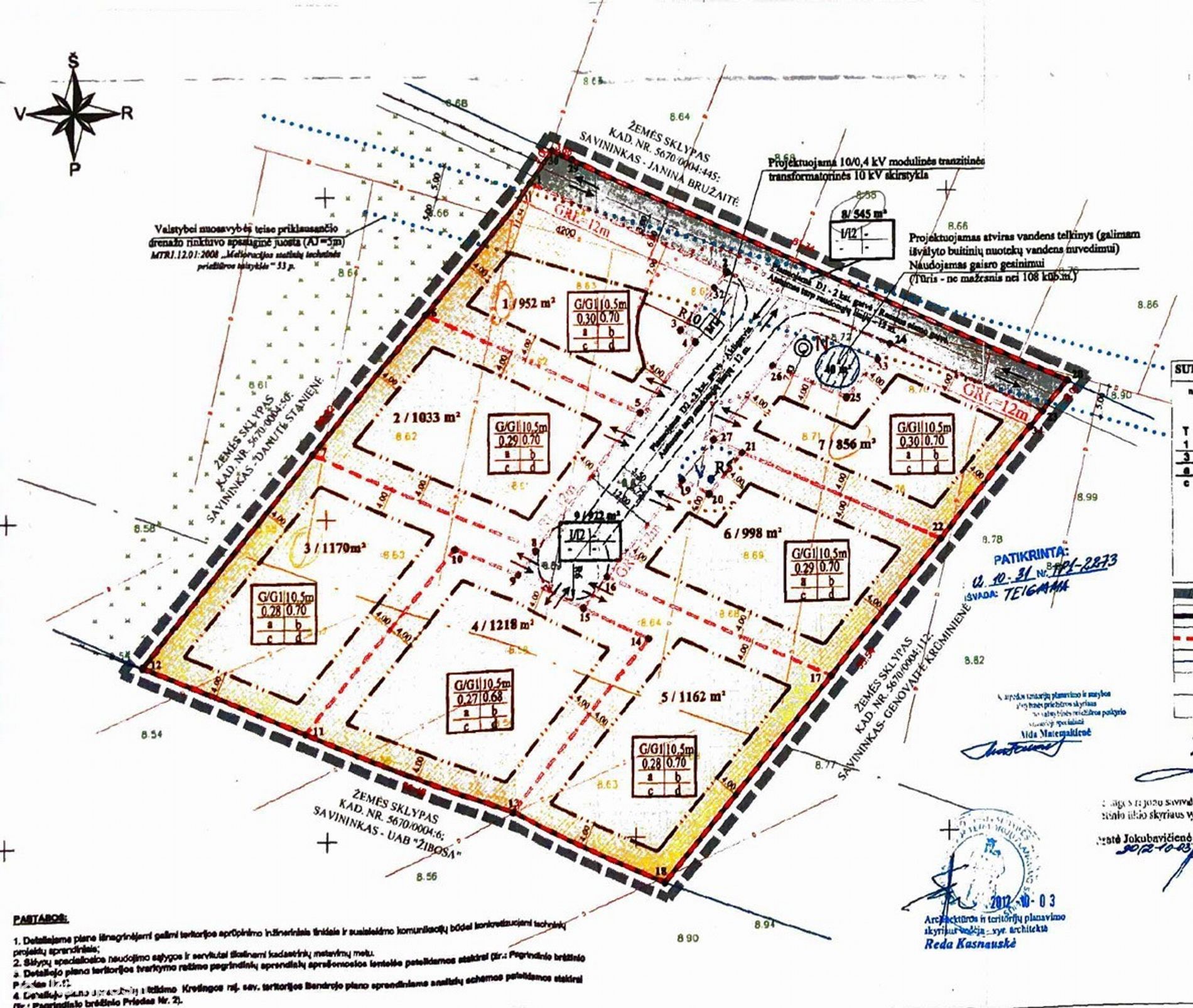
Kretingos r., Vydmantai, Kiauleikių k. Lazdynų gatvėje parduodamas 0.8856 ha žemės sklypas su Detaliuoju projektu. Sklypas detaliuoju planu padalintu į 9 sklypus, iš kurių 7 sklypai namo statybai ir 2 sklypai (9.22 ir 5.45 aro) Susisiekimo ir inžinerinių tinklų koridorių teritorijos.
Parduodamas projektas kurio bendras plotas 0.89 ha pardavimo kaina 120.000 Eur.
Agentūros ID 414293 www.avitera.lt tinklapyje.
KOMUNIKACIJOS: NĖRA
PAPILDOMA INFORMACIJA:
Pagrindinė naudojimo paskirtis: Kita;
Sklypų užstatymo tankis: 0.27 – 0.30;
Sklypo užstatymo intensivumas: 0.68 – 0.70;
Leistinas maksimalus pastato aukštis: 10.5 m;
Susisiekimo ir inžinerinių tinklų koridorių teritorijos. Sklypai turi registrų centre įregistruotas bylas.
Gyvenamosios namų statybos paskirties sklupų bylos parengtos įregistravimui.
PAGRINDINĖ SUPROJEKTUOTŲ SKLYPŲ PASKIRTIS NUMATOMA:
Pagrindinė naudojimo paskirtis: Kita;
Naudojimo būdas: Gyvenamosios teritorijos;
Naudojimo pobūdis: Vienbučių ir dvibučių gyvenamųjų namų statybos;
NT REGISTRO CENTRO IŠRAŠO DUOMENYS:
Kadasrtinė vietovė: Vydmantų k.v.
Bendras sklypų plotas: 0.8856 ha;
Žemės sklype įrengtos valstybei prikausančios melioracijos sistemos bei įrenginiai 0.8856 ha;
Matavimų tipas: Žemės sklypas suformuotas atliekant kadastrinius matavimus;
Kelio servitutas- teisė važiuoti transporto priemonėm, naudotis taku, varyti galvijus (viešpataujanis)
Kelio servitutas- teisė važiuoti transporto priemonėm, naudotis taku, varyti galvijus (tarnaujantis)
Žemės naudmenų našumo balas: 32.7
Kontaktinis asmuo: Vlada Simonaitienė, [email protected], tel. +370 600 27085, mob. +370 46 411673.
Parduodamas projektas kurio bendras plotas 0.89 ha pardavimo kaina 120.000 Eur.
Agentūros ID 414293 www.avitera.lt tinklapyje.
KOMUNIKACIJOS: NĖRA
PAPILDOMA INFORMACIJA:
Pagrindinė naudojimo paskirtis: Kita;
Sklypų užstatymo tankis: 0.27 – 0.30;
Sklypo užstatymo intensivumas: 0.68 – 0.70;
Leistinas maksimalus pastato aukštis: 10.5 m;
Susisiekimo ir inžinerinių tinklų koridorių teritorijos. Sklypai turi registrų centre įregistruotas bylas.
Gyvenamosios namų statybos paskirties sklupų bylos parengtos įregistravimui.
PAGRINDINĖ SUPROJEKTUOTŲ SKLYPŲ PASKIRTIS NUMATOMA:
Pagrindinė naudojimo paskirtis: Kita;
Naudojimo būdas: Gyvenamosios teritorijos;
Naudojimo pobūdis: Vienbučių ir dvibučių gyvenamųjų namų statybos;
NT REGISTRO CENTRO IŠRAŠO DUOMENYS:
Kadasrtinė vietovė: Vydmantų k.v.
Bendras sklypų plotas: 0.8856 ha;
Žemės sklype įrengtos valstybei prikausančios melioracijos sistemos bei įrenginiai 0.8856 ha;
Matavimų tipas: Žemės sklypas suformuotas atliekant kadastrinius matavimus;
Kelio servitutas- teisė važiuoti transporto priemonėm, naudotis taku, varyti galvijus (viešpataujanis)
Kelio servitutas- teisė važiuoti transporto priemonėm, naudotis taku, varyti galvijus (tarnaujantis)
Žemės naudmenų našumo balas: 32.7
Kontaktinis asmuo: Vlada Simonaitienė, [email protected], tel. +370 600 27085, mob. +370 46 411673.

