Įsiminti
Sklypas pardavimui, Klaipėdos r. sav., Peskojai id:1033531
46 000 €
REKLAMA
Įmoka
173 €/mėn
Paskola 39 100 €
Palūkanos 3.40%
Trukmė 30 metų
Įsiminė
0
Parodymai
Šiandien: 6
Viso: 1414
Peržiūros
Šiandien: 11
Viso: 334
Objekto informacija
Įrengta
Aprašymas
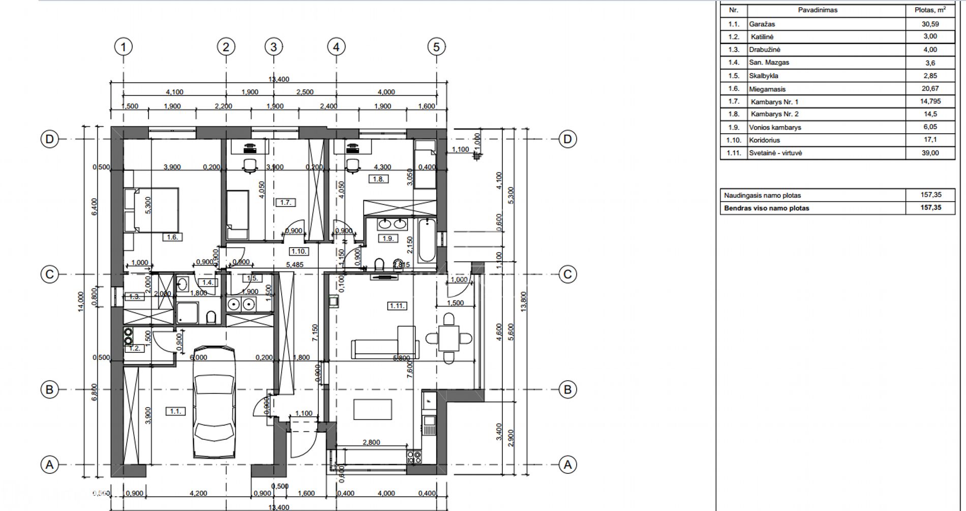
Parduodamas sklypas su namo projektu ir statybos leidimu Peskojuose, Saulėlydžių g.
Ieškote vietos savo svajonių namui? Tai puikus pasiūlymas – 10,27 arų sklypas jau su parengtu 157,35 kv. m namo projektu ir išduotu statybos leidimu (B energinio naudingumo klasė).
Pagrindinė informacija:
Vieta: Peskojai, Saulėlydžių g.
Sklypo plotas: 10,27 a
Namo projektas: 157,35 kv. m, B klasė
Statybos leidimas – yra
Išpilti pamatai – sutaupysite laiko ir lėšų
Elektra – 18 kW
Kvartalo komunikacijos – patogus prisijungimas
Privalumai:
Rami, sparčiai besivystanti gyvenvietė
Patogus privažiavimas
Sutvarkyta infrastruktūra
Galimybė iš karto pradėti statybas
Tai puiki galimybė įsikurti gamtos apsuptyje, tačiau netoli miesto patogumų.
Daugiau informacijos suteiksiu telefonu – mielai atsakysiu į Jums rūpimus klausimus.
Gediminas, NT vadybininkas
NT agentūra „Tikės grupė“
+370 631 27200 Kontaktinis asmuo: Gediminas Nazarovas, [email protected], tel. +37063127200, mob. +37063127200.
NT agentūra „Tikės grupė“
+370 631 27200 Kontaktinis asmuo: Gediminas Nazarovas, [email protected], tel. +37063127200, mob. +37063127200.

