Įsiminti
Patalpos nuomai, Vilnius, Užupis, Polocko g. id:1033486
2 000 € / mėn.
17,24 €/m²
Įsiminė
0
Parodymai
Šiandien: 58
Viso: 87
Peržiūros
Šiandien: 21
Viso: 29
Objekto informacija
Aprašymas
Prestižinės patalpos naujame name Užupyje su tiesioginiu iėjimu iš gatvės ir puikiu matomumu
Pagrindinės savybės:
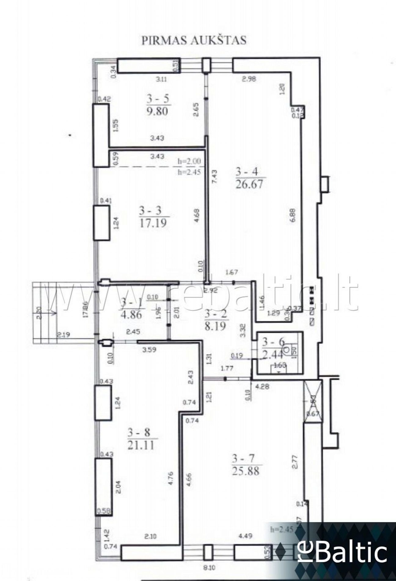
- Patalpos sudalintos į priimamąjį, dvi dideles erdves, susitikimų kambarį ir kabinetą
- Aukštos klasės įrengimo medžiagos ir apdaila
- Patalpos išnuomojamos su baldais, yra 7 darbo stalai, spintos, priimamojo baldai, minkštų baldų komplektas susitikimų kambaryje
- Rekuperacija
- Kondicionieriai
- Reguliuojamas apšvietimas susitikimų kambaryje, reguliuojama šviesos spalva
- Mažos išlaikymo sąnaudos, autonominis dujinis katilas Bosch, grindinis šildymas
- Automobilių statymas uždaroje parkavimo aikštelėje (papildomai 60 eur/mėn) arba mokamoje zonoje gatvėje priešais namą
- Ant pastato fasado galima uždėti įmonės iškabą
Kaina + GPM + NTM
--
Prestigious premises in a new building in Užupis with direct street access and excellent visibility
Key features:
- The premises are divided into a reception area, two large spaces, a meeting room and an office
- High-class installation materials and finishing
- The premises are rented with furniture, there are 7 desks, wardrobes, reception furniture, a set of soft furniture in the meeting room
- Recuperation
- Air conditioners
- Adjustable lighting in the meeting room, adjustable light color
- Low maintenance costs, autonomous Bosch gas boiler, underfloor heating
- Car parking in a closed parking lot (additional 60 eur/month) or in a paid zone on the street in front of the house
- It is possible to put a company sign on the facade of the building
Price + PIT + RET0000-00-00 00:00:00
RebalticID: IV37120
Pagrindinės savybės:
- Patalpos sudalintos į priimamąjį, dvi dideles erdves, susitikimų kambarį ir kabinetą
- Aukštos klasės įrengimo medžiagos ir apdaila
- Patalpos išnuomojamos su baldais, yra 7 darbo stalai, spintos, priimamojo baldai, minkštų baldų komplektas susitikimų kambaryje
- Rekuperacija
- Kondicionieriai
- Reguliuojamas apšvietimas susitikimų kambaryje, reguliuojama šviesos spalva
- Mažos išlaikymo sąnaudos, autonominis dujinis katilas Bosch, grindinis šildymas
- Automobilių statymas uždaroje parkavimo aikštelėje (papildomai 60 eur/mėn) arba mokamoje zonoje gatvėje priešais namą
- Ant pastato fasado galima uždėti įmonės iškabą
Kaina + GPM + NTM
--
Prestigious premises in a new building in Užupis with direct street access and excellent visibility
Key features:
- The premises are divided into a reception area, two large spaces, a meeting room and an office
- High-class installation materials and finishing
- The premises are rented with furniture, there are 7 desks, wardrobes, reception furniture, a set of soft furniture in the meeting room
- Recuperation
- Air conditioners
- Adjustable lighting in the meeting room, adjustable light color
- Low maintenance costs, autonomous Bosch gas boiler, underfloor heating
- Car parking in a closed parking lot (additional 60 eur/month) or in a paid zone on the street in front of the house
- It is possible to put a company sign on the facade of the building
Price + PIT + RET0000-00-00 00:00:00
RebalticID: IV37120
Nuotraukos
