Patalpos nuomai, Vilnius, Šnipiškės, Žalgirio g. id:1028407
Objekto informacija
Aprašymas
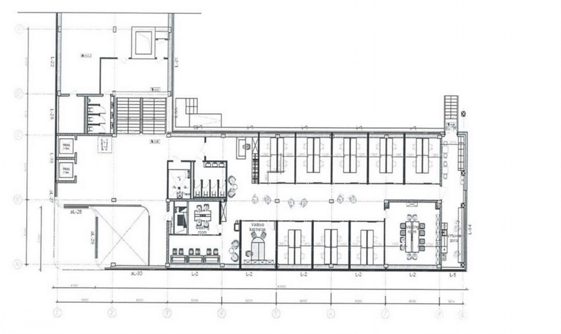
Nuomojamos 405 kv.m. biuro paskirties patalpos verslo centre Žalgirio g., Šnipiškėse, Vilniuje.
Gera patalpų vieta, puikus susisiekimas transportu;
A klasės energinio efektyvumo centras;
Visos komunikacijos;
II a.;
Patalpos įrengtos;
Kabinetinis išplanavimas su virtuvėlės erdve, vieta administratoriai, poilsio zona;
Vėdinimas, kondcionavimas, šildymas;
Nedideli eksplotaciniai kaštai;
3 lygių automobilių parkavimo aikštelė;
Dviračių saugykla, dušai;
Elektromobilių įkrovmo stotelė;
Galima patalpų pritaikymas pagal nuomininko poreikius.
Nuomos kaina 14 eur/kv.m. + komunaliniai + PVM.
Jei šis variantas ne pilnai atitinka Jūsų lūkesčius, susisiekite, pasiūlysime kitus variantus.
Dėl apžiūros ar detalesnės informacijos skambinkite tel. 864626007 arba rašykite el.p. [email protected]
***********************************************************************************************
Nuomos kaina ir sąlygos nurodytos nuomotojo. NĖRA AGENTŪROS MOKESČIO.
Nuotraukos






