Patalpos nuomai, Vilnius, Šnipiškės, Slucko g. id:1028705
250 € / mėn.
22,73 €/m²
Įsiminti
Įsiminė
0
Parodymai
Šiandien: 88
Viso: 299
Peržiūros
Šiandien: 18
Viso: 48
Objekto informacija
REKLAMA
REKLAMA
Aprašymas
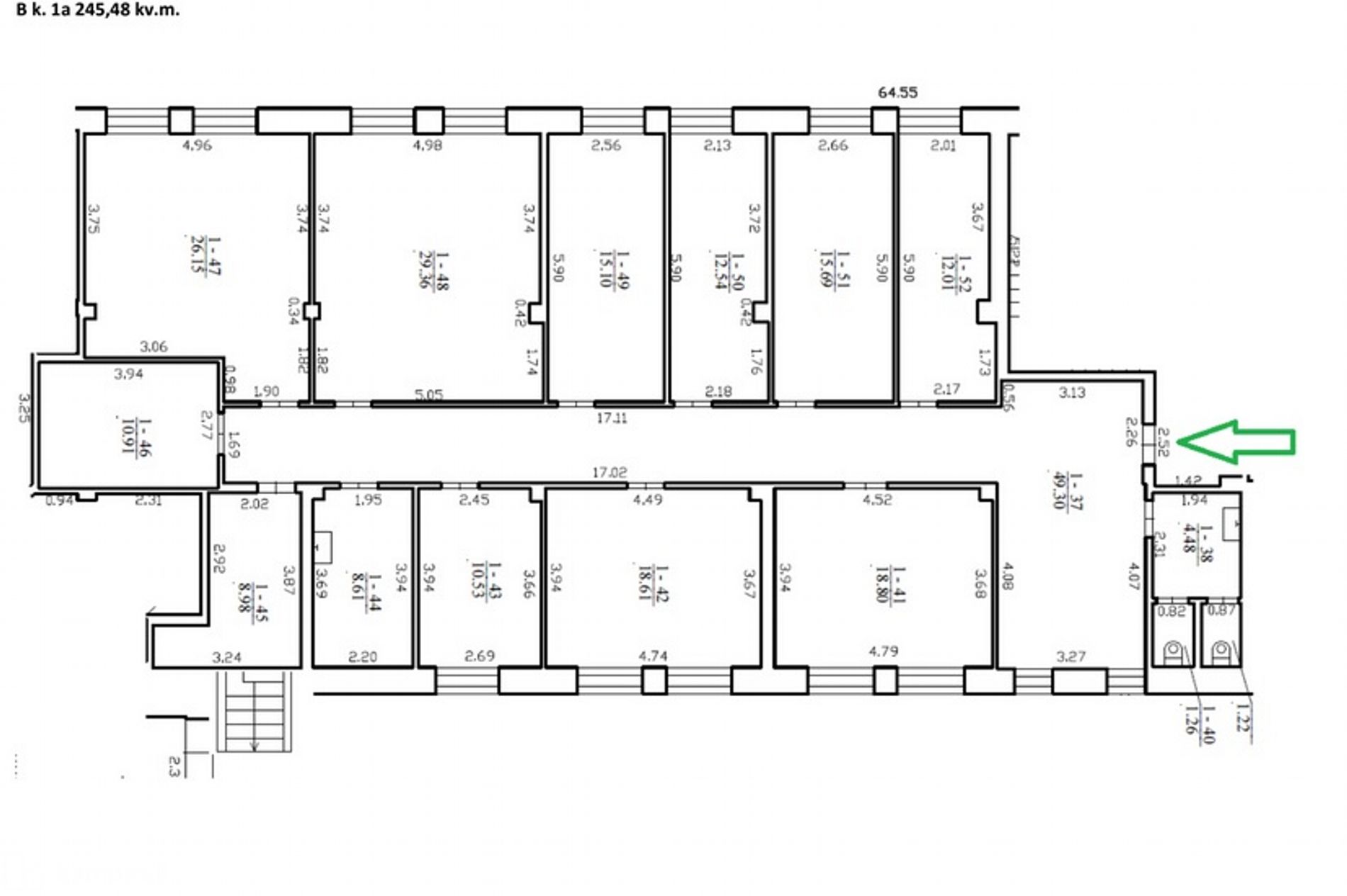
Nuomojami 11-12 kv.m. kabinetai I a. Slucko g., Šnipiškėse, Vilniuje.
Galima nuomotis kelis kabinetus.
Gera patalpų vieta;
I a.;
Patalpos tvarkingos;
Yra bendra virtuvėlė;
Bendra erdvė;
Sandėliukas;
Šildymas elektra;
Puikiai tinka įvairiai veklai.
Nuomos kaina 250 eur+mokesčiai.
Galima pasiūlyti ir didesnius kabinetus šiame pastate.
Jei šis variantas ne pilnai atitinka Jūsų lūkesčius, galite susisiekite el.p. [email protected], pasiūlysime kitus variantus.
Daugiau informacijos tel. +37064626007
**********************************************************************************************
Nuomos kaina ir sąlygos nurodytos nuomotojo, nuomininkams mūsų paslaugos nekainuoja.
Nuotraukos









