Įsiminti
Patalpos nuomai, Vilnius, Šnipiškės, Šeimyniškių g. id:1033491 1 kmb.
2 556 € / mėn.
14,04 €/m²
Įsiminė
0
Parodymai
Šiandien: 68
Viso: 105
Peržiūros
Šiandien: 17
Viso: 31
Objekto informacija
Aprašymas
IŠNUOMOJAMOS KOMERCINĖS PATALPOS PRIE JUDRIOS ŠEIMYNIŠKIŲ G., ŠNIPIŠKĖSE
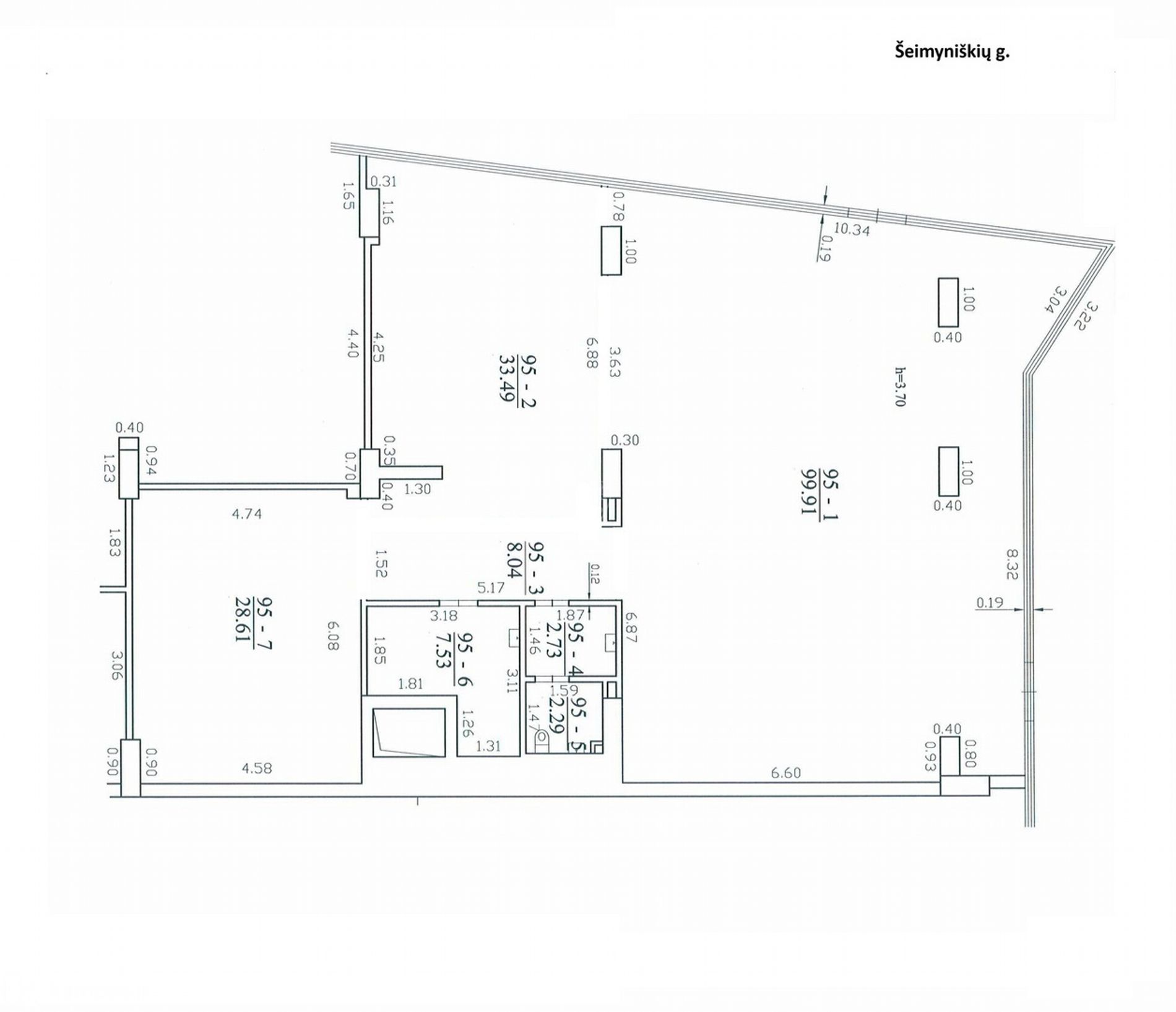
Nuomojamos 182,60 m² komercinės patalpos strategiškai patogioje ir itin matomoje vietoje – pirmame aukšte prie intensyvaus eismo Šeimyniškių gatvėje.
Patalpų privalumai:
- Dideli vitrininiai langai – puikus matomumas ir natūrali šviesa.
- Du atskiri įėjimai – patogumui ir lankstumui.
- Galimybė įsirengti reklaminę iškabą ant pastato fasado, matomo nuo pagrindinės gatvės.
- Erdvi mokama automobilių stovėjimo aikštelė šalia patalpų.
- Įrengta kondicionavimo ir rekuperacinė vėdinimo sistema – komfortiškas mikroklimatas visus metus.
Patalpų išplanavimas: vientisa prekybinė salė, sandėliukas, sanitarinis mazgas.
Patalpos puikiai tinka įvairiai prekybinei ar paslaugų veiklai.
Nuomos kaina: 14 €/m² + PVM, taikomos Triple Net nuomos sąlygos.
Susisiekite dėl detalesnės informacijos ir apžiūros laiko suderinimo.
Ober-Haus – išskirtinis šio objekto nuomos atstovas. -- Objekto nr. Ober-Haus tinklapyje www.ober-haus.lt/OH503183
Nuomojamos 182,60 m² komercinės patalpos strategiškai patogioje ir itin matomoje vietoje – pirmame aukšte prie intensyvaus eismo Šeimyniškių gatvėje.
Patalpų privalumai:
- Dideli vitrininiai langai – puikus matomumas ir natūrali šviesa.
- Du atskiri įėjimai – patogumui ir lankstumui.
- Galimybė įsirengti reklaminę iškabą ant pastato fasado, matomo nuo pagrindinės gatvės.
- Erdvi mokama automobilių stovėjimo aikštelė šalia patalpų.
- Įrengta kondicionavimo ir rekuperacinė vėdinimo sistema – komfortiškas mikroklimatas visus metus.
Patalpų išplanavimas: vientisa prekybinė salė, sandėliukas, sanitarinis mazgas.
Patalpos puikiai tinka įvairiai prekybinei ar paslaugų veiklai.
Nuomos kaina: 14 €/m² + PVM, taikomos Triple Net nuomos sąlygos.
Susisiekite dėl detalesnės informacijos ir apžiūros laiko suderinimo.
Ober-Haus – išskirtinis šio objekto nuomos atstovas. -- Objekto nr. Ober-Haus tinklapyje www.ober-haus.lt/OH503183
Nuotraukos
