Patalpos nuomai, Vilnius, Senamiestis, Klaipėdos g. id:1031167 1 kmb.
Objekto informacija
Apsauga
Aprašymas
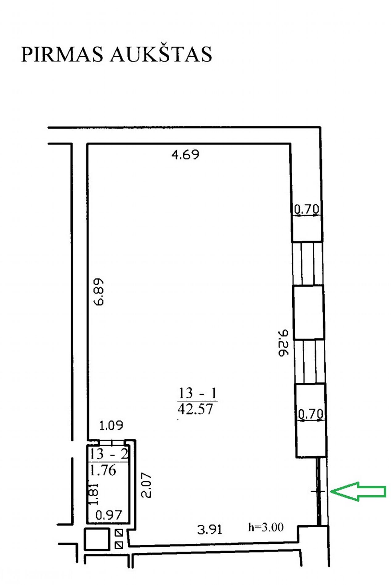
Nuomojamos 44kv.m komercinės patalpos su atskiru įėjimu iš gatvės naujos statybos name Klaipėdos g., Senamiestyje.
Patalpos laisvos nuo lapkričio mėn 15d.
PATALPŲ APRAŠYMAS
• Pilnai įrengtos
• Grindys – plytelės
• Sienos dažytos
• Natūrali šviesa
• Sumontuoti drabužių neblukinantys šviestuvai
• Rekuperatorius, kondicionierius
• San.mazgas
• Internetas, signalizacija
• Atskiras įėjimas iš gatvės
• Ekonomiškas autonominis šildymas
• Galimybė įsigyti baldus bei įrangą esančius nuotraukose
• Nuomos kaina nurodyta be mokesčių (NTM, GPM ir komunal.)
VIETOS APRAŠYMAS
• Kotrynos bažnyčia – 100m
• Mokytojų namai – 50m
• Rotušė – 650m
• IKI – 350m
• Viešojo transporto stotelė – 150m
Planuojate pirkti, parduoti ar nuomoti nekilnojamąjį turtą?
Esu pasirengusi padėti Jums visais su nekilnojamuoju turtu susijusiais klausimais:
- Atlieku sandoriui reikalingų dokumentų analizę;
- Rengiu preliminarias sutartis, priėmimo–perdavimo aktus bei kitus reikalingus dokumentus;
- Konsultuoju juridiniais ir mokestiniais klausimais;
- Atstovauju klientų interesus viso sandorio metu;
- Užtikrinu profesionalų ir patrauklų Jūsų turto pristatymą viešoje erdvėje.
Nekilnojamojo turto ekspertė
Kristina Karpičienė
+370 640 32 223
Nuotraukos
