Patalpos nuomai, Vilnius, Senamiestis, Gedimino pr. id:1031631 1 kmb.
Objekto informacija
Aprašymas
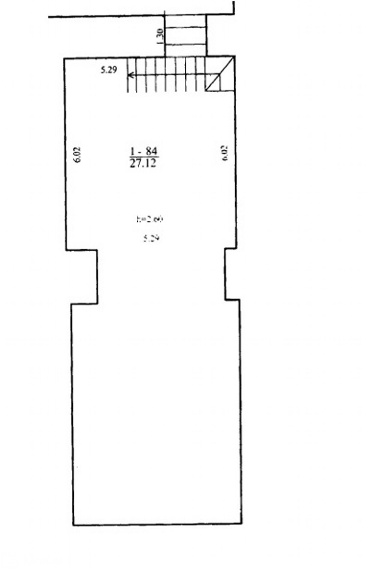
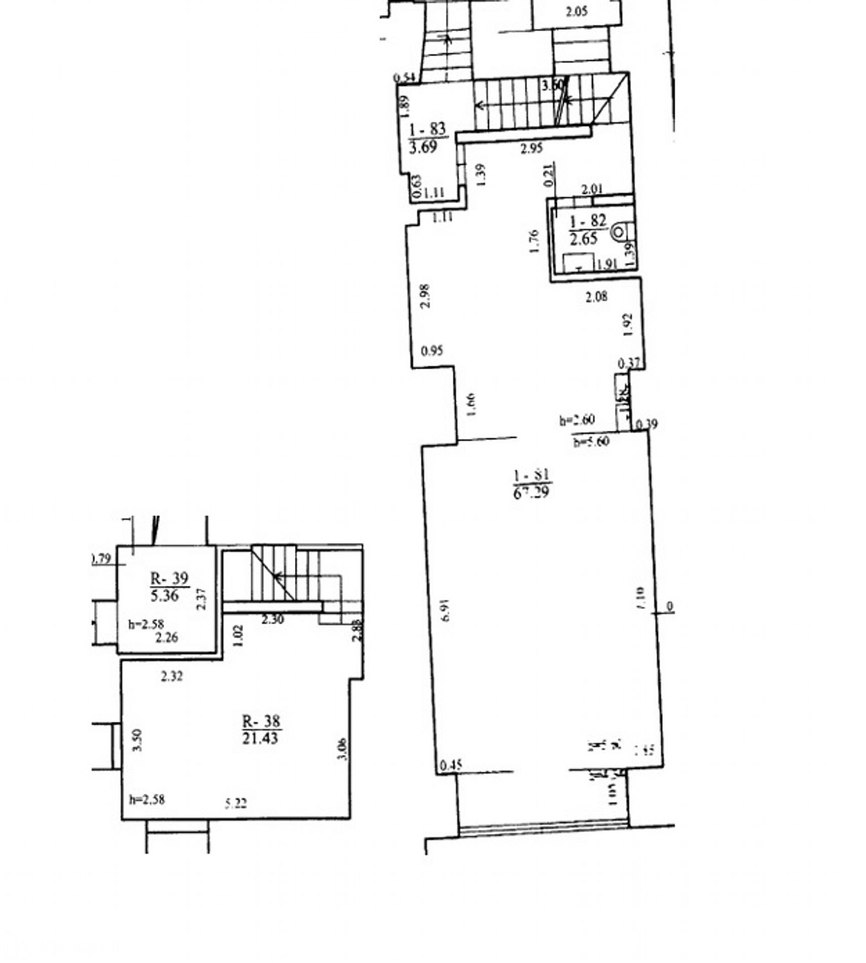
Nuomojamos 122 kv.m. prekybai, paslaugoms tinkamos patalpos Gedimino pr., Senamiestyje, Vilniuje.
Gera patalpų vieta;
I a. - 73,63 kv.m.;
II a. - antresolė 27,12 kv.m.;
rūsio patalpa - 21,43 kv.m.;
Dideli vitrininiai langai;
Įėjimas iš Gedimino pr.;
San.mazgai;
Šildymas centralizuotas;
Puikiai tinka įvaiiai veiklai, maitinimui, paslaugoms, prekybai.
Nuomos kaina 3200 eur/mėn.+komunaliniai + PVM.
Jei šis variantas ne pilnai atitinka Jūsų lūkesčius, galite susisiekite el.p. [email protected], pasiūlysime kitus variantus.
Daugiau informacijos tel. +37064626007
**********************************************************************************************
Nuomos kaina ir sąlygos nurodytos nuomotojo, nuomininkams mūsų paslaugos nekainuoja.
Ieškote patalpų verslui? Mielai kreipkitės, surasime Jums ir Jūsų kompanijai įvairias patalpas NEMOKAMAI!
Nuotraukos
