Įsiminti
Patalpos nuomai, Vilnius, Naujamiestis, J. Basanavičiaus g. id:1030507
750 € / mėn.
16,67 €/m²
Įsiminė
0
Parodymai
Šiandien: 20
Viso: 214
Peržiūros
Šiandien: 4
Viso: 65
Objekto informacija
REKLAMA
REKLAMA
Aprašymas
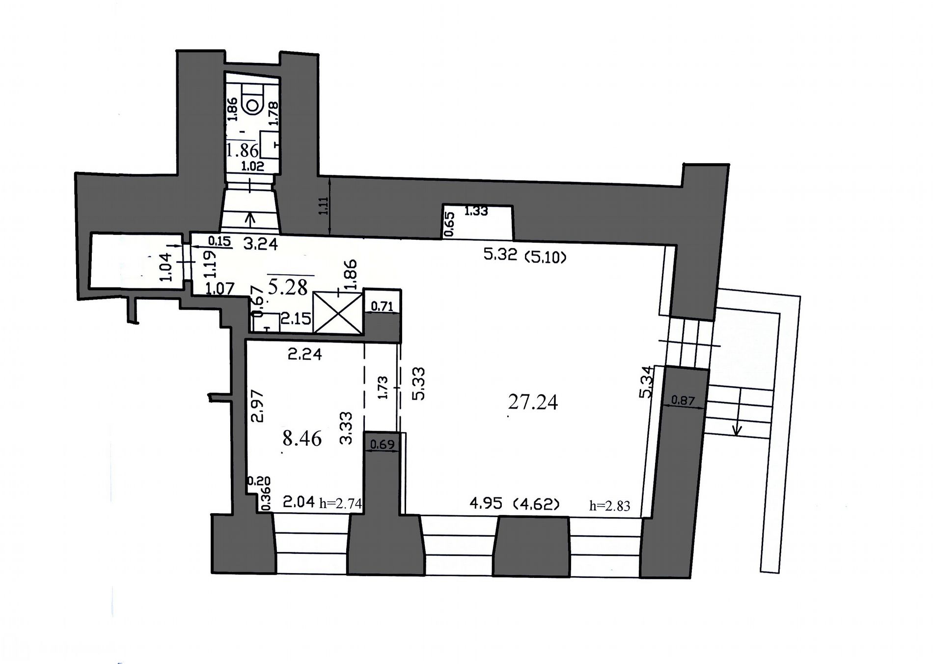
Išnuomojamos 45.29 kv.m. komercinės (prekybos) paskirties patalpos su atskiru įėjimu Naujamiestyje, aktyvioje J. Basanavičiaus ir Vytenio g. sankryžoje.
Daikto pagrindinė naudojimo paskirtis: Prekybos
Nuomotojas juridinis asmuo, PVM mokėtojas.
PATALPOS LAISVOS NUO GRUODŽIO 1 D.!
Jono Basanavičiaus g. 42, atskiras įėjimas, 45.29 kv.m., įrengtos, be baldų, 1/4 aukštas.
Patalpų privalumai:
• Atskiras patogus įėjimas su privačiu tambūru, patogus pasiekimas iš gatvės
• Srautą generuojanti J. Basanavičiaus gatvė (šalia Vytenio g. sankryžos)
• Grindinis šildymas: tolygus šilumos pasiskirstymas, aukščiausias komforto ir higienos lygis, šiltos grindys.
• Parkavimas prie patalpų (mokama geltona zona)
IŠPLANAVIMAS:
• Atskiras įėjimas iš gatvės
• Pagrindinė erdvė
• Atskiras kabinetas
• Pereinama virtuvėlė
• Tamsus kambarys
• San. mazgas
KAINA:
• Nuoma + PVM + komunalinės paslaugos
• Nuomotojas juridinis asmuo, PVM mokėtojas
Skambinti galite Jums patogiu laiku.
Nepavykus prisiskambinti, rašykite SMS, perskambinsiu.
--
0000-00-00 00:00:00
RebalticID: GK36906
Daikto pagrindinė naudojimo paskirtis: Prekybos
Nuomotojas juridinis asmuo, PVM mokėtojas.
PATALPOS LAISVOS NUO GRUODŽIO 1 D.!
Jono Basanavičiaus g. 42, atskiras įėjimas, 45.29 kv.m., įrengtos, be baldų, 1/4 aukštas.
Patalpų privalumai:
• Atskiras patogus įėjimas su privačiu tambūru, patogus pasiekimas iš gatvės
• Srautą generuojanti J. Basanavičiaus gatvė (šalia Vytenio g. sankryžos)
• Grindinis šildymas: tolygus šilumos pasiskirstymas, aukščiausias komforto ir higienos lygis, šiltos grindys.
• Parkavimas prie patalpų (mokama geltona zona)
IŠPLANAVIMAS:
• Atskiras įėjimas iš gatvės
• Pagrindinė erdvė
• Atskiras kabinetas
• Pereinama virtuvėlė
• Tamsus kambarys
• San. mazgas
KAINA:
• Nuoma + PVM + komunalinės paslaugos
• Nuomotojas juridinis asmuo, PVM mokėtojas
Skambinti galite Jums patogiu laiku.
Nepavykus prisiskambinti, rašykite SMS, perskambinsiu.
--
0000-00-00 00:00:00
RebalticID: GK36906
Nuotraukos
