Įsiminti
Patalpos nuomai, Vilnius, Lazdynai, Laisvės pr. id:1029955
828 € / mėn.
  18 €/m²
Įsiminė
 0
Parodymai
 
          Šiandien: 0
 
          Viso: 177
 Peržiūros
 
          Šiandien: 2
 
          Viso: 165
 Objekto informacija
      REKLAMA
      
 
      REKLAMA
      
 Aprašymas
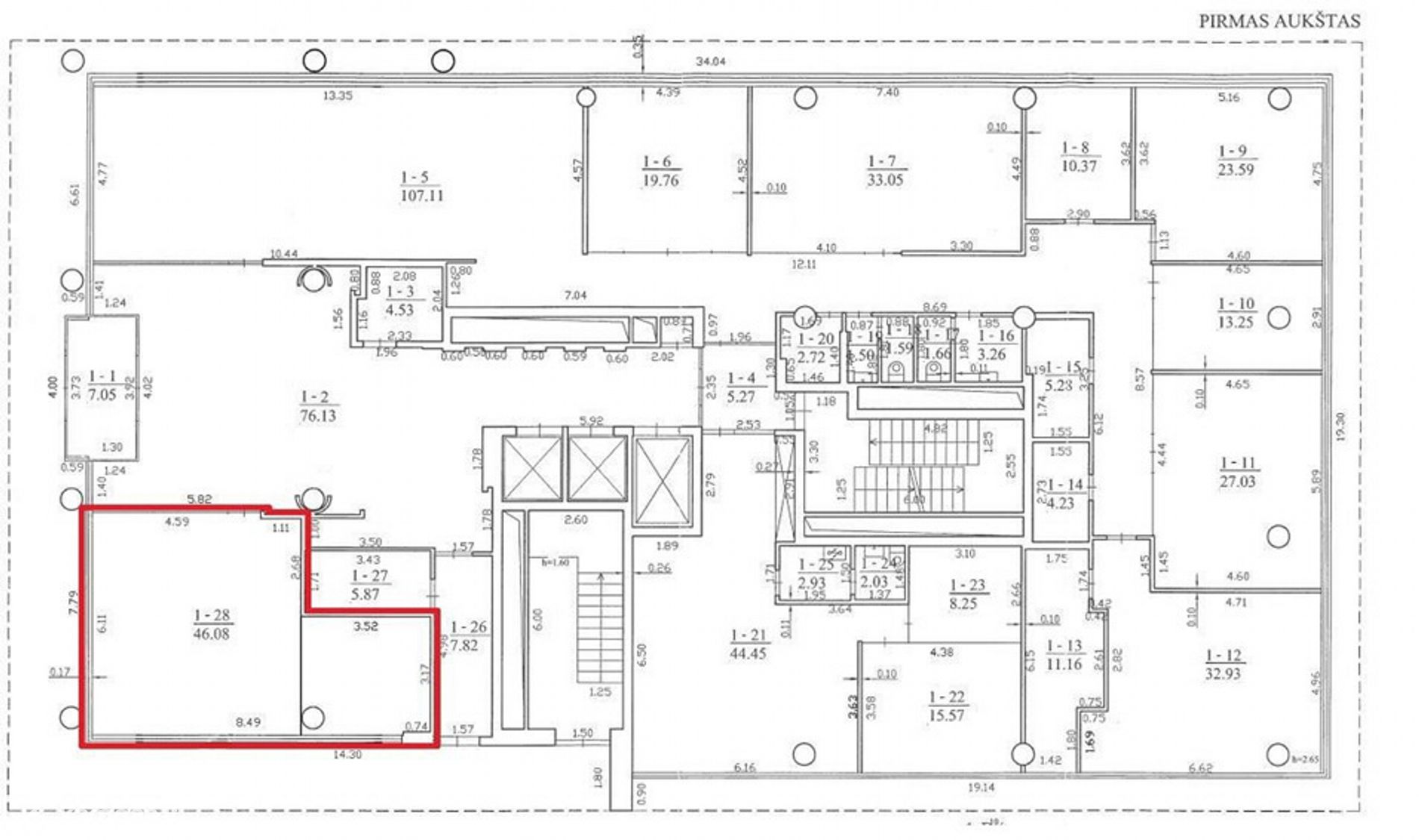
Nuomojamos biuro patalpos "L3" verslo centre Laisvės pr. 3
Patalpos jau laisvos.
Bendra informacija:
Pirmame aukšte nuo 2026-01-01 siūlomas nuomai 46 kv.m. dydžio biuras pirmame aukšte. Puikiai tiktų tam tikrai prekybinei ar paslaugų veiklai. Patalpos prie pat pagrindinio įėjimo į pastatą, aiškiai matomos. Galima iškaba ant fasado.
Infrastruktūra:
Itin patogus ir greitas susisiekimas pagrindinėmis miesto gatvėmis;
Maitinimo įstaiga pastate bei prekybos centras greta;
  Patalpos jau laisvos.
Bendra informacija:
Pirmame aukšte nuo 2026-01-01 siūlomas nuomai 46 kv.m. dydžio biuras pirmame aukšte. Puikiai tiktų tam tikrai prekybinei ar paslaugų veiklai. Patalpos prie pat pagrindinio įėjimo į pastatą, aiškiai matomos. Galima iškaba ant fasado.
Infrastruktūra:
Itin patogus ir greitas susisiekimas pagrindinėmis miesto gatvėmis;
Maitinimo įstaiga pastate bei prekybos centras greta;
Nuotraukos
 
  
  
  
  
  
  
  
  
  
  
  
  
  
 