Įsiminti
Patalpos nuomai, Vilnius, Karoliniškės, Loretos Asanavičiūtės g. id:1032898
3 000 € / mėn.
5,64 €/m²
Įsiminė
0
Parodymai
Šiandien: 8
Viso: 259
Peržiūros
Šiandien: 6
Viso: 62
Objekto informacija
Aprašymas
LAUKIAME JŪSŲ SUSIDOMĖJIMO!
Kiekvienas pasiūlymas mums svarbus, todėl kviečiame drąsiai rašyti ar skambinti.
--------------------------
IŠNUOMOJAMOS PATALPOS SPORTE CENTRE „IMPULS“ PASTATE, VILNIUJE
Adresas: Asanavičiūtės g. 15, Vilnius
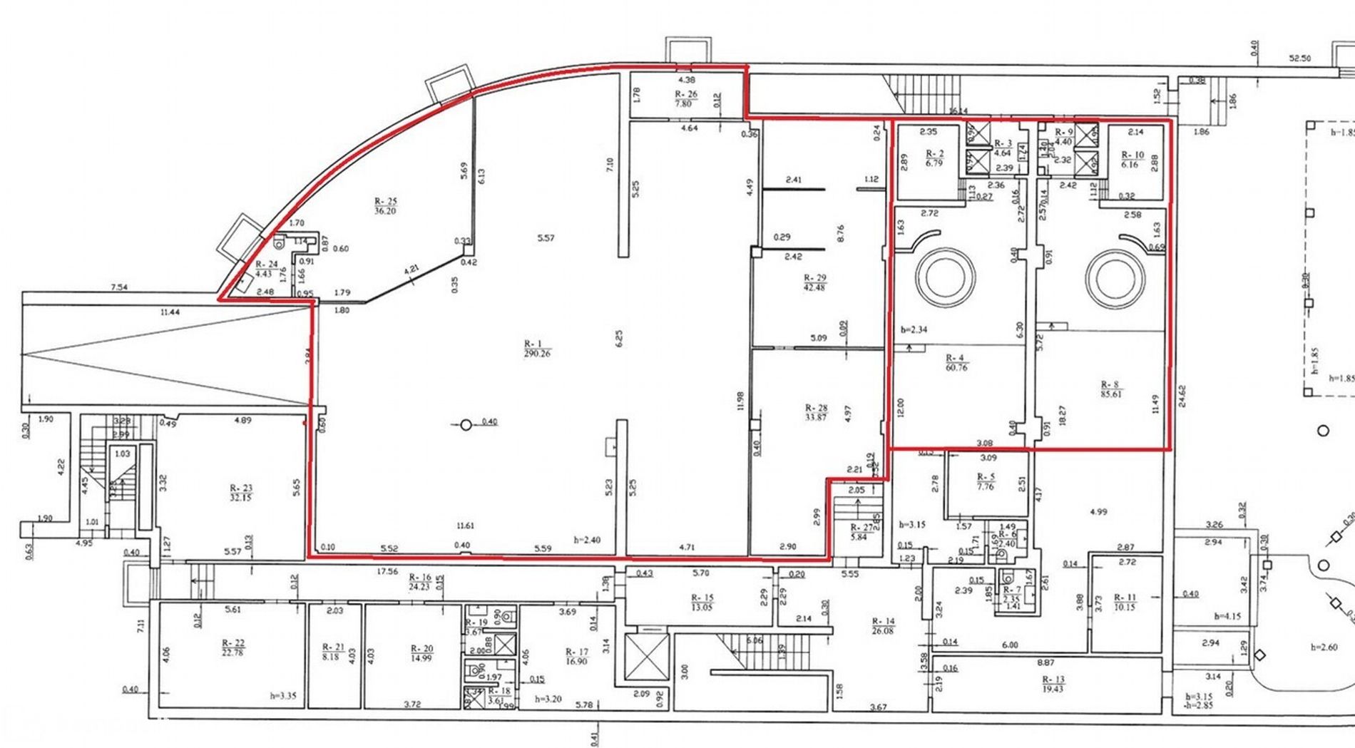
Patalpų plotas pagal išplanavimą: 532,04 kv. m
Suformuotos funkcinės zonos:
– Administracinės patalpos
– Sanitarinis mazgas
– Įrengta turkiška pirtis
– Kitos paskirties patalpos
Nuomos kaina: 3000 Eur + PVM + komunaliniai mokesčiai (apie 480 eur/mėn - vasarą; apie 1130 eur/mėn - žiemą).
Atskirų patalpų inventoriniai numeriai: R-1, R-24, R-25, R-26, R-28, R-29, R2, R3, dalis R4, dalis R8, R9, R10
APIE PATALPAS:
- Aukštas: Rūsys (patalpose veikė automobilių plovykla)
- Įranga: Patalpos išnuomojamos be įrangos
- Šildymas/ vėsinimas: patalpose yra 2 venkameros.
- Signalizacija: yra, reikia tik sudaryti sutartį dėl paslaugų.
- Atlaisvinimo terminas: patalpos atlaisvintos.
PRIVALUMAI:
✅ Patogus privažiavimas ir lengvai pasiekiama vieta
✅ Automobilių parkavimas šalia pastato
✅ Strategiška lokacija – vos 12 min. nuo miesto centro
✅ Šalia veikia sporto klubas „Impuls“ (treniruoklių salės, baseinas, pirčių zona) – didelis lankytojų srautas
✅ Lankstus išplanavimas – tinkamas įvairioms veikloms (plovykla, SPA, paslaugos, biuras, sandėliavimas ir kt.)
Kiekvienas pasiūlymas mums svarbus, todėl kviečiame drąsiai rašyti ar skambinti.
--------------------------
IŠNUOMOJAMOS PATALPOS SPORTE CENTRE „IMPULS“ PASTATE, VILNIUJE
Adresas: Asanavičiūtės g. 15, Vilnius
Patalpų plotas pagal išplanavimą: 532,04 kv. m
Suformuotos funkcinės zonos:
– Administracinės patalpos
– Sanitarinis mazgas
– Įrengta turkiška pirtis
– Kitos paskirties patalpos
Nuomos kaina: 3000 Eur + PVM + komunaliniai mokesčiai (apie 480 eur/mėn - vasarą; apie 1130 eur/mėn - žiemą).
Atskirų patalpų inventoriniai numeriai: R-1, R-24, R-25, R-26, R-28, R-29, R2, R3, dalis R4, dalis R8, R9, R10
APIE PATALPAS:
- Aukštas: Rūsys (patalpose veikė automobilių plovykla)
- Įranga: Patalpos išnuomojamos be įrangos
- Šildymas/ vėsinimas: patalpose yra 2 venkameros.
- Signalizacija: yra, reikia tik sudaryti sutartį dėl paslaugų.
- Atlaisvinimo terminas: patalpos atlaisvintos.
PRIVALUMAI:
✅ Patogus privažiavimas ir lengvai pasiekiama vieta
✅ Automobilių parkavimas šalia pastato
✅ Strategiška lokacija – vos 12 min. nuo miesto centro
✅ Šalia veikia sporto klubas „Impuls“ (treniruoklių salės, baseinas, pirčių zona) – didelis lankytojų srautas
✅ Lankstus išplanavimas – tinkamas įvairioms veikloms (plovykla, SPA, paslaugos, biuras, sandėliavimas ir kt.)
Nuotraukos
