Įsiminti
Patalpos nuomai, Kaunas, Žemieji Šančiai, A. Juozapavičiaus pr. id:1037364
1 860 € / mėn.
10 €/m²
Įsiminė
0
Parodymai
Šiandien: 18
Viso: 1640
Peržiūros
Šiandien: 10
Viso: 747
Objekto informacija
Papildoma įranga
Aprašymas
PREKYBOS-PASLAUGŲ VEIKLAI PATALPOS
A. Juozapavičiaus pr. išnuomojamos 187 kv. m PREKYBOS-PASLAUGŲ veiklai patalpos, Patalpos moderniai įrengtos, 1 A.
PLOTAS/KAINA:
• 187 kv. m
1 kv. m –10 Eur/mėn + mokesčiai
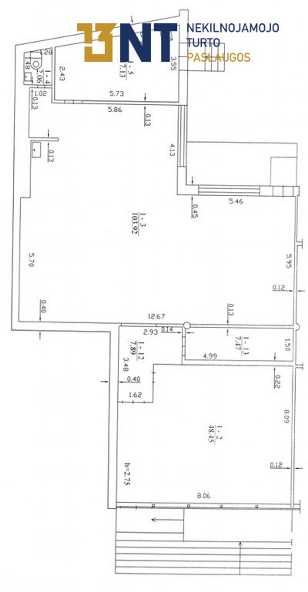
Patalpų plotą sudaro kelios patalpos. Nuotraukose įdėtos ne visos patalpos, nes šiuo metu kitos patalpos užkrautos daiktais.
Prie nuotraukų įdėtas patalpų planas
ĮRENGIMO PRIVALUMAI:
• Pagrindinis įėjimas iš A. Juozapavičiaus g. pusės, kitas iš kiemo
• Dideli vitrininiai langai
• Stiklinės pertvaros
• Sandėliavimo patalpa
• Virtuvėlė
• Šildymas – dujinis
• Rekuperacinė vėdinimo sistema
• Kodicionierius
• Elektra, vanduo, atskiras sanitarinis mazgas
• Led apšvietimas
• Priešgaisrinė ir apsaugos signalizacijos
• Internetas
PARKAVIMAS. NEMOKAMOS automobilių parkavimo vietos prie gatvės klientams, ir parkavimo vietos privačiame asfaltuotame kieme darbuotojams. Asfaltuotas privažiavimas.
Vieta. Patalpos randasi prie judraus A. Juozapavičiaus pr. Lengvai randama, matoma ir patogi vieta. Arti centras.
DAUGIAU PATALPŲ PASIŪLYMŲ RASITE SKELBIMO APAČIOJE, SKILTYJE ,,Visi brokerio skelbimai‘‘
A. Juozapavičiaus pr. išnuomojamos 187 kv. m PREKYBOS-PASLAUGŲ veiklai patalpos, Patalpos moderniai įrengtos, 1 A.
PLOTAS/KAINA:
• 187 kv. m
1 kv. m –10 Eur/mėn + mokesčiai
Patalpų plotą sudaro kelios patalpos. Nuotraukose įdėtos ne visos patalpos, nes šiuo metu kitos patalpos užkrautos daiktais.
Prie nuotraukų įdėtas patalpų planas
ĮRENGIMO PRIVALUMAI:
• Pagrindinis įėjimas iš A. Juozapavičiaus g. pusės, kitas iš kiemo
• Dideli vitrininiai langai
• Stiklinės pertvaros
• Sandėliavimo patalpa
• Virtuvėlė
• Šildymas – dujinis
• Rekuperacinė vėdinimo sistema
• Kodicionierius
• Elektra, vanduo, atskiras sanitarinis mazgas
• Led apšvietimas
• Priešgaisrinė ir apsaugos signalizacijos
• Internetas
PARKAVIMAS. NEMOKAMOS automobilių parkavimo vietos prie gatvės klientams, ir parkavimo vietos privačiame asfaltuotame kieme darbuotojams. Asfaltuotas privažiavimas.
Vieta. Patalpos randasi prie judraus A. Juozapavičiaus pr. Lengvai randama, matoma ir patogi vieta. Arti centras.
DAUGIAU PATALPŲ PASIŪLYMŲ RASITE SKELBIMO APAČIOJE, SKILTYJE ,,Visi brokerio skelbimai‘‘

