Įsiminti
Patalpos pardavimui, Vilnius, Naujamiestis, Kauno g. id:1026444
229 000 €
1 112 €/m²
REKLAMA
Įmoka
863 €/mėn
Paskola 194 650 €
Palūkanos 3.40%
Trukmė 30 metų
Įsiminė
0
Parodymai
Šiandien: 5
Viso: 4318
Peržiūros
Šiandien: 1
Viso: 606
Objekto informacija
Aprašymas
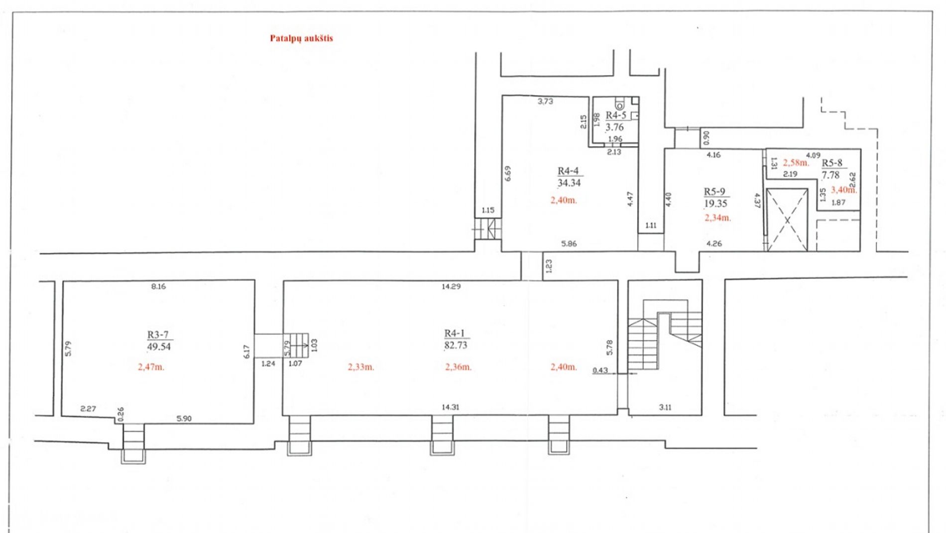
PARDUODAMOS PATALPOS _ PARDUOTUVĖ. VILNIUJE, KAUNO G.,NETOLI AUTOBUSŲ IR GELEŽINKELIO STOTOES. 206, 72 KV.M.. 2 ĮĖJIMAI - VIENAS IŠ KAUNO G., KITAS IŠ VIDINIO KIEMO PUSĖS.
ATSKIRAS, ERDVUS ĮĖJIMAS IŠ KAUNO G. - GALIMA REKLAMA ANT PASTATO IŠORĖS.
PATALPOS TINKA INVESTICIJAI. GALIMA VEIKLA - PREKYBA, SU KOMPIUTERIAIS SUSIJUSI VEIKLA, GROŽIO SALONAS, GAMYBA, DRABUŽIŲ SIUVIMAS.
__________________________________________________________
PRIVALUMAI:
- Strategiškai patogi vieta - geras matomumas ir susisiekimas, asfaltuotas privažiavimas.
- Iki stoties tik 100 m..
- Aukštos galios rekuperacinė sistema.
- 2 įėjimai, vidiniame kieme pakankamai vietos parkavimui.
- |rengtas WC.
- 5 patalpos.
- Didelė elektros galia - 30kw įvesta į patalpas.
- Patalpų dydžiai nuo 7 kv. m. iki 82 kv.m., išplanavimą galima keisti.
- Patalpos nuliniame aukšte.
- Patogus išplanavimas - patalpos išsiskirsto į mažesnes, galima įrengti kabinetus, sandėlius ar kt..
- Atskira patalpa tinkanti pramoniniam šaldytuvui įrengti.
______________________________________________
BENDRA INFORMACIJA :
- Adresas: Kauno g. 2-1C, Vilnius;
- Bendras parduodamų patalpų plotas – 206, 72 kv. m.;
- Nulinis aukštas.
- Paskirtis: prekybos.
- Šildymas - vietinis centrinis.
- Vandentiekis ir kanalizacija - miesto.
______________________________________________
INFRASTRUKTŪRA;
~1.57 kmAtstumas iki centro
~0.21 kmVilniaus autobusų stotis
~0.71 kmVilniaus geležinkelio stotis
Visus naujausius CAPITAL nekilnojamojo turto skelbimus rasite mūsų internetiniame puslapyje www.capital.lt. Kviečiame apsilankyti!
ATSKIRAS, ERDVUS ĮĖJIMAS IŠ KAUNO G. - GALIMA REKLAMA ANT PASTATO IŠORĖS.
PATALPOS TINKA INVESTICIJAI. GALIMA VEIKLA - PREKYBA, SU KOMPIUTERIAIS SUSIJUSI VEIKLA, GROŽIO SALONAS, GAMYBA, DRABUŽIŲ SIUVIMAS.
__________________________________________________________
PRIVALUMAI:
- Strategiškai patogi vieta - geras matomumas ir susisiekimas, asfaltuotas privažiavimas.
- Iki stoties tik 100 m..
- Aukštos galios rekuperacinė sistema.
- 2 įėjimai, vidiniame kieme pakankamai vietos parkavimui.
- |rengtas WC.
- 5 patalpos.
- Didelė elektros galia - 30kw įvesta į patalpas.
- Patalpų dydžiai nuo 7 kv. m. iki 82 kv.m., išplanavimą galima keisti.
- Patalpos nuliniame aukšte.
- Patogus išplanavimas - patalpos išsiskirsto į mažesnes, galima įrengti kabinetus, sandėlius ar kt..
- Atskira patalpa tinkanti pramoniniam šaldytuvui įrengti.
______________________________________________
BENDRA INFORMACIJA :
- Adresas: Kauno g. 2-1C, Vilnius;
- Bendras parduodamų patalpų plotas – 206, 72 kv. m.;
- Nulinis aukštas.
- Paskirtis: prekybos.
- Šildymas - vietinis centrinis.
- Vandentiekis ir kanalizacija - miesto.
______________________________________________
INFRASTRUKTŪRA;
~1.57 kmAtstumas iki centro
~0.21 kmVilniaus autobusų stotis
~0.71 kmVilniaus geležinkelio stotis
Visus naujausius CAPITAL nekilnojamojo turto skelbimus rasite mūsų internetiniame puslapyje www.capital.lt. Kviečiame apsilankyti!

