Įsiminti
Patalpos pardavimui, Pasvalio r. sav., Krinčinas, Žalgirio g. id:1032315
40 000 €
59,35 €/m²
REKLAMA
Įmoka
151 €/mėn
Paskola 34 000 €
Palūkanos 3.40%
Trukmė 30 metų
Įsiminė
0
Parodymai
Šiandien: 21
Viso: 3366
Peržiūros
Šiandien: 7
Viso: 362
Objekto informacija
Aprašymas
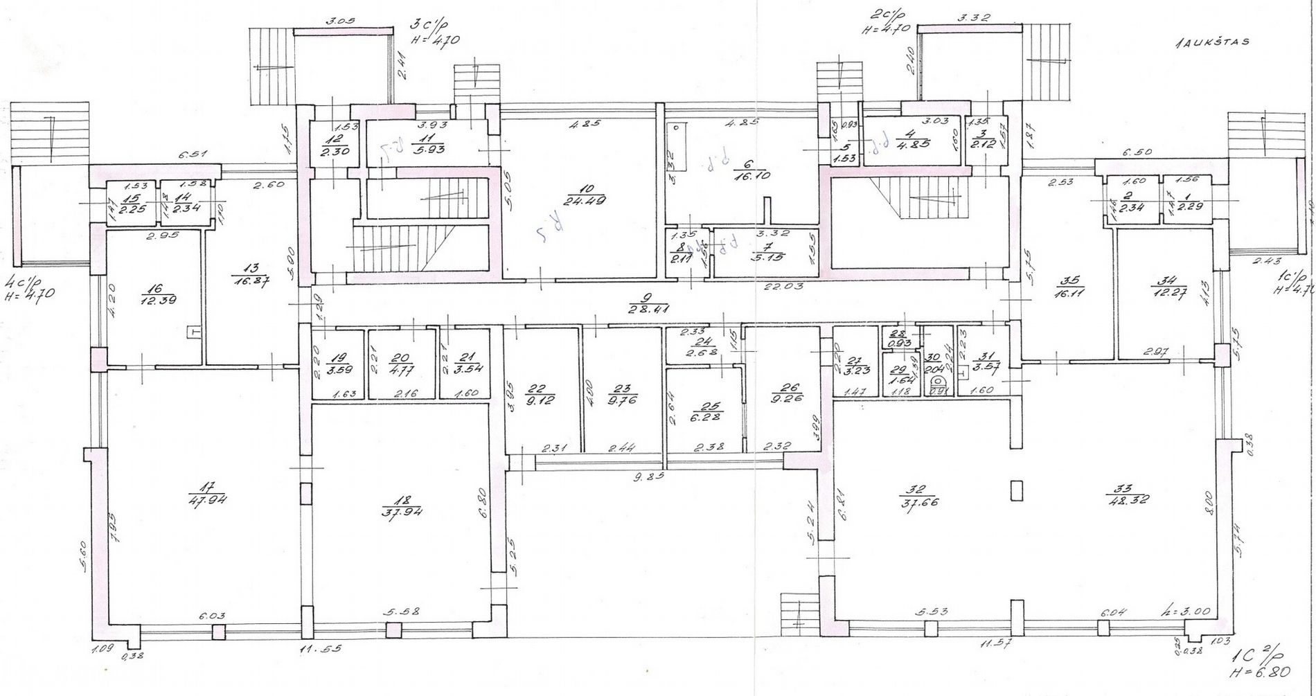
Parduodamas mokslo paskirties pastatas (buvęs vaikų darželis) Krinčino miestelio centre.
Parduodamas mokslo paskirties pastatas, anksčiau naudotas kaip vaikų darželis, esantis Krinčino miestelio centre. Pastatas – 1982 metų statybos, plytų mūro.
Bendras pastato plotas – 674,32 kv. m.
Sklypo plotas – 0,5229 ha.
Sklypas priklauso Lietuvos Respublikai, su ilgalaike nuomos sutartimi, galiojančia iki 2067 metų.
Objektas randasi strategiškai patogioje vietoje – šalia Krinčino seniūnijos ir Antano Vienažindžio pagrindinės mokyklos, miestelio centre. Teritorija lengvai pasiekiama, su geru privažiavimu ir pakankamai erdvės automobilių stovėjimui.
Pastatas yra geros konstrukcinės būklės, erdvus, su keliomis atskiromis patalpomis ir įėjimais.
Puikiai tinka rekonstrukcijai ar paskirties keitimui:
• į daugiabutį gyvenamąjį namą,
• į komercines ar prekybines patalpas,
• arba į gamybines ar sandėliavimo patalpas.
Tai puiki investicinė galimybė ieškantiems objekto miestelio centre, su potencialu plėtoti įvairaus pobūdžio veiklą. -- Objekto nr. Ober-Haus tinklapyje www.ober-haus.lt/OH503031
Parduodamas mokslo paskirties pastatas, anksčiau naudotas kaip vaikų darželis, esantis Krinčino miestelio centre. Pastatas – 1982 metų statybos, plytų mūro.
Bendras pastato plotas – 674,32 kv. m.
Sklypo plotas – 0,5229 ha.
Sklypas priklauso Lietuvos Respublikai, su ilgalaike nuomos sutartimi, galiojančia iki 2067 metų.
Objektas randasi strategiškai patogioje vietoje – šalia Krinčino seniūnijos ir Antano Vienažindžio pagrindinės mokyklos, miestelio centre. Teritorija lengvai pasiekiama, su geru privažiavimu ir pakankamai erdvės automobilių stovėjimui.
Pastatas yra geros konstrukcinės būklės, erdvus, su keliomis atskiromis patalpomis ir įėjimais.
Puikiai tinka rekonstrukcijai ar paskirties keitimui:
• į daugiabutį gyvenamąjį namą,
• į komercines ar prekybines patalpas,
• arba į gamybines ar sandėliavimo patalpas.
Tai puiki investicinė galimybė ieškantiems objekto miestelio centre, su potencialu plėtoti įvairaus pobūdžio veiklą. -- Objekto nr. Ober-Haus tinklapyje www.ober-haus.lt/OH503031

