Įsiminti
Patalpos pardavimui, Klaipėda, Vėtrungė, Taikos pr. id:1034392
175 000 €
1 902 €/m²
REKLAMA
Įmoka
660 €/mėn
Paskola 148 750 €
Palūkanos 3.40%
Trukmė 30 metų
Įsiminė
0
Parodymai
Šiandien: 19
Viso: 2255
Peržiūros
Šiandien: 0
Viso: 152
Objekto informacija
Aprašymas
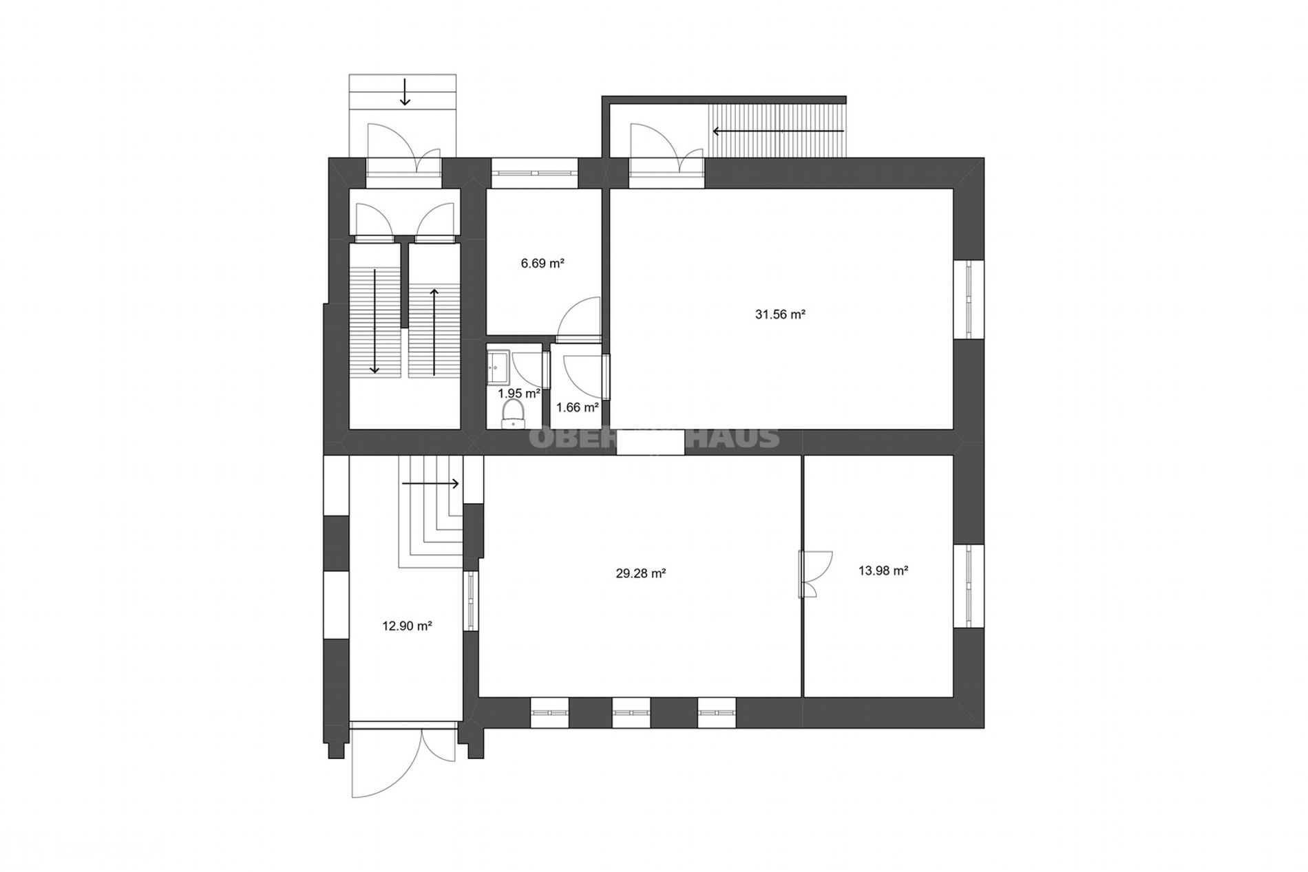
Klaipėdos miesto centrinėje dalyje, Taikos prospekto pradžioje, parduodamos 92,25 kv. m. patalpos tinkančios įvairiai komercinei veiklai. Geriausias pritaikymas įvairioms paslaugoms (gydymo, administracinės, kirpyklos salonas, masažas ir kt.).
PATALPŲ PRIVALUMAI:
* Pirmas aukštas, labai gerai matomos nuo Taikos prospekto;
* Individualus atskiras įėjimas iš gatvės pusės;
* Pastatas po renovacijos, reguliuojamas šildymas;
* Patogus privažiavimas
* Geras susisiekimas su visais rajonais, strategiškai patogi lokacija.
-- Objekto nr. Ober-Haus tinklapyje www.ober-haus.lt/OH503268
PATALPŲ PRIVALUMAI:
* Pirmas aukštas, labai gerai matomos nuo Taikos prospekto;
* Individualus atskiras įėjimas iš gatvės pusės;
* Pastatas po renovacijos, reguliuojamas šildymas;
* Patogus privažiavimas
* Geras susisiekimas su visais rajonais, strategiškai patogi lokacija.
-- Objekto nr. Ober-Haus tinklapyje www.ober-haus.lt/OH503268

