Įsiminti
Patalpos pardavimui, Kaunas, Eiguliai, Islandijos pl. id:945765
1 735 000 €
1 665 €/m²
REKLAMA
Įmoka
6 540 €/mėn

Paskola 1 474 750 €
Palūkanos 3.40%
Trukmė 30 metų
Įsiminė
0
Parodymai
Šiandien: 63
Viso: 6071
Peržiūros
Šiandien: 2
Viso: 631
Objekto informacija
Papildoma įranga
REKLAMA
REKLAMA
Aprašymas
PARDUODAMOS KOMERCINĖS PATALPOS ŠALIA MAGISTRALINIO KELIO A1 (VILNIUS-KAUNAS-KLAIPĖDA), KAUNO MIESTE!
DIDŽIAUSIĄ AUTOMOBILIŲ SRAUTĄ TURINTIS KELIAS LIETUVOJE, YPATINGAI GERAI MATOMA IR LENGVAI PASIEKIAMA VIETA.
______________________________________________
PRIVALUMAI :
- Prekybos logistikos centras „3 in1“ (komercija – biuras – sandėlis) Kauno mieste, visiškai prie pat svarbiausių Lietuvos transporto arterijų;
- Didelė automobilių stovėjimo aikštelė;
- Pirma eilė prie didžiausią automobilių srautą (iki 78 000 automobilių per parą) turinčio Lietuvos kelio A1;
- Puikus matomumas nuo kelio, vieta reklamai ant fasado;
- Tiesioginis patekimas iš Kauno miesto zonos, tiesioginis patekimas iš A1 kelio nuo Klaipėdos krypties ir planuojamas tiesioginis patekimas iš A1 kelio nuo Vilniaus krypties;
- Itin patogi lokacija: A1 – 50 metrų, A5 – 5 km, A6 – 2 km, Kauno LEZ – 6 km
- Efektyvus pastato inžinerinių sistemų valdymas, leidžiantis mažinti eksploatacines sąnaudas, galimybė ant stogo montuoti saulės baterijas, galimybė įrengti elektromobilių įkrovimo stotelę.
______________________________________________
BENDRA INFORMACIJA:
- Bendras patalpų plotas: 1042,58 kv. m.;
- Paskirtis: prekybos;
- Statybos metai: 2017 m.;
- Šildymas: centrinis - kolektorinis su pilna autonomija, kondicionavimas;
- Komunikacijos: visos.
______________________________________________
PATALPŲ IŠPLANAVIMAS:
- I AUKŠTAS:
Prekybos – sandėliavimo patalpa: 865,20 kv. m.;
Administracinė patalpa: 84,88 kv. m.;
WC patalpa: 3,85 kv. m.;
Šilumos mazgas: 0,48 kv. m.
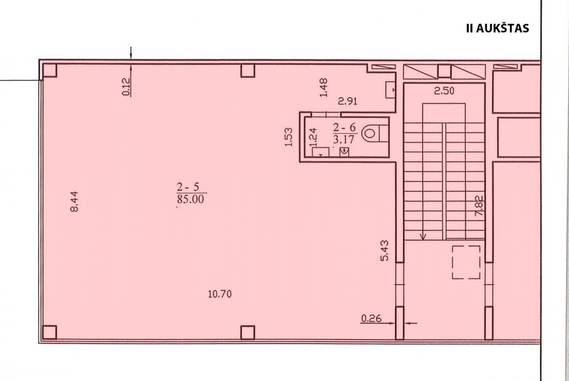
- II AUKŠTAS:
Administracinė patalpa: 85,00 kv. m.;
WC patalpa: 3,17 kv. m.
______________________________________________
Visus naujausius CAPITAL nekilnojamojo turto skelbimus rasite mūsų internetiniame puslapyje www.capital.lt. Kviečiame apsilankyti!
CAPITAL Kaunas brokerė Raminta Trakimavičienė, tel. +370 630 06 322
Netiko šios patalpos? Drąsiai kreipkitės, rasime Jums tinkamą variantą.
DIDŽIAUSIĄ AUTOMOBILIŲ SRAUTĄ TURINTIS KELIAS LIETUVOJE, YPATINGAI GERAI MATOMA IR LENGVAI PASIEKIAMA VIETA.
______________________________________________
PRIVALUMAI :
- Prekybos logistikos centras „3 in1“ (komercija – biuras – sandėlis) Kauno mieste, visiškai prie pat svarbiausių Lietuvos transporto arterijų;
- Didelė automobilių stovėjimo aikštelė;
- Pirma eilė prie didžiausią automobilių srautą (iki 78 000 automobilių per parą) turinčio Lietuvos kelio A1;
- Puikus matomumas nuo kelio, vieta reklamai ant fasado;
- Tiesioginis patekimas iš Kauno miesto zonos, tiesioginis patekimas iš A1 kelio nuo Klaipėdos krypties ir planuojamas tiesioginis patekimas iš A1 kelio nuo Vilniaus krypties;
- Itin patogi lokacija: A1 – 50 metrų, A5 – 5 km, A6 – 2 km, Kauno LEZ – 6 km
- Efektyvus pastato inžinerinių sistemų valdymas, leidžiantis mažinti eksploatacines sąnaudas, galimybė ant stogo montuoti saulės baterijas, galimybė įrengti elektromobilių įkrovimo stotelę.
______________________________________________
BENDRA INFORMACIJA:
- Bendras patalpų plotas: 1042,58 kv. m.;
- Paskirtis: prekybos;
- Statybos metai: 2017 m.;
- Šildymas: centrinis - kolektorinis su pilna autonomija, kondicionavimas;
- Komunikacijos: visos.
______________________________________________
PATALPŲ IŠPLANAVIMAS:
- I AUKŠTAS:
Prekybos – sandėliavimo patalpa: 865,20 kv. m.;
Administracinė patalpa: 84,88 kv. m.;
WC patalpa: 3,85 kv. m.;
Šilumos mazgas: 0,48 kv. m.
- II AUKŠTAS:
Administracinė patalpa: 85,00 kv. m.;
WC patalpa: 3,17 kv. m.
______________________________________________
Visus naujausius CAPITAL nekilnojamojo turto skelbimus rasite mūsų internetiniame puslapyje www.capital.lt. Kviečiame apsilankyti!
CAPITAL Kaunas brokerė Raminta Trakimavičienė, tel. +370 630 06 322
Netiko šios patalpos? Drąsiai kreipkitės, rasime Jums tinkamą variantą.
Nuotraukos


















