Įsiminti
Patalpos pardavimui, Kaišiadorių r. sav., Rumšiškės, Rumšos g. id:1033035
340 000 €
288 €/m²
REKLAMA
Įmoka
1 282 €/mėn
Paskola 289 000 €
Palūkanos 3.40%
Trukmė 30 metų
Įsiminė
0
Parodymai
Šiandien: 80
Viso: 176
Peržiūros
Šiandien: 4
Viso: 11
Objekto informacija
Aprašymas
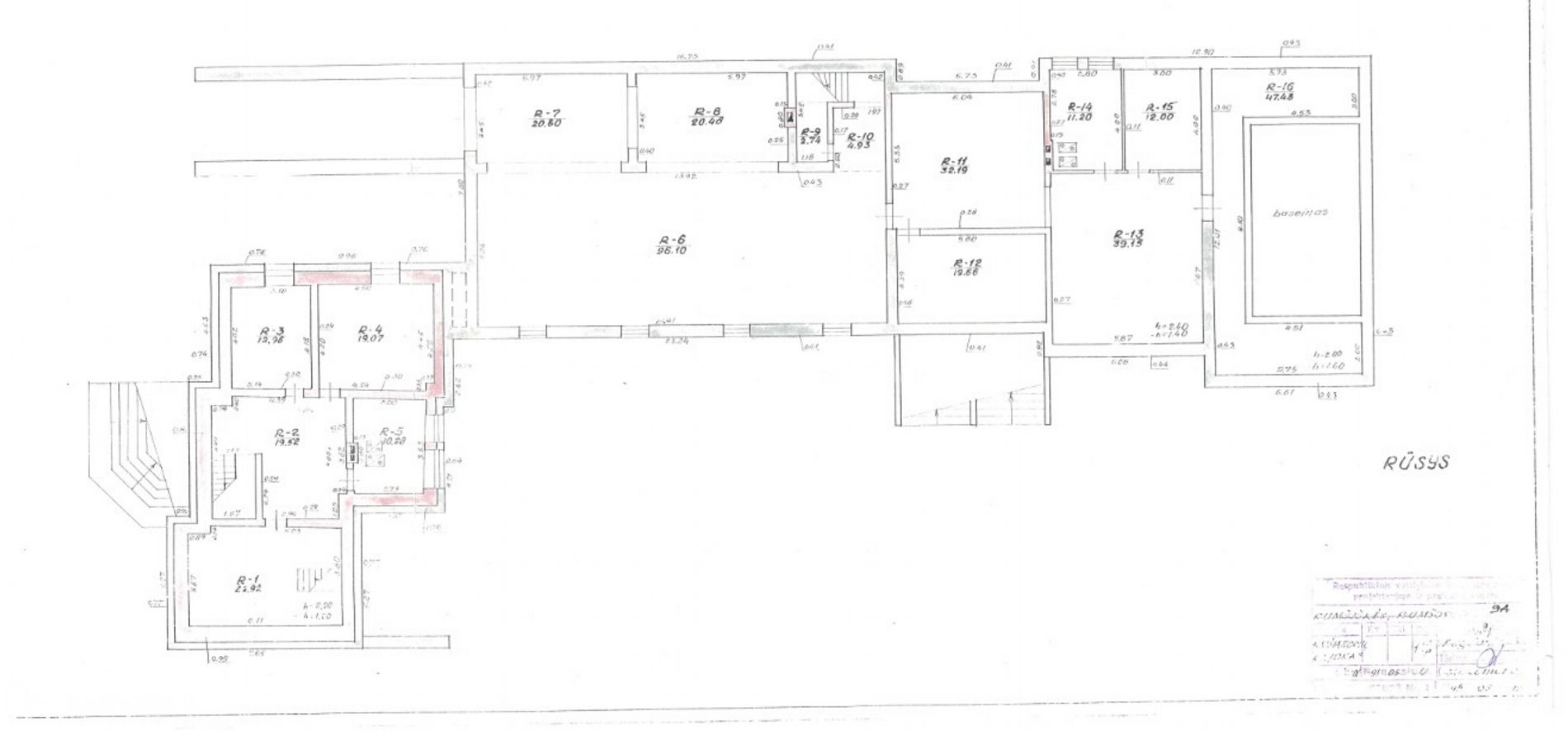
Rumšiškių miestelyje parduodamas viešbutis-baras.
Išplanavimas leidžiantis lanksčiai koreguoti/dalinti pastatą butais, b2b apgyvendinimui, senelių namams ir kitiems visuomeninės paskirties objektams. Patogi lokacija - šalia greitkelio A1. Iki Kauno ~20min, Vilniaus ~45min. Kursuoja ir viešasis transportas.
Jaukus besiplečiantis miestelis su perspektyva.
PRIVALUMAI
• Gyvenamoji paskirtis;
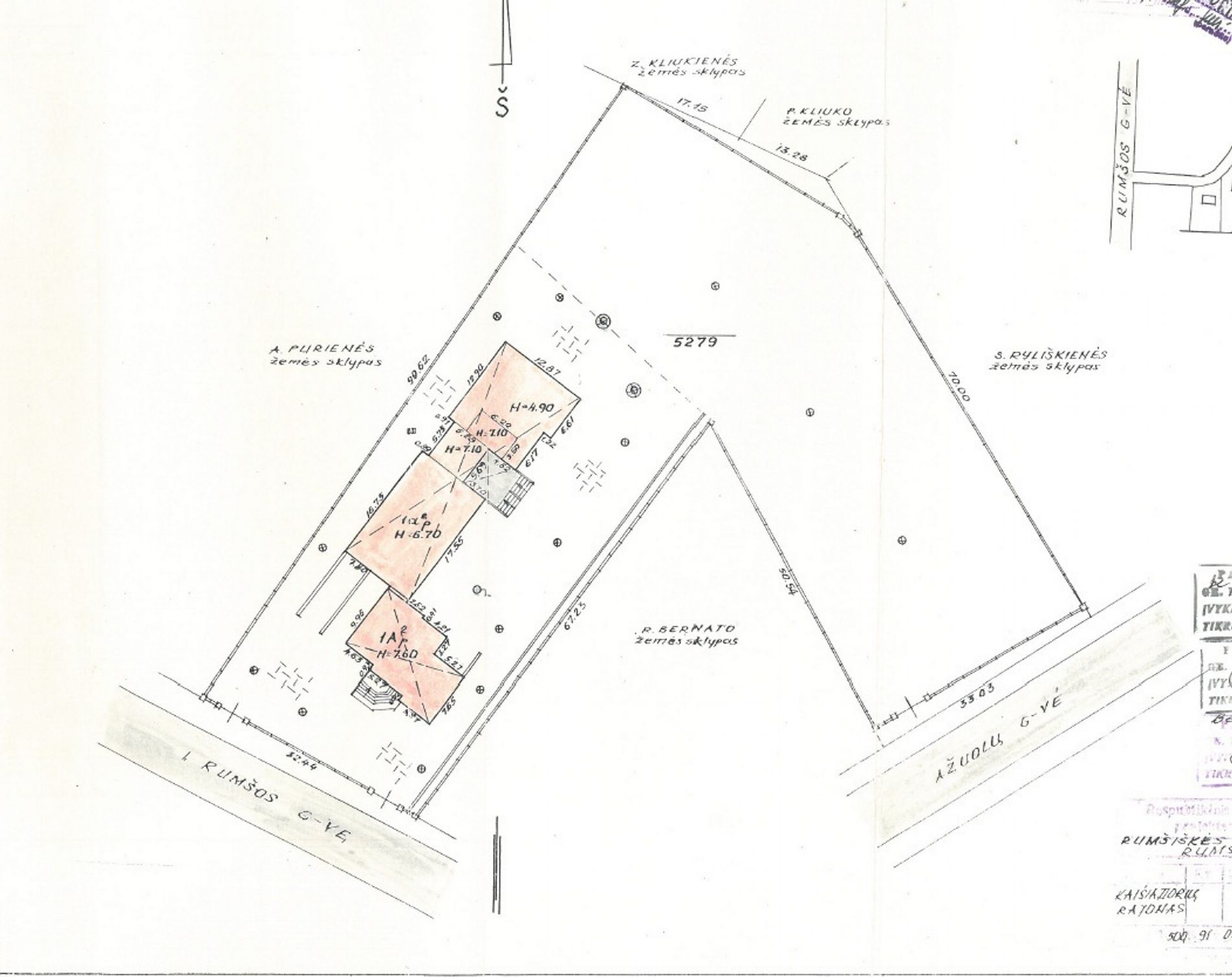
• 2 atskiri sklypai (30a ir 22,79a);
• Teritorija aptverta aukšta mūrine tvora su automatiniais vartais ir išklotomis trinkelėmis;
• Po pastatu - rūsys su mini spa, pirtimi, laisvalaikio erdve etc;
• Du įvažiavimai, pro du atskirus sklypus (Rumšos g. ir Ąžuolų g.), šiuo metu fiziškai - sujungti;
• 22,79 a ploto sklypas neužstatytas, tinkamai statybai;
• Įrengtas teniso kortas;
INŽINERINĖ DALIS
Vandentiekis - komunalinis + 2 eksplotuojami gręžiniai + vandens filtravimo sistema;
Nuotekos - komunalinės;
Elektra - 2 įvadai (bendras galios potencialas - 200 kW);
Šildymas - 2 kieto kuro katilai + 2 dujiniai katilai;
Daugiau informacijos telefonu ar apžiūros metu. -- Objekto nr. Ober-Haus tinklapyje www.ober-haus.lt/OH500092
Išplanavimas leidžiantis lanksčiai koreguoti/dalinti pastatą butais, b2b apgyvendinimui, senelių namams ir kitiems visuomeninės paskirties objektams. Patogi lokacija - šalia greitkelio A1. Iki Kauno ~20min, Vilniaus ~45min. Kursuoja ir viešasis transportas.
Jaukus besiplečiantis miestelis su perspektyva.
PRIVALUMAI
• Gyvenamoji paskirtis;
• 2 atskiri sklypai (30a ir 22,79a);
• Teritorija aptverta aukšta mūrine tvora su automatiniais vartais ir išklotomis trinkelėmis;
• Po pastatu - rūsys su mini spa, pirtimi, laisvalaikio erdve etc;
• Du įvažiavimai, pro du atskirus sklypus (Rumšos g. ir Ąžuolų g.), šiuo metu fiziškai - sujungti;
• 22,79 a ploto sklypas neužstatytas, tinkamai statybai;
• Įrengtas teniso kortas;
INŽINERINĖ DALIS
Vandentiekis - komunalinis + 2 eksplotuojami gręžiniai + vandens filtravimo sistema;
Nuotekos - komunalinės;
Elektra - 2 įvadai (bendras galios potencialas - 200 kW);
Šildymas - 2 kieto kuro katilai + 2 dujiniai katilai;
Daugiau informacijos telefonu ar apžiūros metu. -- Objekto nr. Ober-Haus tinklapyje www.ober-haus.lt/OH500092
Nuotraukos
