Įsiminti
Patalpos pardavimui, Kaišiadorių r. sav., Kruonis, Darsūniškio g. id:1033381
29 000 €
315 €/m²
REKLAMA
Įmoka
109 €/mėn
Paskola 24 650 €
Palūkanos 3.40%
Trukmė 30 metų
Įsiminė
0
Parodymai
Šiandien: 2
Viso: 904
Peržiūros
Šiandien: 0
Viso: 266
Objekto informacija
Aprašymas
PARDUODAMOS KOMERCINĖS PASKIRTIES PATALPOS (PARDUOTUVĖ) SU ŽEMĖS SKLYPU KAIŠIADORIŲ R., KRUONYJE. IEŠKOTE STRATEGIŠKAI PATOGIOS VIETOS SAVO VERSLUI NEDIDELIAME, JAUKIAME MIESTELYJE? ŠIOS KOMERCINĖS PATALPOS GALI TAPTI PUIKIA JŪSŲ ĮMONĖS VIZITINE KORTELE!
PRIVALUMAI:
- Patalpas galima pritaikyti ne tik prekybai;
- Du atskiri įėjimai. Iš gatvės ir iš kiemo pusės;
- Miestelis tik 18 km į pietvakarius nutolęs nuo Kaišiadorių.
______________________________________________________________________________________
BENDRA INFORMACIJA
- Adresas: Darsūniškio g. 3, Kruonis, Kaišiadorių r.;
- Namas: mūrinis, 1955 m. statybos; 2007 m. atlikta renovacija;
- Vienas aukštas;
- Vandentiekis: miesto;
- Kanalizacija: vietinė;
- Šildymas: oras–oras kondicionierius ir židinys – suteiks ne tik šilumą, bet ir jaukią atmosferą.
______________________________________________________________________________________
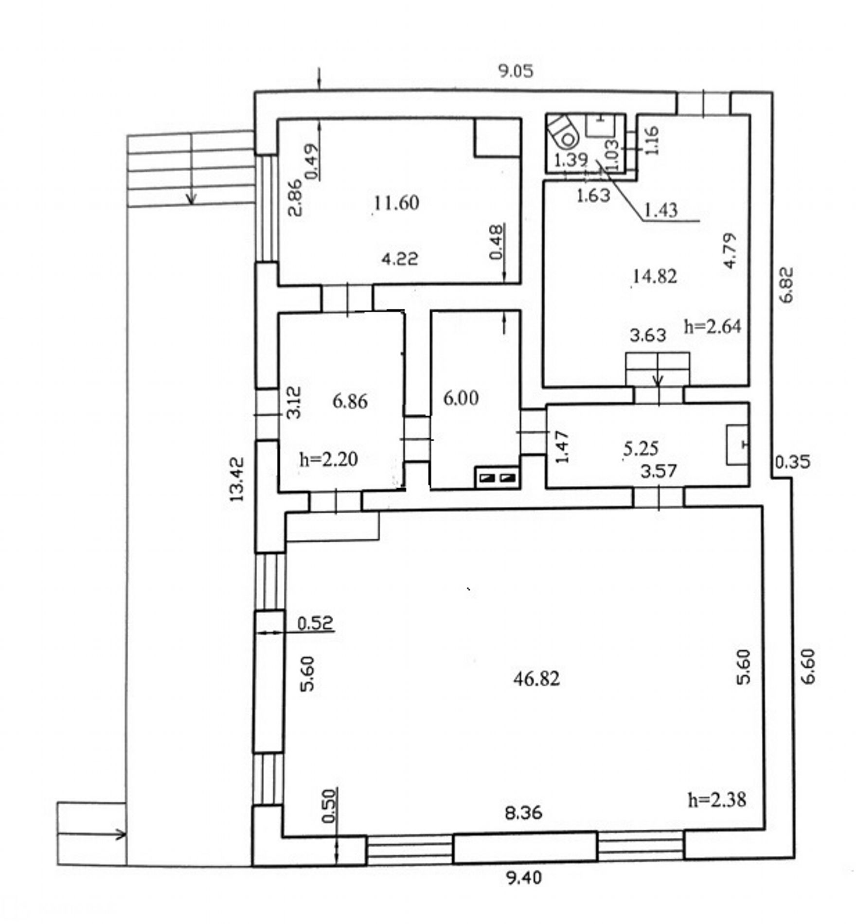
IŠPLANAVIMAS
- Patalpa: 46,82 kv.m.;
- Patalpa: 11,60 kv.m;
- Sandėlis/Daiktų patalpa: 14,82 kv.m.;
- WC: 1,43 kv.m;
- Virtuvėlė: 5,25 kv.m;
- Koridorius: ~6 kv.m;
- Koridorius: ~6,86 kv.m.
______________________________________________________________________________________
SKLYPAS:
- Bendras plotas 6,27 a;
- Paskirtis - kita, naudojimo būdai - komercinės paskirties objektų teritorijos;
- Žemės sklypas suformuotas atliekant kadastrinius matavimus.
______________________________________________________________________________________
PLATUS GALIMYBIŲ SPEKTRAS
• Parduotuvėlė: maisto ar specializuotų prekių;
• Grožio salonas: kirpykla, kosmetologijos kabinetas ar masažo salonas;
• Biuro patalpos: administracinei ar paslaugų veiklai;
• Dirbtuvės ar studija: rankdarbių, meninių projektų ar kitokiai kūrybinei veiklai;
• Kavinukė ar užkandinė: nedidelis maitinimo taškas pritrauks vietos gyventojus ir pravažiuojančius keliautojus.
______________________________________________________________________________________
Patalpos randasi ramioje, tačiau patogioje vietoje, kur netrūksta vietos automobilių parkavimui, o jaukus miestelio gyvenimo tempas užtikrins pastovų lankytojų srautą.
Dėl išsamesnės informacijos susisiekite ir susitarkite dėl apžiūros – įvertinkite šias galimybes gyvai! Visus naujausius CAPITAL nekilnojamojo turto skelbimus rasite mūsų internetiniame puslapyje www.capital.lt. Kviečiame apsilankyti!
SKAMBINKITE IR SAVAITGALIAIS – visuomet rasime patogų laiką Jūsų apžiūrai!
Parduodate patys? Drąsiai kreipkitės – nemokamai nustatysiu rinkos kainą ir patarsiu, kaip greičiau parduoti.
Norite pirkti ar išsinuomoti? Pasirūpinsiu, kad rastumėte būtent tai, ko ieškote, ir padėsiu visame procese.
Reikalingas matininkas, vertintojas, finansavimas ar kitas NT specialistas? Per ne vienerius metus užmezgiau platų patikimų partnerių tinklą – parinksiu tinkamiausią sprendimą ir Jus lydėsiu iki sėkmingo sandorio.
Jūsų NT brokerė – Ugnė Veršilaitė
Tel. +370 622 51998
Susisiekite jau dabar!
Padėsiu Jums sparčiau ir lengviau įgyvendinti visus su NT susijusius planus.
PRIVALUMAI:
- Patalpas galima pritaikyti ne tik prekybai;
- Du atskiri įėjimai. Iš gatvės ir iš kiemo pusės;
- Miestelis tik 18 km į pietvakarius nutolęs nuo Kaišiadorių.
______________________________________________________________________________________
BENDRA INFORMACIJA
- Adresas: Darsūniškio g. 3, Kruonis, Kaišiadorių r.;
- Namas: mūrinis, 1955 m. statybos; 2007 m. atlikta renovacija;
- Vienas aukštas;
- Vandentiekis: miesto;
- Kanalizacija: vietinė;
- Šildymas: oras–oras kondicionierius ir židinys – suteiks ne tik šilumą, bet ir jaukią atmosferą.
______________________________________________________________________________________
IŠPLANAVIMAS
- Patalpa: 46,82 kv.m.;
- Patalpa: 11,60 kv.m;
- Sandėlis/Daiktų patalpa: 14,82 kv.m.;
- WC: 1,43 kv.m;
- Virtuvėlė: 5,25 kv.m;
- Koridorius: ~6 kv.m;
- Koridorius: ~6,86 kv.m.
______________________________________________________________________________________
SKLYPAS:
- Bendras plotas 6,27 a;
- Paskirtis - kita, naudojimo būdai - komercinės paskirties objektų teritorijos;
- Žemės sklypas suformuotas atliekant kadastrinius matavimus.
______________________________________________________________________________________
PLATUS GALIMYBIŲ SPEKTRAS
• Parduotuvėlė: maisto ar specializuotų prekių;
• Grožio salonas: kirpykla, kosmetologijos kabinetas ar masažo salonas;
• Biuro patalpos: administracinei ar paslaugų veiklai;
• Dirbtuvės ar studija: rankdarbių, meninių projektų ar kitokiai kūrybinei veiklai;
• Kavinukė ar užkandinė: nedidelis maitinimo taškas pritrauks vietos gyventojus ir pravažiuojančius keliautojus.
______________________________________________________________________________________
Patalpos randasi ramioje, tačiau patogioje vietoje, kur netrūksta vietos automobilių parkavimui, o jaukus miestelio gyvenimo tempas užtikrins pastovų lankytojų srautą.
Dėl išsamesnės informacijos susisiekite ir susitarkite dėl apžiūros – įvertinkite šias galimybes gyvai! Visus naujausius CAPITAL nekilnojamojo turto skelbimus rasite mūsų internetiniame puslapyje www.capital.lt. Kviečiame apsilankyti!
SKAMBINKITE IR SAVAITGALIAIS – visuomet rasime patogų laiką Jūsų apžiūrai!
Parduodate patys? Drąsiai kreipkitės – nemokamai nustatysiu rinkos kainą ir patarsiu, kaip greičiau parduoti.
Norite pirkti ar išsinuomoti? Pasirūpinsiu, kad rastumėte būtent tai, ko ieškote, ir padėsiu visame procese.
Reikalingas matininkas, vertintojas, finansavimas ar kitas NT specialistas? Per ne vienerius metus užmezgiau platų patikimų partnerių tinklą – parinksiu tinkamiausią sprendimą ir Jus lydėsiu iki sėkmingo sandorio.
Jūsų NT brokerė – Ugnė Veršilaitė
Tel. +370 622 51998
Susisiekite jau dabar!
Padėsiu Jums sparčiau ir lengviau įgyvendinti visus su NT susijusius planus.

