Įsiminti
Namas pardavimui, Vilniaus r. sav., Rudamina, Gegužės 1-osios g. id:1027231 5 kmb.
98 000 €
658 €/m²
REKLAMA
Įmoka
369 €/mėn

Paskola 83 300 €
Palūkanos 3.40%
Trukmė 30 metų
Įsiminė
0
Parodymai
Šiandien: 91
Viso: 91
Peržiūros
Šiandien: 33
Viso: 32
Objekto informacija
REKLAMA
REKLAMA
Aprašymas
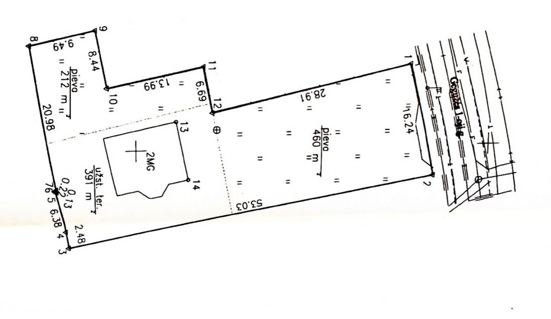
Parduodamas nebaigtos statybos, dalinės apdailos namas su 10,63 a. sklypu Rudaminos miestelyje patogioje lokacijoje - netoliese mokykla, darželiai, parduotuvės, picerija. Iki Vilniaus centro - tik 14km.
--------------------------------
BENDRA INFORMACIJA
• Namo plotas - 149.27 kv. m.
• Aukštai - 2;
• Namo tipas - blokinis;
• Sklypo plotas – 10,63 arai.
-------------------------------
IŠPLANAVIMAS:
1 aukštas: svetainė, valgomasis, tambūras: 61.83 kv.m.; virtuvė: 10.65 kv.m., san. mazgas: 7.65kv. m.
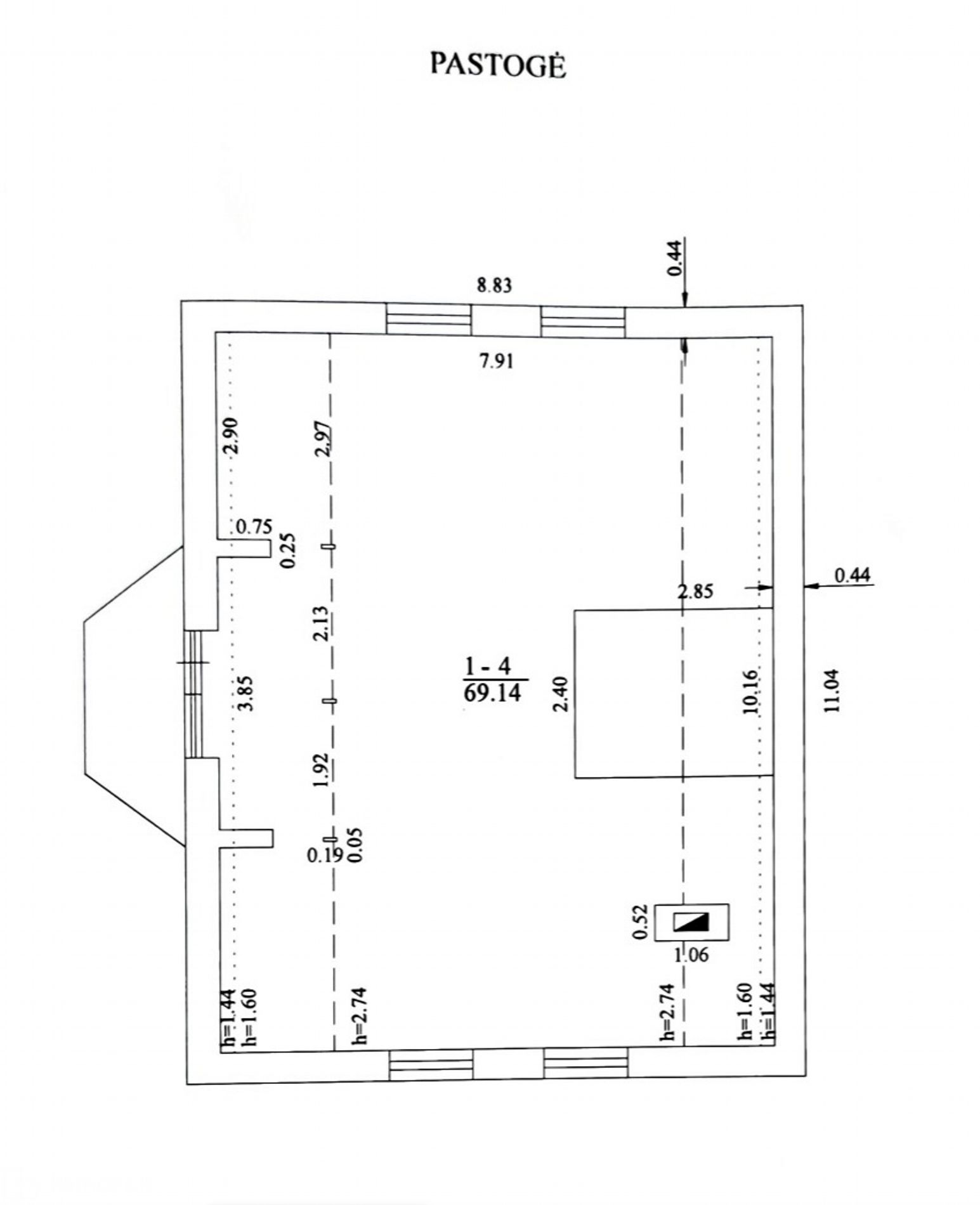
2 aukštas - pastogė: 69.14 kv.m.
--------------------------------
TECHNINĖ INFORMACIJA, ĮRENGIMAS SU DALINE APDAILA
Bendrieji darbai:
• Sienos: mūrytos iš blokelių;
• Fasadas: apšiltintas, užtinkuotas, paruoštas dekorui;
• Stogas: skardinis;
• Langai: plastikiniai;
• Lauko durys: medinės;
• Elektra: yra;
• Vandentiekis: miesto - vandentiekio vamzdynai viduje išvedžioti iki taškų;
• Kanalizacija: miesto, vamzdynai viduje išvedžioti iki taškų.
-------------------------------
PAPILDOMA INFORMACIJA:
Dokumentuose - 100% baigtumas;
Namo paskirtis - pagalbinio ūkio (pradetas namo paskirties keitimo procesas).
Visus naujausius CAPITAL nekilnojamojo turto skelbimus rasite mūsų internetiniame puslapyje www.capital.lt. Kviečiame apsilankyti!
MALONIAI KVIEČIAME ATVYKTI IR PAMATYTI NAMĄ GYVAI!
Ieškote, parduodate ar nuomojate nekilnojamąjį turtą?
- Visada rasiu laiko Jums ir padėsiu visais su nekilnojamuoju turtu susijusiais klausimais!
Netiko kaina? Teikite savo pasiūlymą - būtinai apsvarstysime!
SKAMBINTI GALITE IR SAVAITGALIAIS - sutarsime Jums patogų apžiūros laiką.
_________________________
RIČARDAS NOSEVIČIUS
Mob. tel.: +37061817321
El. paštas: [email protected]
--------------------------------
BENDRA INFORMACIJA
• Namo plotas - 149.27 kv. m.
• Aukštai - 2;
• Namo tipas - blokinis;
• Sklypo plotas – 10,63 arai.
-------------------------------
IŠPLANAVIMAS:
1 aukštas: svetainė, valgomasis, tambūras: 61.83 kv.m.; virtuvė: 10.65 kv.m., san. mazgas: 7.65kv. m.
2 aukštas - pastogė: 69.14 kv.m.
--------------------------------
TECHNINĖ INFORMACIJA, ĮRENGIMAS SU DALINE APDAILA
Bendrieji darbai:
• Sienos: mūrytos iš blokelių;
• Fasadas: apšiltintas, užtinkuotas, paruoštas dekorui;
• Stogas: skardinis;
• Langai: plastikiniai;
• Lauko durys: medinės;
• Elektra: yra;
• Vandentiekis: miesto - vandentiekio vamzdynai viduje išvedžioti iki taškų;
• Kanalizacija: miesto, vamzdynai viduje išvedžioti iki taškų.
-------------------------------
PAPILDOMA INFORMACIJA:
Dokumentuose - 100% baigtumas;
Namo paskirtis - pagalbinio ūkio (pradetas namo paskirties keitimo procesas).
Visus naujausius CAPITAL nekilnojamojo turto skelbimus rasite mūsų internetiniame puslapyje www.capital.lt. Kviečiame apsilankyti!
MALONIAI KVIEČIAME ATVYKTI IR PAMATYTI NAMĄ GYVAI!
Ieškote, parduodate ar nuomojate nekilnojamąjį turtą?
- Visada rasiu laiko Jums ir padėsiu visais su nekilnojamuoju turtu susijusiais klausimais!
Netiko kaina? Teikite savo pasiūlymą - būtinai apsvarstysime!
SKAMBINTI GALITE IR SAVAITGALIAIS - sutarsime Jums patogų apžiūros laiką.
_________________________
RIČARDAS NOSEVIČIUS
Mob. tel.: +37061817321
El. paštas: [email protected]
Nuotraukos
























