Įsiminti
Sodyba pardavimui, Vilniaus r. sav., Gineitiškės, Pelenės g. id:1030327 6 kmb.
670 000 €
1 432 €/m²
REKLAMA
Įmoka
2 526 €/mėn
Paskola 569 500 €
Palūkanos 3.40%
Trukmė 30 metų
Įsiminė
0
Parodymai
Šiandien: 43
Viso: 890
Peržiūros
Šiandien: 9
Viso: 56
Objekto informacija
REKLAMA
REKLAMA
Aprašymas
Jaukūs ir erdvūs namai šeimai – Gineitiškėse, Vilniaus r.
Vieta, kurioje šeimos gyvenimas taps patogus, jaukus ir saugus – su visais miesto patogumais ranka pasiekiamu atstumu.
Šis dviejų aukštų mūrinis namas Pelenės g., Gineitiškių k., yra puikus pasirinkimas tiems, kurie vertina erdvę, komfortą ir gamtos artumą, bet nori išlikti netoli Vilniaus centro.
Namo ypatybės:
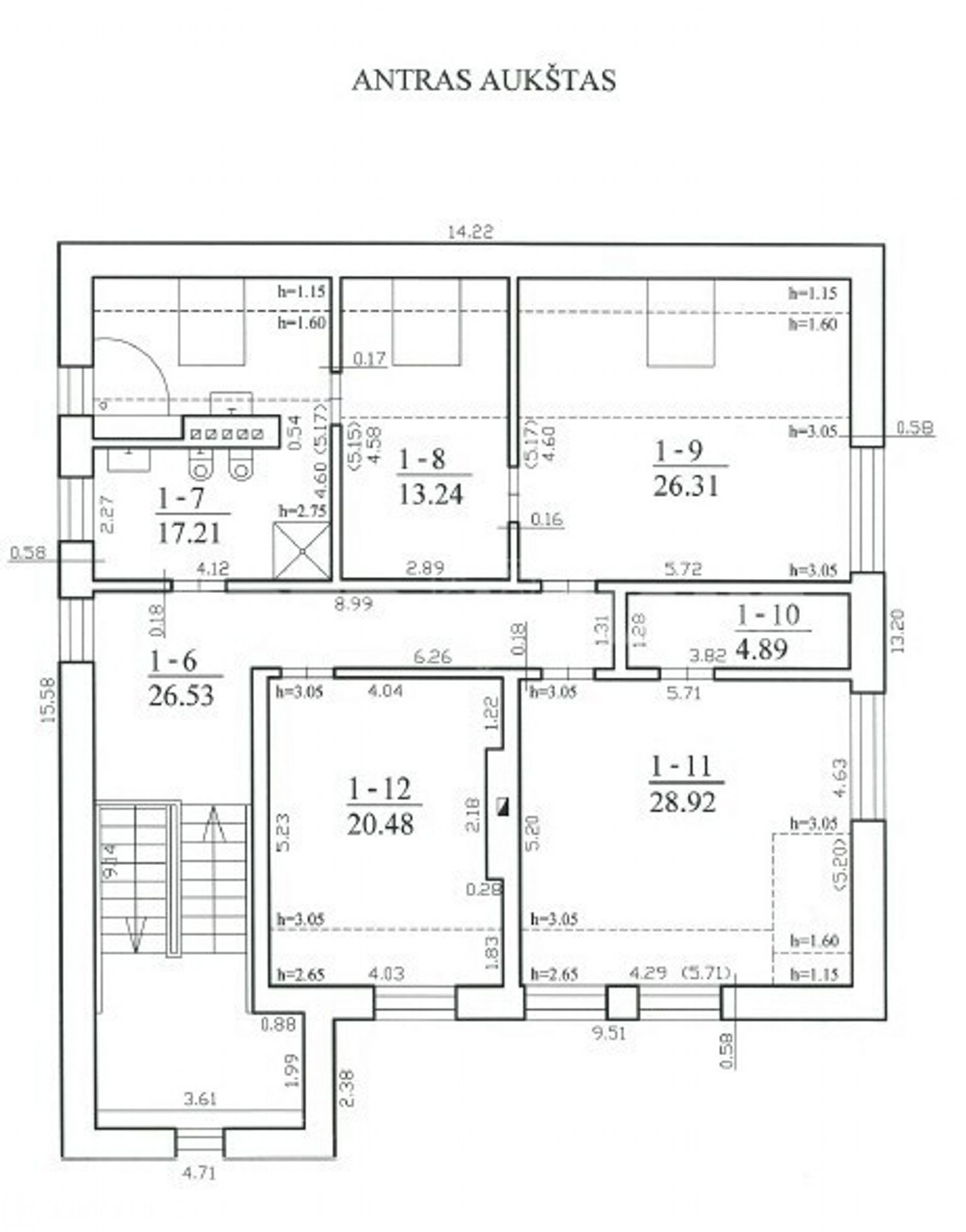
Erdvė šeimai: bendras namo plotas – 468,15 m², naudingas plotas – 425,74 m², gyvenamasis plotas – 178,91 m², garažo plotas – 42,41 m². Net 6 kambariai suteikia galimybę kiekvienam šeimos nariui turėti savo poilsio ar darbo kampelį.
Priestatas: 73,86 m² priestatas su lauko virtuve/terasa ir viršuje įrengta miegamųjų erdvė, puikiai tinkanti svečiams ar vaikų žaidimams.
Sklypas: 15 arų – erdvė vaikų žaidimams, poilsiui ar šeimos šventėms.
Sodas: įrengta laistymo sistema ir pastatytas šiltnamis, todėl galite džiaugtis savo daržovėmis bei gėlėmis visus metus.
Unikalus akcentas: name įrengtas didžiulis akvariumas, suteikiantis erdvėms ypatingo jaukumo ir ramybės.
Įrengimas: kokybiška pilna apdaila, natūralaus medžio langai, parketas, jauki svetainė, patogi virtuvė, valgomasis, drabužinė, vonios kambariai.
Komfortas: modernus dujinis šildymas, miesto komunikacijos, rekuperatorius, pirtis, baseinas, rūsys sandėliavimui, skalbykla.
Saugi aplinka: įrengta signalizacija, šarvuotos durys, garažas dviem automobiliams.
Aplinka ir kaimynystė:
Namas įsikūręs ramiame ir draugiškame Gineitiškių rajone – tvarkingos gatvės, bendruomeniška atmosfera, puiki vieta vaikams.
Netoliese – mokyklos, darželiai, parduotuvės, viešojo transporto stotelės, todėl viskas pasiekiama greitai ir patogiai.
Patogumas ir privatumas:
Asfaltuota gatvė ir gera privažiavimo galimybė.
Garažas dviem automobiliams ir papildomos vietos svečiams.
Didelis kiemas suteikia privatumo ir erdvės lauko veikloms.
Kodėl verta rinktis šį namą?
Šis namas – tai šeimos erdvė, kurioje galėsite auginti vaikus, priimti svečius, mėgautis gamta ir ramiu gyvenimu, bet išlikti arti miesto patogumų.
Priestatas su lauko virtuve/terasa ir miegamųjų zona suteikia papildomų galimybių šeimos laisvalaikiui, o laistymo sistema bei šiltnamis – mėgautis savo sodu visus metus.
Didžiulis akvariumas – ypatingas akcentas, suteikiantis namams unikalumo ir ramybės atmosferą.
Įrengtas rekuperatorius užtikrina šviežią orą ir komfortišką mikroklimatą visus metus.
Namai kur kiekviena šeimos diena taps ypatinga.
-- Objekto nr. Ober-Haus tinklapyje www.ober-haus.lt/OH502770
Profesionali pagalba parduodant, nuomojant ir įsigyjant nekilnojamąjį turtą:
- Sandoriui reikalingų dokumentų analizė prieš pardavimą;
- Preliminariųjų, rezervavimo sutarčių, priėmimo-perdavimo aktų ir kitų sutarties priedų bei dokumentų parengimas apsaugant jūsų interesus;
- Efektyvi ir itin platų pirkėjų ratą apimanti rinkodara ir marketingo priemonės, pirkėjų srauto monitoringas;
- Jūsų interesų atstovavimas derybose, sutarčių derinime;
- Konsultavimas mokestiniais, juridiniais klausimais.
Vieta, kurioje šeimos gyvenimas taps patogus, jaukus ir saugus – su visais miesto patogumais ranka pasiekiamu atstumu.
Šis dviejų aukštų mūrinis namas Pelenės g., Gineitiškių k., yra puikus pasirinkimas tiems, kurie vertina erdvę, komfortą ir gamtos artumą, bet nori išlikti netoli Vilniaus centro.
Namo ypatybės:
Erdvė šeimai: bendras namo plotas – 468,15 m², naudingas plotas – 425,74 m², gyvenamasis plotas – 178,91 m², garažo plotas – 42,41 m². Net 6 kambariai suteikia galimybę kiekvienam šeimos nariui turėti savo poilsio ar darbo kampelį.
Priestatas: 73,86 m² priestatas su lauko virtuve/terasa ir viršuje įrengta miegamųjų erdvė, puikiai tinkanti svečiams ar vaikų žaidimams.
Sklypas: 15 arų – erdvė vaikų žaidimams, poilsiui ar šeimos šventėms.
Sodas: įrengta laistymo sistema ir pastatytas šiltnamis, todėl galite džiaugtis savo daržovėmis bei gėlėmis visus metus.
Unikalus akcentas: name įrengtas didžiulis akvariumas, suteikiantis erdvėms ypatingo jaukumo ir ramybės.
Įrengimas: kokybiška pilna apdaila, natūralaus medžio langai, parketas, jauki svetainė, patogi virtuvė, valgomasis, drabužinė, vonios kambariai.
Komfortas: modernus dujinis šildymas, miesto komunikacijos, rekuperatorius, pirtis, baseinas, rūsys sandėliavimui, skalbykla.
Saugi aplinka: įrengta signalizacija, šarvuotos durys, garažas dviem automobiliams.
Aplinka ir kaimynystė:
Namas įsikūręs ramiame ir draugiškame Gineitiškių rajone – tvarkingos gatvės, bendruomeniška atmosfera, puiki vieta vaikams.
Netoliese – mokyklos, darželiai, parduotuvės, viešojo transporto stotelės, todėl viskas pasiekiama greitai ir patogiai.
Patogumas ir privatumas:
Asfaltuota gatvė ir gera privažiavimo galimybė.
Garažas dviem automobiliams ir papildomos vietos svečiams.
Didelis kiemas suteikia privatumo ir erdvės lauko veikloms.
Kodėl verta rinktis šį namą?
Šis namas – tai šeimos erdvė, kurioje galėsite auginti vaikus, priimti svečius, mėgautis gamta ir ramiu gyvenimu, bet išlikti arti miesto patogumų.
Priestatas su lauko virtuve/terasa ir miegamųjų zona suteikia papildomų galimybių šeimos laisvalaikiui, o laistymo sistema bei šiltnamis – mėgautis savo sodu visus metus.
Didžiulis akvariumas – ypatingas akcentas, suteikiantis namams unikalumo ir ramybės atmosferą.
Įrengtas rekuperatorius užtikrina šviežią orą ir komfortišką mikroklimatą visus metus.
Namai kur kiekviena šeimos diena taps ypatinga.
-- Objekto nr. Ober-Haus tinklapyje www.ober-haus.lt/OH502770
Profesionali pagalba parduodant, nuomojant ir įsigyjant nekilnojamąjį turtą:
- Sandoriui reikalingų dokumentų analizė prieš pardavimą;
- Preliminariųjų, rezervavimo sutarčių, priėmimo-perdavimo aktų ir kitų sutarties priedų bei dokumentų parengimas apsaugant jūsų interesus;
- Efektyvi ir itin platų pirkėjų ratą apimanti rinkodara ir marketingo priemonės, pirkėjų srauto monitoringas;
- Jūsų interesų atstovavimas derybose, sutarčių derinime;
- Konsultavimas mokestiniais, juridiniais klausimais.
Nuotraukos
