Namas pardavimui, Vilniaus r. sav., Avižieniai, Kernavės g. id:1030294 5 kmb.
Įmoka
1 316 €/mėn

Paskola 296 650 €
Palūkanos 3.40%
Trukmė 30 metų
Objekto informacija
Papildoma informacija
Išplanavimo privalumai
Papildoma įranga
Papildomos patalpos
Papildomai
Apsauga
Aprašymas
DIDELIS NAMAS SU ERDVIU SKLYPU!
*Namas šalimais TAIP PAT YRA PARDUODAMAS! Tad vis dar turite galimybę pasirinkti iš 2 skirtingų sklypų ir vidaus išplanavimų.
Šiame name Jūsų laukia jaukūs pasivakarojimai su draugais didelėje terasoje ir įsimintini BBQ, tyras oras rytais prie kavos ar arbatos, rudens ir žiemos savaitgaliai pirtelėje ir kubile, o vasaros metu - nuosavame baseine, kam yra pilna vietos įrengti sklype. Šis namas padės šeimai su vaikais išlaikyti tarpusavio darną - kiekvienas vaikas turės savo kambarį, o patys namai - ypatingai erdvūs. Taipogi turite 10 a. žemės, erdvų garažą, katilinę ir sandėliuką savo hobiams. Atvykit, susipažinkit ir pasvarstykit, kaip kasdienybė tokiame name galėtų įtakoti jūsų šeimos gyvenimo kokybę!
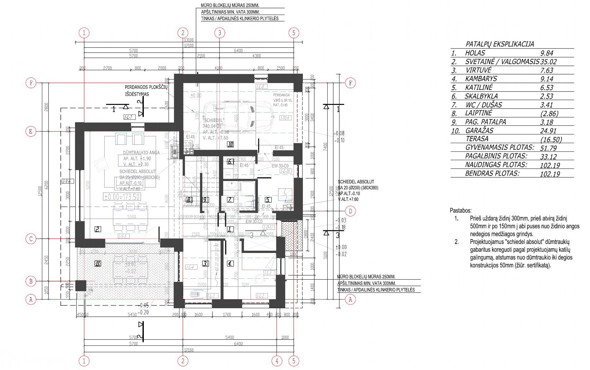
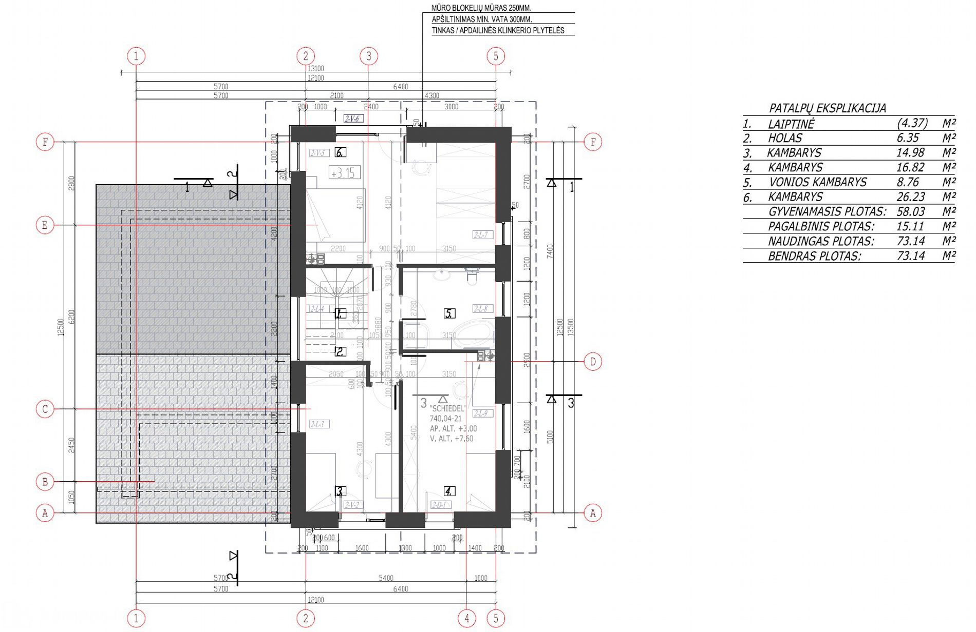
PAGRINDINĖ INFORMACIJA:
• 175,33 kv.m. namas
• 10 a. taisyklingos formos sklypas, aptvertas segmentine tvora
• 5 kambariai (4 miegamieji), 2 san. mazgai, katilinė, drabužinė
• Dalinė apdaila (85% baigtumas)
• 2 aukštai
• Šių metų statyba
• Aeroterminis grindinis šildymas
• Rekuperacinė sistema (išvedžioti ortaikiai)
• Vietinis vandentiekis ir nuotekos
• A+ energetinio naudingumo klasė
• Pietinė terasa su patekimu į svetainę
• Privatus, trinkelėmis išklotas parkingas ir perimetras aplink namą
• Prancūziški balkonai antrame aukšte
• Laidai išvedžioti lauko kameroms
STATYBINĖS MEDŽIAGOS, SPRENDIMAI IR KOKYBĖ:
‣ Monolitiniai gelžbetoniniai pamatai apšiltinti 10 cm putplasčiu iš apačios ir iš viršaus, ir 20 cm. - iš išorės aplink namo perimetrą.
‣ Keramikinių blokelių su 30 cm. šilumine izoliacija sienos (1 aukšte - net ir pertvarinės sienos pastatytos iš keramikinių blokelių, ne gipskartonio!)
‣ Dekoratyvinio tinko ir klinkerio fasadas
‣ Dvišlaitis, skardinis, net 40 cm. storio vata apšiltintas stogas
‣ Plastikiniai, trijų stiklų A+ klasės langai
‣ Šarvo durys
‣ Atvesti kabeliai: ant stogo - saulės kolektoriams ir ant žemės - automatinei laistymo sistemai
‣ Išvesti neužšąlantys vamzdžiai laistymui
‣ Infiltraciniai šuliniai lietaus vandeniui
LOKACIJA:
• Tarp Pikutiškių ir Gilužių - 1 km. iki Vilniaus m. ribos
• TIK 4 min. automobiliu iki Gilužio ežero ir 900 m. pėstute
• ~ 300 m. iki asfaltuoto kelio, važiuojant pro Avižienių pusę
• KELETAS minučių automobiliu iki Avižienių darželių ir gimnazijos ir tik ~ 14 min. automobiliu iki Fabijoniškių
Apžiūras suderinsime Jums patogiu laiku! Padėsime su pirkimo procesu - vienų nepaliksime.
Nuotraukos




































