Įsiminti
Kotedžas pardavimui, Šiauliai, Lieporiai, Pikeliškės g. id:1034478 6 kmb.
165 000 €
679 €/m²
REKLAMA
Įmoka
622 €/mėn
Paskola 140 250 €
Palūkanos 3.40%
Trukmė 30 metų
Įsiminė
0
Parodymai
Šiandien: 152
Viso: 12945
Peržiūros
Šiandien: 37
Viso: 1499
Objekto informacija
Aprašymas
Pasiūlymas ieškantiems kotedžo gyvenimui ar užsiimti nuomos verslu! Parduodamas kotedžas Pikeliškių g. su garažu, ir 2 a žemės sklypu. Kotedžas sublokuotas su šalia esančiais kotedžais, turi uždarą kiemelį su terasa. Šiuo metu kotedžas yra paruoštas nuomai ir nuomojamas, todėl norintiems užsiimti nuomos veikla, jau turėtumėt paruoštas patalpas.
BENDRA INFORMACIJA:
• Bendras kotedžo plotas: 243,74 m², gyvenamas plotas 162,57 m²;
• Garažo plotas 19,78 m²;
• Įrengimas: pilna apdaila, baigtumas 100 proc.;
• Kambarių skaičius: 6;
• Aukštų skaičius: du aukštai ir įrengta palėpė;
• Statybos metai: 2021 m;
• Energetinio naudingumo klasė - C;
• Žemės sklypo plotas 2 a;
• Miesto vandentiekis ir kanalizacija, elektra, dujos;
• Šildymas: dujinis, dujų kondensacinis pečius Viesman, išvedžiotas grindinis šildymas visame name;
• Sumontuota priešgaisrinė sistema, įvestas internetas ir skaitmeninė televizija;
APDAILA IR ĮRENGIMAS:
• Pamatai: gręžtiniai monolitiniai, apšiltinti iš abiejų pusių;
• Sienos: blokeliai, 20 cm apšiltintos putų polistiroliu;
• Fasadas- klinkerio plytelės;
• Stogas: šlaitinis, skarda, apšiltintas;
• Langai: plastikiniai;
• Grindys: vinilinė danga, plytelės;
• Durys: vidaus - laminuotos; išorės - plastikinės;
• Lauko apdaila - išklotos betoninės trinkelės, sklype pasėta veja, terasa;
PIRMAS AUKŠTAS:
• Įrengta erdvi virtuvė, iš virtuvės išėjimas į lauko terasą ir vidinį kiemelį;,
• Garažas vienam automobiliui, automatiniai vartai, garaže sumontuoti vandens filtrai;
• Įrengtos dušo kabinos, wc, skalbykla su skalbimo mašinomis;
• Koridorius, sandėliukas;
• Virtuvėje bei koridoriuje sienos dažytos, grindys – vinilinė danga, plytelės, sumontuotas dujų pečius;
• Paliekami visi baldai;
ANTRAS AUKŠTAS:
• Įrengti du kambariai su išėjimu į balkonus;
• Du erdvūs balkonai;
• Sienos dažytos, vinilinė grindų danga;
• Vonios kambarys: wc, praustuvai;
• Paliekami visi baldai;
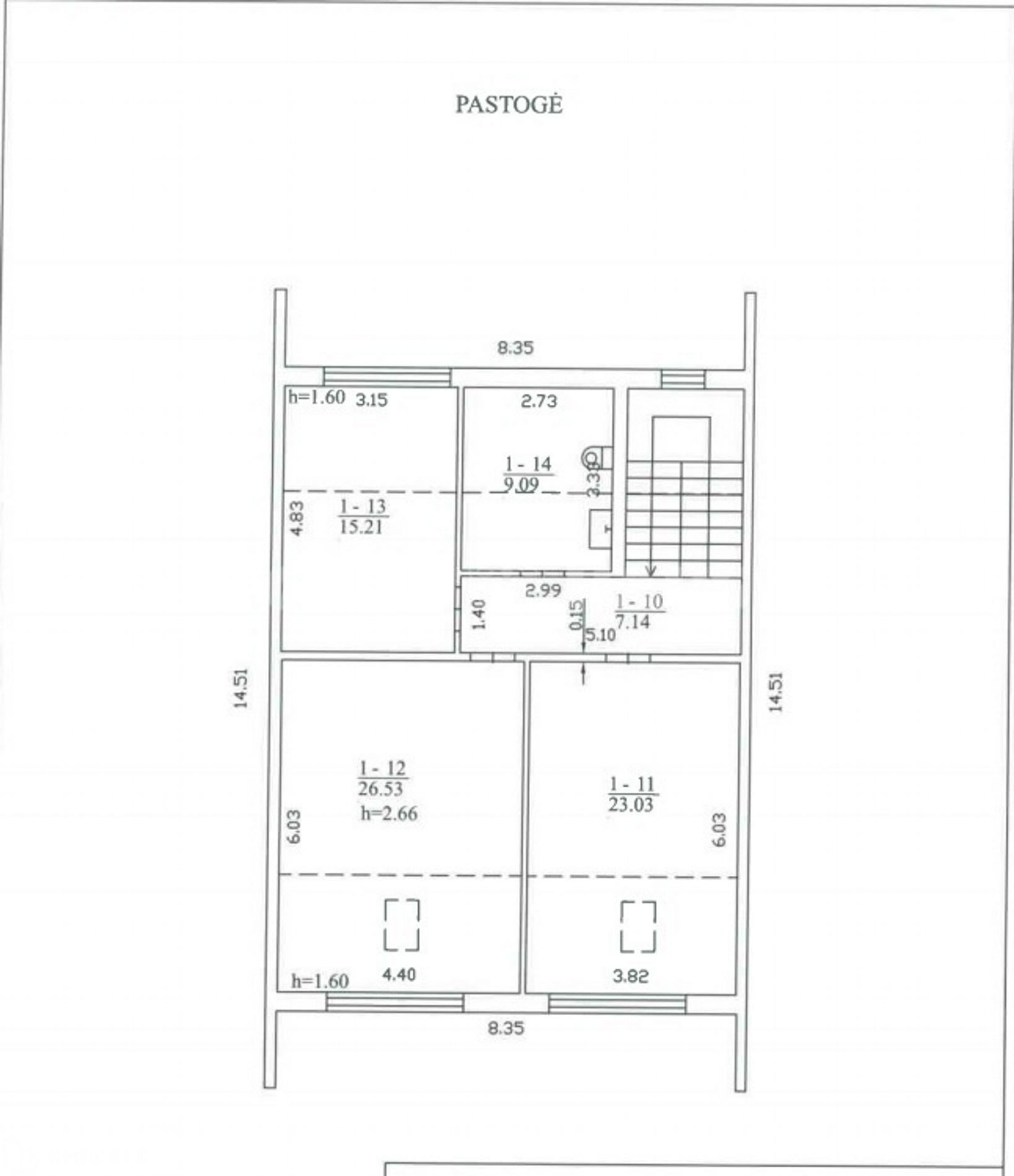
PASTOGĖ:
• Įrengti trys atskiri kambariai;
• Sienos dažytos, vinilinė grindų danga;
• Lubos iškaltos dailylentėmis, sumontuoti stoglangiai;
• Vonios kambarys: wc, praustuvai;
• Paliekami visi baldai;
APLINKA:
• Dvi automobilių parkavimo vietos šalia namo, kiemas išklotas trinkelėmis;
• Iki asfalto keli šimtai metrų;
• Kotedžas stovi akligatvyje, ramioje, nepravažiuojamoje vietoje;
• Šalia Baltų aplinkelis, iš kurio galima greitai patekti į kitus miesto rajonus, naujai sutvarkytos gatvės, šaligatviai;
• Patogi lokacija, geras susisiekimas su kitais miesto rajonais;
Domitės būstu, tačiau nežinote nuo ko pradėti? Skambinkite, padėsime išspręsti jūsų lūkesčius.
Daugiau info tel: +37063827509
-- Objekto nr. Ober-Haus tinklapyje www.ober-haus.lt/OH503180
Profesionali pagalba parduodant, nuomojant ir įsigyjant nekilnojamąjį turtą:
- Sandoriui reikalingų dokumentų analizė prieš pardavimą;
- Preliminariųjų, rezervavimo sutarčių, priėmimo-perdavimo aktų ir kitų sutarties priedų bei dokumentų parengimas apsaugant jūsų interesus;
- Efektyvi ir itin platų pirkėjų ratą apimanti rinkodara ir marketingo priemonės, pirkėjų srauto monitoringas;
- Jūsų interesų atstovavimas derybose, sutarčių derinime;
- Konsultavimas mokestiniais, juridiniais klausimais.
BENDRA INFORMACIJA:
• Bendras kotedžo plotas: 243,74 m², gyvenamas plotas 162,57 m²;
• Garažo plotas 19,78 m²;
• Įrengimas: pilna apdaila, baigtumas 100 proc.;
• Kambarių skaičius: 6;
• Aukštų skaičius: du aukštai ir įrengta palėpė;
• Statybos metai: 2021 m;
• Energetinio naudingumo klasė - C;
• Žemės sklypo plotas 2 a;
• Miesto vandentiekis ir kanalizacija, elektra, dujos;
• Šildymas: dujinis, dujų kondensacinis pečius Viesman, išvedžiotas grindinis šildymas visame name;
• Sumontuota priešgaisrinė sistema, įvestas internetas ir skaitmeninė televizija;
APDAILA IR ĮRENGIMAS:
• Pamatai: gręžtiniai monolitiniai, apšiltinti iš abiejų pusių;
• Sienos: blokeliai, 20 cm apšiltintos putų polistiroliu;
• Fasadas- klinkerio plytelės;
• Stogas: šlaitinis, skarda, apšiltintas;
• Langai: plastikiniai;
• Grindys: vinilinė danga, plytelės;
• Durys: vidaus - laminuotos; išorės - plastikinės;
• Lauko apdaila - išklotos betoninės trinkelės, sklype pasėta veja, terasa;
PIRMAS AUKŠTAS:
• Įrengta erdvi virtuvė, iš virtuvės išėjimas į lauko terasą ir vidinį kiemelį;,
• Garažas vienam automobiliui, automatiniai vartai, garaže sumontuoti vandens filtrai;
• Įrengtos dušo kabinos, wc, skalbykla su skalbimo mašinomis;
• Koridorius, sandėliukas;
• Virtuvėje bei koridoriuje sienos dažytos, grindys – vinilinė danga, plytelės, sumontuotas dujų pečius;
• Paliekami visi baldai;
ANTRAS AUKŠTAS:
• Įrengti du kambariai su išėjimu į balkonus;
• Du erdvūs balkonai;
• Sienos dažytos, vinilinė grindų danga;
• Vonios kambarys: wc, praustuvai;
• Paliekami visi baldai;
PASTOGĖ:
• Įrengti trys atskiri kambariai;
• Sienos dažytos, vinilinė grindų danga;
• Lubos iškaltos dailylentėmis, sumontuoti stoglangiai;
• Vonios kambarys: wc, praustuvai;
• Paliekami visi baldai;
APLINKA:
• Dvi automobilių parkavimo vietos šalia namo, kiemas išklotas trinkelėmis;
• Iki asfalto keli šimtai metrų;
• Kotedžas stovi akligatvyje, ramioje, nepravažiuojamoje vietoje;
• Šalia Baltų aplinkelis, iš kurio galima greitai patekti į kitus miesto rajonus, naujai sutvarkytos gatvės, šaligatviai;
• Patogi lokacija, geras susisiekimas su kitais miesto rajonais;
Domitės būstu, tačiau nežinote nuo ko pradėti? Skambinkite, padėsime išspręsti jūsų lūkesčius.
Daugiau info tel: +37063827509
-- Objekto nr. Ober-Haus tinklapyje www.ober-haus.lt/OH503180
Profesionali pagalba parduodant, nuomojant ir įsigyjant nekilnojamąjį turtą:
- Sandoriui reikalingų dokumentų analizė prieš pardavimą;
- Preliminariųjų, rezervavimo sutarčių, priėmimo-perdavimo aktų ir kitų sutarties priedų bei dokumentų parengimas apsaugant jūsų interesus;
- Efektyvi ir itin platų pirkėjų ratą apimanti rinkodara ir marketingo priemonės, pirkėjų srauto monitoringas;
- Jūsų interesų atstovavimas derybose, sutarčių derinime;
- Konsultavimas mokestiniais, juridiniais klausimais.

