Įsiminti
Kotedžas pardavimui, Šiauliai, Centras, Žemaitės g. id:1036272 3 kmb.
216 000 €
2 400 €/m²
REKLAMA
Įmoka
814 €/mėn
Paskola 183 600 €
Palūkanos 3.40%
Trukmė 30 metų
Įsiminė
0
Parodymai
Šiandien: 29
Viso: 7712
Peržiūros
Šiandien: 5
Viso: 1014
Objekto informacija
Aprašymas
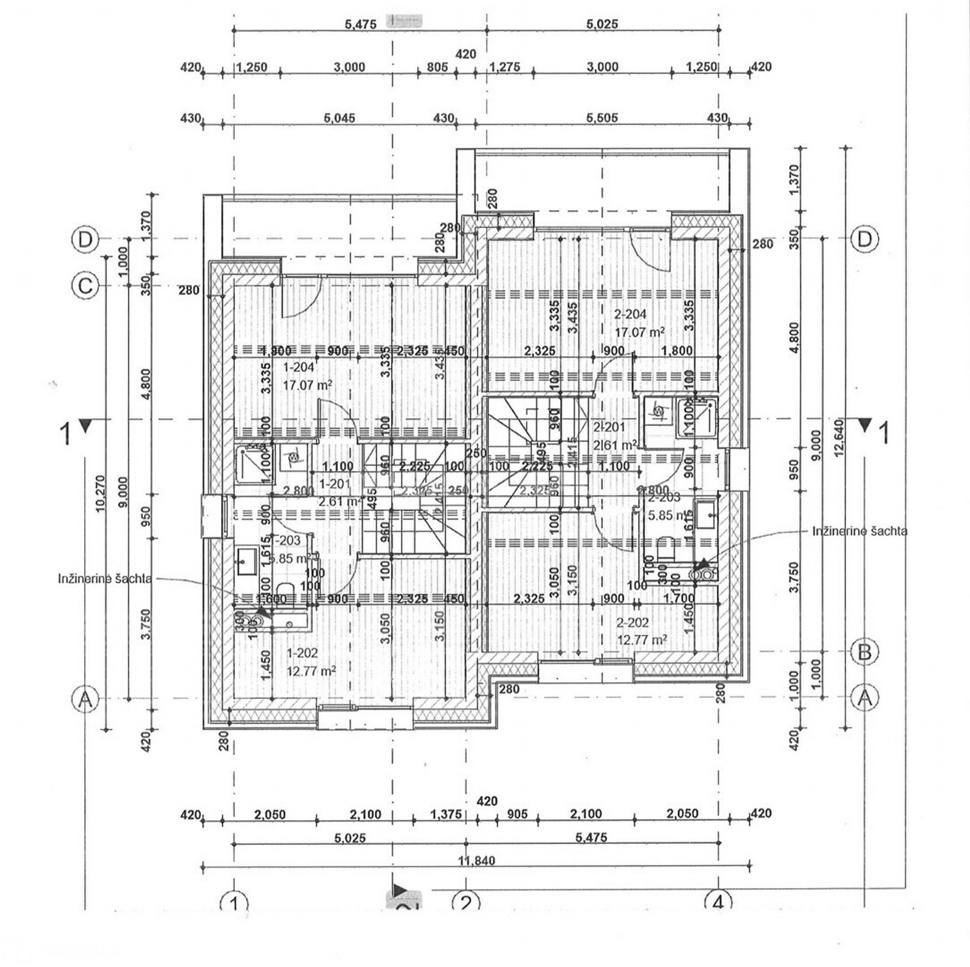
Puikus pasiūlymas ieškantiems kotedžo! Naujas projektas rinkoje - 9 vienetų kotedžų kvartalas Šiaulių mieste, šalia centrinio parko.
Parduodami kotedžai 3 atskiri ir 3 sublokuoti po du. Pirmieji išsirenka geriausius. Visi kotedžai statybos eigoje. Galima rezervacija.
BENDRA INFORMACIJA:
• Bendras vieno kotedžo plotas: 90 m²;
• Įrengimas: vidaus dalinė apdaila, išorės baigtumas 100 proc.;
• Kambarių skaičius: 3;
• Aukštų skaičius: 2;
• Energetinio naudingumo klasė - A+;
• Žemės sklypo plotas nuo 1,78 a - 3,30 a naudojama individualiai, plius bendro naudojimo žemė - 0,38 a;
• Nustatyta sklypų naudojimosi tvarka.
KOMUNIKACIJOS:
• Elektra: 5 kw įvadas į namą, įrengtas elektros skydelis su automatais;
• Vandentiekis - miesto, įvadas iki kiekvieno namo, namo viduje vandentiekio vamzdžiai atvedami iki santechninių prietaisų;
• Kanalizacija - miesto, vamzdžiai atvedami iki santechninių prietaisų pagal išplanavimą;
• Lietaus nuotekos išvestos į bendrus lauko nuotekų tinklus;
• Šildymas - dujinis kondensacinis katilas, išvedžiotas grindinis šildymas visame name;
• Vėdinimas: rekuperacinė vėdinimo sistema - išvedžioti ortakiai į kiekvieną patalpą, įrengta kolektorinė sistema oro padavimui- išmetimui, be rekuperatoriaus;
APDAILA IR ĮRENGIMAS:
• Pamatai: gręžtiniai monolitiniai, apšiltinti putoplastu 10 cm iš vidaus ir 20 cm ir išorės;;
• Sienos: 25 cm akyto betono blokeliai, apšiltintos 25 cm akmens vata;
• Vidinės pertvaros iš dvigubo gipso kartono plokščių 15 cm.
• Fasadas - keraminės čerpės;
• Stogas - šlaitinis, stogo danga - keraminė čerpė, apšiltintas 25 cm akmens vata ir 25 cm poliuretano putomis, sumontuoti lietaus latakai ir lietvamžiai;
• Langai: kokybiški, plastikiniai, atitinkantys A+ klasę, antracito spalvos, plangės skarda;
• Grindys: šiltinimas ne mažiau 20 cm putų polistiroliu, 7 cm išlyginamasis betono sluoksnis su išvedžiotu grindiniu šildymu;
• Durys: A+ klasės, aliuminio;
• Bus įrengta 18 m² impregnuotų medžio lentų lauko terasa, sklypas išklotas betoninėmis trinkelėmis;
Susisiekite, dėl Jus dominančių klausimų ir suplanuokime Jums tinkantį laiką apžiūrai: +37069599366.
-- Objekto nr. Ober-Haus tinklapyje www.ober-haus.lt/OH503503
Profesionali pagalba parduodant, nuomojant ir įsigyjant nekilnojamąjį turtą:
- Sandoriui reikalingų dokumentų analizė prieš pardavimą;
- Preliminariųjų, rezervavimo sutarčių, priėmimo-perdavimo aktų ir kitų sutarties priedų bei dokumentų parengimas apsaugant jūsų interesus;
- Efektyvi ir itin platų pirkėjų ratą apimanti rinkodara ir marketingo priemonės, pirkėjų srauto monitoringas;
- Jūsų interesų atstovavimas derybose, sutarčių derinime;
- Konsultavimas mokestiniais, juridiniais klausimais.
Parduodami kotedžai 3 atskiri ir 3 sublokuoti po du. Pirmieji išsirenka geriausius. Visi kotedžai statybos eigoje. Galima rezervacija.
BENDRA INFORMACIJA:
• Bendras vieno kotedžo plotas: 90 m²;
• Įrengimas: vidaus dalinė apdaila, išorės baigtumas 100 proc.;
• Kambarių skaičius: 3;
• Aukštų skaičius: 2;
• Energetinio naudingumo klasė - A+;
• Žemės sklypo plotas nuo 1,78 a - 3,30 a naudojama individualiai, plius bendro naudojimo žemė - 0,38 a;
• Nustatyta sklypų naudojimosi tvarka.
KOMUNIKACIJOS:
• Elektra: 5 kw įvadas į namą, įrengtas elektros skydelis su automatais;
• Vandentiekis - miesto, įvadas iki kiekvieno namo, namo viduje vandentiekio vamzdžiai atvedami iki santechninių prietaisų;
• Kanalizacija - miesto, vamzdžiai atvedami iki santechninių prietaisų pagal išplanavimą;
• Lietaus nuotekos išvestos į bendrus lauko nuotekų tinklus;
• Šildymas - dujinis kondensacinis katilas, išvedžiotas grindinis šildymas visame name;
• Vėdinimas: rekuperacinė vėdinimo sistema - išvedžioti ortakiai į kiekvieną patalpą, įrengta kolektorinė sistema oro padavimui- išmetimui, be rekuperatoriaus;
APDAILA IR ĮRENGIMAS:
• Pamatai: gręžtiniai monolitiniai, apšiltinti putoplastu 10 cm iš vidaus ir 20 cm ir išorės;;
• Sienos: 25 cm akyto betono blokeliai, apšiltintos 25 cm akmens vata;
• Vidinės pertvaros iš dvigubo gipso kartono plokščių 15 cm.
• Fasadas - keraminės čerpės;
• Stogas - šlaitinis, stogo danga - keraminė čerpė, apšiltintas 25 cm akmens vata ir 25 cm poliuretano putomis, sumontuoti lietaus latakai ir lietvamžiai;
• Langai: kokybiški, plastikiniai, atitinkantys A+ klasę, antracito spalvos, plangės skarda;
• Grindys: šiltinimas ne mažiau 20 cm putų polistiroliu, 7 cm išlyginamasis betono sluoksnis su išvedžiotu grindiniu šildymu;
• Durys: A+ klasės, aliuminio;
• Bus įrengta 18 m² impregnuotų medžio lentų lauko terasa, sklypas išklotas betoninėmis trinkelėmis;
Susisiekite, dėl Jus dominančių klausimų ir suplanuokime Jums tinkantį laiką apžiūrai: +37069599366.
-- Objekto nr. Ober-Haus tinklapyje www.ober-haus.lt/OH503503
Profesionali pagalba parduodant, nuomojant ir įsigyjant nekilnojamąjį turtą:
- Sandoriui reikalingų dokumentų analizė prieš pardavimą;
- Preliminariųjų, rezervavimo sutarčių, priėmimo-perdavimo aktų ir kitų sutarties priedų bei dokumentų parengimas apsaugant jūsų interesus;
- Efektyvi ir itin platų pirkėjų ratą apimanti rinkodara ir marketingo priemonės, pirkėjų srauto monitoringas;
- Jūsų interesų atstovavimas derybose, sutarčių derinime;
- Konsultavimas mokestiniais, juridiniais klausimais.

