Įsiminti
Kotedžas pardavimui, Šiaulių r. sav., Verduliukai, Jotvingių g. id:1035734 4 kmb.
157 000 €
1 377 €/m²
REKLAMA
Įmoka
592 €/mėn
Paskola 133 450 €
Palūkanos 3.40%
Trukmė 30 metų
Įsiminė
0
Parodymai
Šiandien: 41
Viso: 41
Peržiūros
Šiandien: 21
Viso: 20
Objekto informacija
Aprašymas
Pradėtos trečio etapo statybos Jotvingių g.
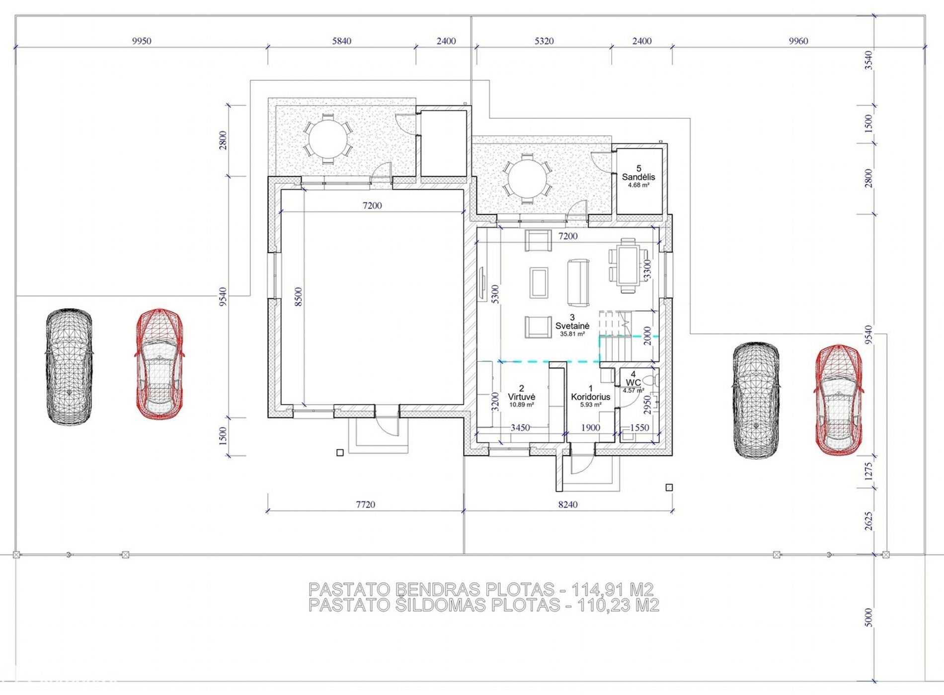
Parduodamas trečias (paskutinis) 2026 metų statybos sublokuotas dvipusis kotedžas Jotvingių g. 85, energetinė klasė A++. Rami, žaluma apsupta vieta, atsiribojusi nuo miesto triukšmo, susiformavusiame gyvenamųjų namų kvartale, iki asfalto apie 200 m, šalia praeina dujų trąsa. Akligatvis, kuris suteikia papildomai privatumo, kotedžas stovi toliau nuo pagrindinės gatvės. Apie vieno kilometro atstumu yra mokykla, vaikų ugdymo įstaigos, prekybos centrai Akropolis, Rimi. Geras susisiekimas su kitais miesto rajonais. Į sklypą atvestos miesto komunikacijos: elektra, vanduo, kanalizacija. Kiekvienas kotedžas turės savo numatytą parkavimosi aikštelę, virš kurios bus galima įsirengti stoginę. Stogo konstrukcija sumontuota taip, kad pietinio šlaito pusėje galima būtų montuoti saulės jėgainę. Kotedžo baigtumas 85 proc. Statybų pabaiga numatoma 2026 metų birželio mėnesį. Esant poreikiui galima antro aukšto 3 k. perplanuoti į 4 kambarius, taip pat galimi antro aukšto sienų perplanavimo darbai pagal poreikius.
BENDRA INFORMACIJA:
• Bendras kotedžo plotas 114,91 m²;
• Žemės sklypas 4,80 a;
• Baigtumas 85 proc.;
• Energetinė klasė A++;
• Kambarių skaičius: 4;
• Aukštų skaičius: du aukštai;
• Miesto vanduo, kanalizacija;
APDAILA IR ĮRENGIMAS:
• Į namą atvesti ir išvedžioti vandentiekio, kanalizacijos įvadai, pajungti prie miesto tinklų;
• Pastatytas šilumos paskirstymo kolektorius (bazinis variantas);
• Išvedžiota elektros instaliacija; pastatyta elektros paskirstymo dėžutė (bazinė);
• Sumontuota rekuperacinė sistema;
• Pamatai: gręžtiniai, apšiltinti iš abiejų pusių pagal projektą;
• Sienos: 25 cm dujų silikato blokeliai, apšiltinti 25 cm neoporu;
• Fasado apdaila- dekoratyvinis tinkas;
• Stogas- profiliuotos skardos lakštai;
• Perdanga: apšiltinta 45 cm akmens vata;
• Langai: plastikiniai langai, atitinkantys A++ klasę;
• Išorinės durys - plastiko;
• Grindys: išvedžiotas grindinis šildymas, išbetonuotos grindys;
• Laiptai: gelžbetoninių laiptų konstrukcija;
• Vidaus sienos: tinkuotos;
APLINKA:
• Sutvarkytas gerbūvis: išklotos betoninės trinkelės, išlygintas sklypas, pasėta žolė, aptverta segmentinė tvora teritorija;
• Terasa: betoninio pagrindo;
• Lauko sandėliukas (mūrinis);
Domitės būstu, tačiau nežinote nuo ko pradėti? Skambinkite, padėsime išspręsti jūsų rūpesčius. Galima rezervacija.
Daugiau info tel: +37063827509
-- Objekto nr. Ober-Haus tinklapyje www.ober-haus.lt/OH495894
Profesionali pagalba parduodant, nuomojant ir įsigyjant nekilnojamąjį turtą:
- Sandoriui reikalingų dokumentų analizė prieš pardavimą;
- Preliminariųjų, rezervavimo sutarčių, priėmimo-perdavimo aktų ir kitų sutarties priedų bei dokumentų parengimas apsaugant jūsų interesus;
- Efektyvi ir itin platų pirkėjų ratą apimanti rinkodara ir marketingo priemonės, pirkėjų srauto monitoringas;
- Jūsų interesų atstovavimas derybose, sutarčių derinime;
- Konsultavimas mokestiniais, juridiniais klausimais.
Parduodamas trečias (paskutinis) 2026 metų statybos sublokuotas dvipusis kotedžas Jotvingių g. 85, energetinė klasė A++. Rami, žaluma apsupta vieta, atsiribojusi nuo miesto triukšmo, susiformavusiame gyvenamųjų namų kvartale, iki asfalto apie 200 m, šalia praeina dujų trąsa. Akligatvis, kuris suteikia papildomai privatumo, kotedžas stovi toliau nuo pagrindinės gatvės. Apie vieno kilometro atstumu yra mokykla, vaikų ugdymo įstaigos, prekybos centrai Akropolis, Rimi. Geras susisiekimas su kitais miesto rajonais. Į sklypą atvestos miesto komunikacijos: elektra, vanduo, kanalizacija. Kiekvienas kotedžas turės savo numatytą parkavimosi aikštelę, virš kurios bus galima įsirengti stoginę. Stogo konstrukcija sumontuota taip, kad pietinio šlaito pusėje galima būtų montuoti saulės jėgainę. Kotedžo baigtumas 85 proc. Statybų pabaiga numatoma 2026 metų birželio mėnesį. Esant poreikiui galima antro aukšto 3 k. perplanuoti į 4 kambarius, taip pat galimi antro aukšto sienų perplanavimo darbai pagal poreikius.
BENDRA INFORMACIJA:
• Bendras kotedžo plotas 114,91 m²;
• Žemės sklypas 4,80 a;
• Baigtumas 85 proc.;
• Energetinė klasė A++;
• Kambarių skaičius: 4;
• Aukštų skaičius: du aukštai;
• Miesto vanduo, kanalizacija;
APDAILA IR ĮRENGIMAS:
• Į namą atvesti ir išvedžioti vandentiekio, kanalizacijos įvadai, pajungti prie miesto tinklų;
• Pastatytas šilumos paskirstymo kolektorius (bazinis variantas);
• Išvedžiota elektros instaliacija; pastatyta elektros paskirstymo dėžutė (bazinė);
• Sumontuota rekuperacinė sistema;
• Pamatai: gręžtiniai, apšiltinti iš abiejų pusių pagal projektą;
• Sienos: 25 cm dujų silikato blokeliai, apšiltinti 25 cm neoporu;
• Fasado apdaila- dekoratyvinis tinkas;
• Stogas- profiliuotos skardos lakštai;
• Perdanga: apšiltinta 45 cm akmens vata;
• Langai: plastikiniai langai, atitinkantys A++ klasę;
• Išorinės durys - plastiko;
• Grindys: išvedžiotas grindinis šildymas, išbetonuotos grindys;
• Laiptai: gelžbetoninių laiptų konstrukcija;
• Vidaus sienos: tinkuotos;
APLINKA:
• Sutvarkytas gerbūvis: išklotos betoninės trinkelės, išlygintas sklypas, pasėta žolė, aptverta segmentinė tvora teritorija;
• Terasa: betoninio pagrindo;
• Lauko sandėliukas (mūrinis);
Domitės būstu, tačiau nežinote nuo ko pradėti? Skambinkite, padėsime išspręsti jūsų rūpesčius. Galima rezervacija.
Daugiau info tel: +37063827509
-- Objekto nr. Ober-Haus tinklapyje www.ober-haus.lt/OH495894
Profesionali pagalba parduodant, nuomojant ir įsigyjant nekilnojamąjį turtą:
- Sandoriui reikalingų dokumentų analizė prieš pardavimą;
- Preliminariųjų, rezervavimo sutarčių, priėmimo-perdavimo aktų ir kitų sutarties priedų bei dokumentų parengimas apsaugant jūsų interesus;
- Efektyvi ir itin platų pirkėjų ratą apimanti rinkodara ir marketingo priemonės, pirkėjų srauto monitoringas;
- Jūsų interesų atstovavimas derybose, sutarčių derinime;
- Konsultavimas mokestiniais, juridiniais klausimais.
Nuotraukos
