Įsiminti
Sodyba pardavimui, Šiaulių r. sav., Liepkalnis, Svarainių g. id:1036461
57 500 €
719 €/m²
REKLAMA
Įmoka
217 €/mėn
Paskola 48 875 €
Palūkanos 3.40%
Trukmė 30 metų
Įsiminė
0
Parodymai
Šiandien: 52
Viso: 11269
Peržiūros
Šiandien: 20
Viso: 3519
Objekto informacija
Aprašymas
DĖMESIO DARBŠTUOLIAI IR ERDVIŲ MYLĖTOJAI !!!
SB PAVENTYS , Svarainių g., Liepkalnio km., Kuršėnų kaimiškoji seniūnija, PARDUODAMI penki megėjų sodo žemės sklypai su nebaigtu statyti 54,89 kv. m.sodo namu, poilsio zonomis, erdve relaksui ir galimybe plėtoti žemės ūkį. Viso bendras sklypų plotas – 34,60 a
BENDRA SKLYPŲ INFORMACIJA :
SKLYPAS Svarainių g. 20, Liepkalnio km., 7,07 a žemės sklypas, suformuotas atliekant kadastrinius matavimus, sklype yra šulinys, pastatytas šiltnamis, dirbama žemė;
SKLYPAS Svarainių g. 22, Liepkalnio km., 7,08 a žemės sklypas, suformuotas atliekant preliminarius matavimus, sklype dalis ūkinių statinių;
SKLYPAS Svarainių g. 24, Liepkalnio km., 7,6 a žemės sklypas, suformuotas atliekant kadastrinius matavimus, sklype yra nebaigtas statyti karkasinis sodo namas, įregistruotas Registrų centre 74 proc. baigtumas; elektros įvadas su trifaze elektra ir 10 kw galia, šulinys;
SKLYPAS Svarainių g. 26, Liepkalnio km., 6,92 a žemės sklypas, suformuotas atliekant kadastrinius matavimus, dirbama žemė su braškių lysvėmis;
SKLYPAS Agrastų g. 13 Liepkalnio km.: 5,93 a žemės sklypas, suformuotas atliekant kadastrinius matavimus, brandus beržynas , poilsio zona, įrengta laistymo sistema, naudojanti vandenį iš netoliese esančios Ventos upės;
NAMO INFORMACIJA:
- Statybos pradžios metai – 2015 m.
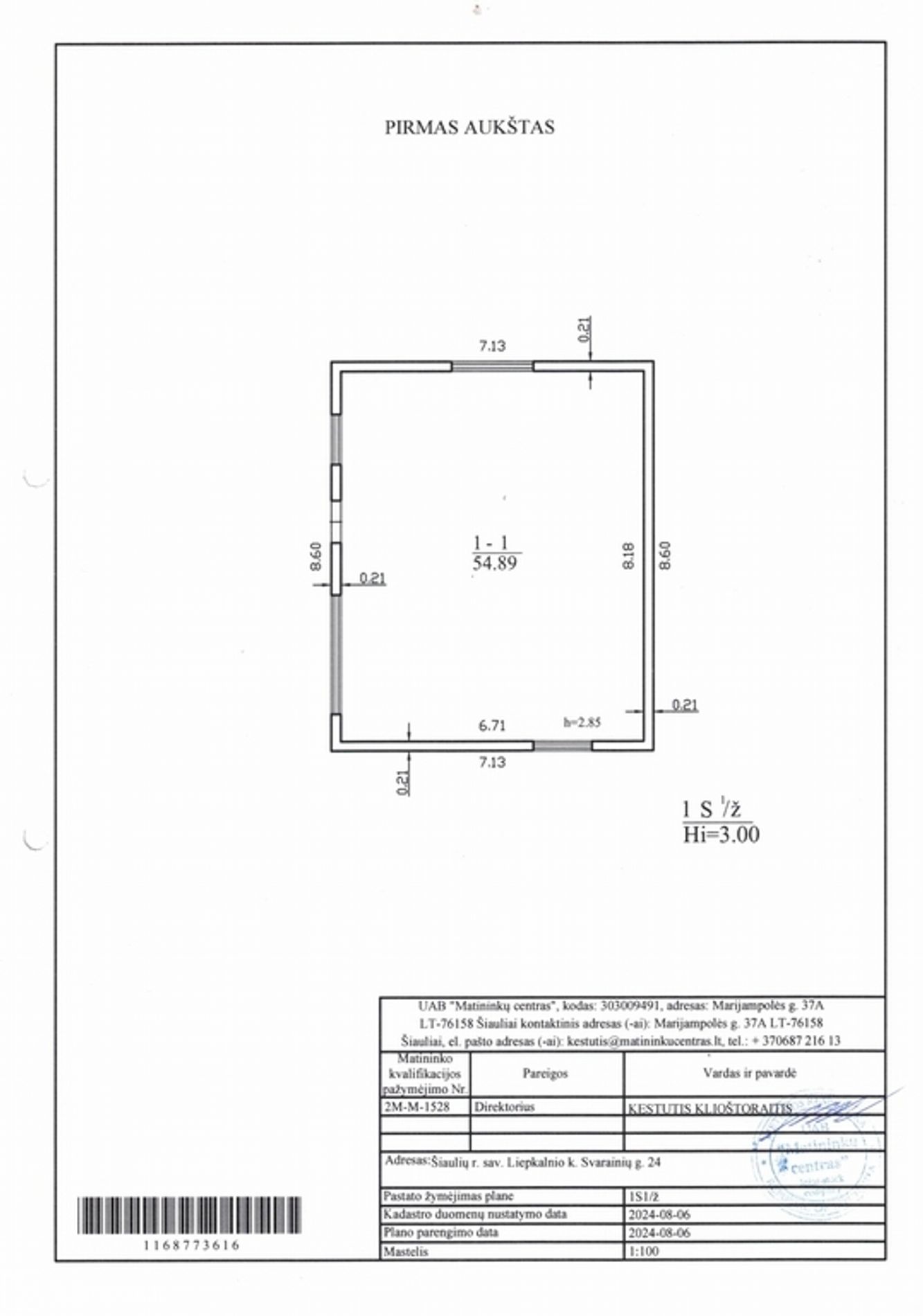
- Pirmo aukšto plotas 54,89 kv.m. ,viso gyvenamasis plotas 80 kv. m.;
- Pamatai juostiniai;
- Sienos medžio karkasas;
- Perdanga kalibruotos medienos;
- Lauko sienų apdaila - medinių dažytų dailylenčių ;
- Stogas čerpių;
- Viduje įvesti vandens, nuotekų, elektros įvadai,
- Grindys betonuotos;
- Vidinis išplanavimas pagal asmeninius poreikius;
- Kiemas paruoštas trinkelių klojimui;
INFRASTRUKTŪRA:
– Sodų bendrija pasiekama prižiūrimu ir valomu vieškeliu, šalia teka Ventos upė, įrengtos maudyklos. Važiuoja autobusas, vežantis vaikus į mokyklą,
– Daug dėmesio skiriama saugumui - įsteigta Saugi kaiminystė, įrengtos stebėjimo kameros, aktyvus bendrijos pirmininkas, draugiški kaimynai .
Dėl detalesnės informacijos ir apžiūrų laiko kreipkitės telefonu +370 652 89129
Sertifikuota LNTVA nekilnojamo turto brokerė
Ema Vismantė,
[email protected]
SB PAVENTYS , Svarainių g., Liepkalnio km., Kuršėnų kaimiškoji seniūnija, PARDUODAMI penki megėjų sodo žemės sklypai su nebaigtu statyti 54,89 kv. m.sodo namu, poilsio zonomis, erdve relaksui ir galimybe plėtoti žemės ūkį. Viso bendras sklypų plotas – 34,60 a
BENDRA SKLYPŲ INFORMACIJA :
SKLYPAS Svarainių g. 20, Liepkalnio km., 7,07 a žemės sklypas, suformuotas atliekant kadastrinius matavimus, sklype yra šulinys, pastatytas šiltnamis, dirbama žemė;
SKLYPAS Svarainių g. 22, Liepkalnio km., 7,08 a žemės sklypas, suformuotas atliekant preliminarius matavimus, sklype dalis ūkinių statinių;
SKLYPAS Svarainių g. 24, Liepkalnio km., 7,6 a žemės sklypas, suformuotas atliekant kadastrinius matavimus, sklype yra nebaigtas statyti karkasinis sodo namas, įregistruotas Registrų centre 74 proc. baigtumas; elektros įvadas su trifaze elektra ir 10 kw galia, šulinys;
SKLYPAS Svarainių g. 26, Liepkalnio km., 6,92 a žemės sklypas, suformuotas atliekant kadastrinius matavimus, dirbama žemė su braškių lysvėmis;
SKLYPAS Agrastų g. 13 Liepkalnio km.: 5,93 a žemės sklypas, suformuotas atliekant kadastrinius matavimus, brandus beržynas , poilsio zona, įrengta laistymo sistema, naudojanti vandenį iš netoliese esančios Ventos upės;
NAMO INFORMACIJA:
- Statybos pradžios metai – 2015 m.
- Pirmo aukšto plotas 54,89 kv.m. ,viso gyvenamasis plotas 80 kv. m.;
- Pamatai juostiniai;
- Sienos medžio karkasas;
- Perdanga kalibruotos medienos;
- Lauko sienų apdaila - medinių dažytų dailylenčių ;
- Stogas čerpių;
- Viduje įvesti vandens, nuotekų, elektros įvadai,
- Grindys betonuotos;
- Vidinis išplanavimas pagal asmeninius poreikius;
- Kiemas paruoštas trinkelių klojimui;
INFRASTRUKTŪRA:
– Sodų bendrija pasiekama prižiūrimu ir valomu vieškeliu, šalia teka Ventos upė, įrengtos maudyklos. Važiuoja autobusas, vežantis vaikus į mokyklą,
– Daug dėmesio skiriama saugumui - įsteigta Saugi kaiminystė, įrengtos stebėjimo kameros, aktyvus bendrijos pirmininkas, draugiški kaimynai .
Dėl detalesnės informacijos ir apžiūrų laiko kreipkitės telefonu +370 652 89129
Sertifikuota LNTVA nekilnojamo turto brokerė
Ema Vismantė,
[email protected]

