Įsiminti
Namas pardavimui, Raseinių r. sav., Raseiniai, Akacijų tak. id:1031224 4 kmb.
55 000 €
509 €/m²
REKLAMA
Įmoka
207 €/mėn
Paskola 46 750 €
Palūkanos 3.40%
Trukmė 30 metų
Įsiminė
0
Parodymai
Šiandien: 30
Viso: 6929
Peržiūros
Šiandien: 7
Viso: 1494
Objekto informacija
Aprašymas
PARDUODAMAS NEBAIGTAS STATYTI NAMAS RASEINIUOSE, STONŲ SODUOSE, AKACIJŲ TAKE SU 6,21 A. SKLYPU
............................................................
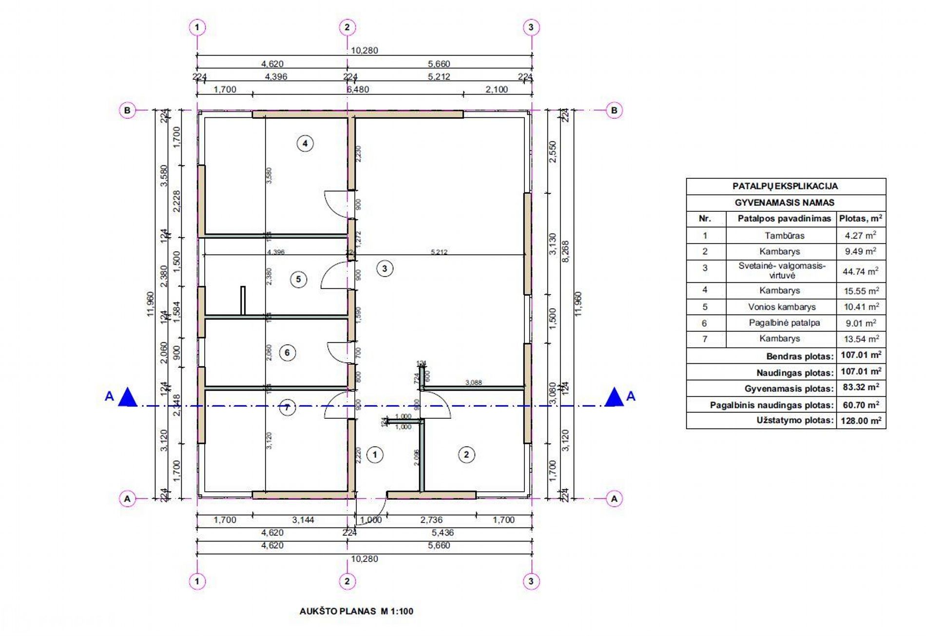
Pastato planavimo sprendimai.
Pastato paskirtis – gyvenamoji, kuriame numatytos šios patalpos: tambūras, trys
kambariai, svetainė – valgomasis-virtuvė, vonios kambarys, pagalbinė patalpa.
STATINIO KOSTRUKCIJA
Pamatai Gręžtiniai poliai
Sienos ir pertvaros SIP skydai
Perdanga SIP skydų
Stogas Stogo konstrukcija - medinė
INŽINERINIAI TINKLAI
Objektą šaltu vandeniu numatoma užmaitinti nuo miesto magistralinių tinklų.
Nuotekos numatoma nuleisti į miesto magistralinius tinklus.
Elektros įvadas į namą numatomas nuo prie sklypo ribos esančios atramos.
Namo patalpų šildymas numatomas – oras vanduo.
---------------------------------------------------
PAGRINDINĖ INFORMACIJA
• Adresas: Raseiniai Akacijų takas 25:
• Kaina -55 000 Eur
• Sklypo plotas: 6,21 a
• Baigtumo procentas – 43 proc.
• Bendras plotas – 108,71 kv.m.:
• Statybos pradžia 2024 m:
• Sienos – mediniai skydai su karkasu:
• Stogas – skarda.
---------------------------------------
IŠPLANAVIMAS
Tambūras 4.27 m²
Kambarys 9.49 m²
Svetainė – valgomasis – virtuvė 44.74 m²
Kambarys 15.55 m²
Vonios kambarys 10.41 m²
Pagalbinė patalpa 9.01 m²
Kambarys 13.54 m²
____________________________
Susidomėję kreipkitės +370 600 28208,
Capital NT brokeris Virgilijus Petkevičius
Parduodate, perkate ar nuomojate namą, butą, sklypą ar patalpas?
Kreipkitės į mane! Padėsiu greitai ir už geriausią kainą parduoti arba išnuomoti Jūsų nekilnojamą turtą bei kompetentingai atsakysiu į visus Jus dominančius nekilnojamojo turto klausimus.
Visus naujausius CAPITAL nekilnojamojo turto skelbimus rasite mūsų internetiniame puslapyje www.capital.lt. Kviečiame apsilankyti!

