Įsiminti
Namas pardavimui, Radviliškio r. sav., Radviliškis, Maironio g. id:1029552 8 kmb.
55 000 €
585 €/m²
REKLAMA
Įmoka
207 €/mėn

Paskola 46 750 €
Palūkanos 3.40%
Trukmė 30 metų
Įsiminė
0
Parodymai
Šiandien: 63
Viso: 304
Peržiūros
Šiandien: 13
Viso: 61
Objekto informacija
REKLAMA
REKLAMA
Aprašymas
PARDUODAMAS NAMAS RADVILIŠKYJE, MAIRONIO GATVĖJE
Parduodamas vieno aukšto gyvenamasis namas su neįrengta palėpe, patogioje ir ramioje Radviliškio miesto dalyje – Maironio gatvėje. Tai puiki vieta tiek gyvenimui, tiek komercinei veiklai – šalia miesto centras, parduotuvės, mokyklos, viešasis transportas, o viską pasieksite pėsčiomis.
BENDRA INFORMACIJA:
• Vieta: Radviliškis, Maironio g.
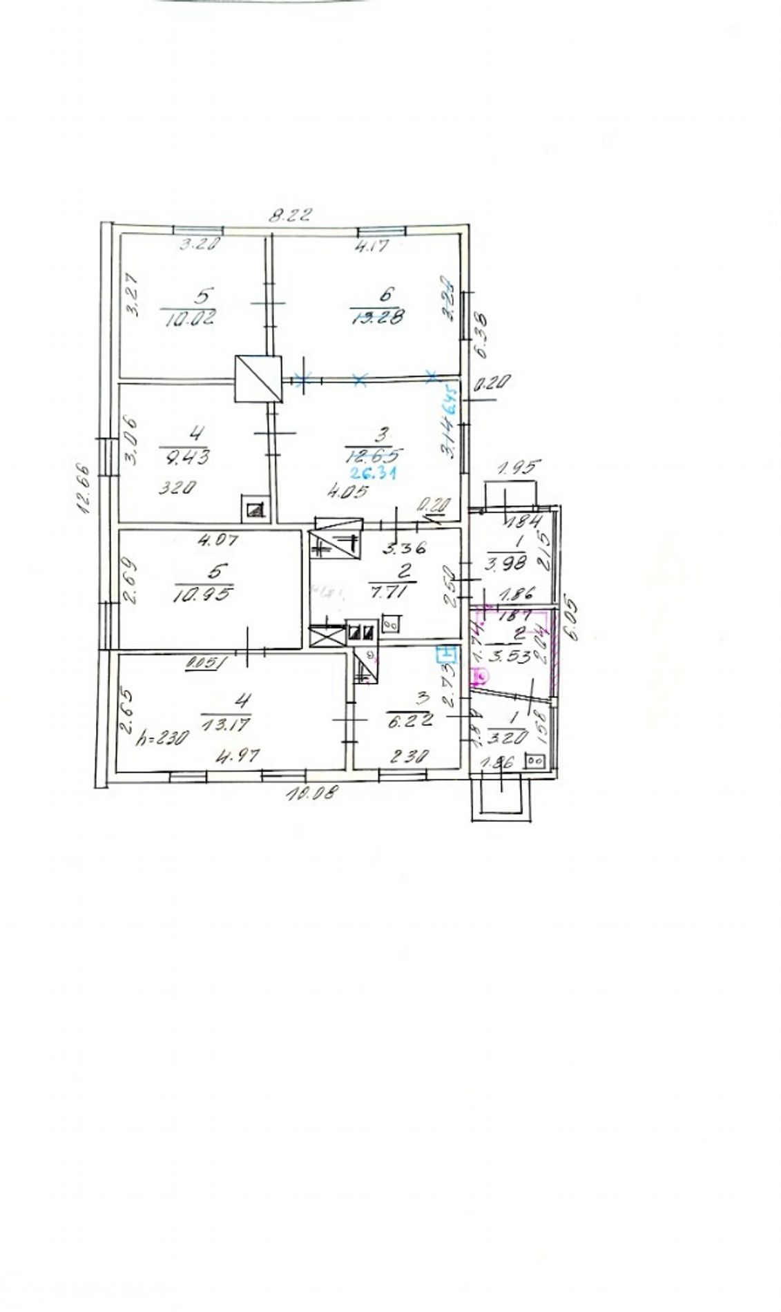
• Namo plotas: 94,52 m²
• Sklypo plotas: 7,9 a
• Statybos metai: 1900 m.
• Konstrukcija: medinis namas
• Būklė: reikalingas remontas
IŠPLANAVIMAS:
Namas padalintas į dvi atskiras gyvenamas dalis:
• Vienoje pusėje – 3 kambariai ir koridorius
• Kitoje pusėje – 5 kambariai ir koridorius
Bendras kambarių skaičius – 8, todėl tai puikus pasirinkimas didelei šeimai arba dviem šeimoms gyventi atskirai.
KOMUNIKACIJOS:
• Vanduo – vietinis
• Karštas vanduo – boileris
• Šildymas – centrinis
• Kanalizacija – vietinė
• 2 sanitariniai mazgai
PRIVALUMAI:
• Erdvi 7,9 aro teritorija, apsodinta vaismedžiais ir vaiskrūmiais
• Du mūriniai garažai
• Du rūsiai – patogūs sandėliavimui ar ūkiniams poreikiams
• Šulinys
• Sklypas apsodintas tujomis ir dekoratyviniais krūmais, suteikiančiais privatumo ir ramybės
VIETA IR APLINKA:
Rami, patogi vieta Radviliškio mieste – viskas pasiekiama pėsčiomis: parduotuvės, mokyklos, vaikų darželiai, gydymo įstaigos. Patogi susisiekimo vieta tiek miesto gyventojams, tiek planuojantiems plėtoti verslą.
Šis namas – puiki galimybė tiems, kurie nori susikurti jaukius namus pagal savo poreikius arba ieško vietos verslui patogioje miesto dalyje.
Visus naujausius CAPITAL nekilnojamojo turto skelbimus rasite mūsų internetiniame puslapyje www.capital.lt. Kviečiame apsilankyti!
Parduodamas vieno aukšto gyvenamasis namas su neįrengta palėpe, patogioje ir ramioje Radviliškio miesto dalyje – Maironio gatvėje. Tai puiki vieta tiek gyvenimui, tiek komercinei veiklai – šalia miesto centras, parduotuvės, mokyklos, viešasis transportas, o viską pasieksite pėsčiomis.
BENDRA INFORMACIJA:
• Vieta: Radviliškis, Maironio g.
• Namo plotas: 94,52 m²
• Sklypo plotas: 7,9 a
• Statybos metai: 1900 m.
• Konstrukcija: medinis namas
• Būklė: reikalingas remontas
IŠPLANAVIMAS:
Namas padalintas į dvi atskiras gyvenamas dalis:
• Vienoje pusėje – 3 kambariai ir koridorius
• Kitoje pusėje – 5 kambariai ir koridorius
Bendras kambarių skaičius – 8, todėl tai puikus pasirinkimas didelei šeimai arba dviem šeimoms gyventi atskirai.
KOMUNIKACIJOS:
• Vanduo – vietinis
• Karštas vanduo – boileris
• Šildymas – centrinis
• Kanalizacija – vietinė
• 2 sanitariniai mazgai
PRIVALUMAI:
• Erdvi 7,9 aro teritorija, apsodinta vaismedžiais ir vaiskrūmiais
• Du mūriniai garažai
• Du rūsiai – patogūs sandėliavimui ar ūkiniams poreikiams
• Šulinys
• Sklypas apsodintas tujomis ir dekoratyviniais krūmais, suteikiančiais privatumo ir ramybės
VIETA IR APLINKA:
Rami, patogi vieta Radviliškio mieste – viskas pasiekiama pėsčiomis: parduotuvės, mokyklos, vaikų darželiai, gydymo įstaigos. Patogi susisiekimo vieta tiek miesto gyventojams, tiek planuojantiems plėtoti verslą.
Šis namas – puiki galimybė tiems, kurie nori susikurti jaukius namus pagal savo poreikius arba ieško vietos verslui patogioje miesto dalyje.
Visus naujausius CAPITAL nekilnojamojo turto skelbimus rasite mūsų internetiniame puslapyje www.capital.lt. Kviečiame apsilankyti!
Nuotraukos



















Kontaktai
Capital-Šiauliai
Skelbėjas:
Capital-Šiauliai