Įsiminti
Namas pardavimui, Panevėžio r. sav., Nausodė, Antano Kiaunės g. id:1028054 4 kmb.
185 000 €
2 342 €/m²
REKLAMA
Įmoka
697 €/mėn

Paskola 157 250 €
Palūkanos 3.40%
Trukmė 30 metų
Įsiminė
0
Parodymai
Šiandien: 62
Viso: 298
Peržiūros
Šiandien: 17
Viso: 74
Objekto informacija
Papildoma įranga
REKLAMA
REKLAMA
Aprašymas
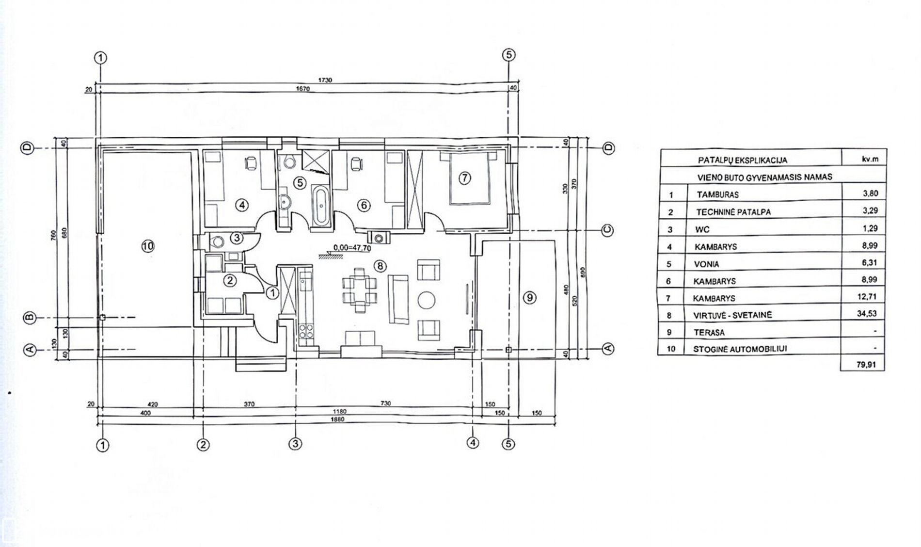
Parduodamas naujos statybos namas su tvenkinio dalimi ir dideliu 15,30 arų sklypu A. Kiaunės g. 22, Nausodės k., Panevėžio r. Naujai suprojektuotas vieno aukšto gyvenamasis namas yra A++ klasės. Funkcionaliai išplanuotos erdvės, virtuvė sujungta su svetaine, trys miegamieji kambariai, SAN mazgas, techninė patalpa, tambūras ir stoginė automobiliui. Namui priklauso tvenkinio dalis, todėl tai puiki vieta poilsiui ir gyvenimui ištisus metus.
BENDRA INFORMACIJA:
-Statybos metai – 2024 m;
-Namo plotas – 79,91 m²;
-Sklypo plotas – 15,30 a;
-Energinio naudingumo klasė – A++;
-Kaina – 185 000 EUR.
NAMO ĮRENGIMAS IR INŽINERIJA:
-Lubų aukštis – 3 metrai;
-Išvedžiota elektra ir vamzdynai;
-Numatyta šildymo sistema – oras–vanduo;
-Numatytas vietinis vandentiekis;
-Numatyta vieta židiniui su įdėklu;
-14 kW elektros įvadas – galimybė įsirengti saulės elektrinę.
IŠPLANAVIMAS:
-Tambūras;
-Virtuvė sujungta su svetaine;
-Trys miegamieji kambariai;
-Vonios kambarys ir WC;
-Techninė patalpa;
-Stoginė automobiliui.
Šiame skelbime naudojamos nuotraukos yra MB BŪSTO PROFAI intelektinė nuosavybė. Jos kopijavimas, savinimasis ar platinimas be leidimo - gali užtraukti atsakomybę. Esame pasiruošę bendradarbiauti, todėl dėl nepriekaištingo būsto fotografavimo - kviečiame susisiekti.
BENDRA INFORMACIJA:
-Statybos metai – 2024 m;
-Namo plotas – 79,91 m²;
-Sklypo plotas – 15,30 a;
-Energinio naudingumo klasė – A++;
-Kaina – 185 000 EUR.
NAMO ĮRENGIMAS IR INŽINERIJA:
-Lubų aukštis – 3 metrai;
-Išvedžiota elektra ir vamzdynai;
-Numatyta šildymo sistema – oras–vanduo;
-Numatytas vietinis vandentiekis;
-Numatyta vieta židiniui su įdėklu;
-14 kW elektros įvadas – galimybė įsirengti saulės elektrinę.
IŠPLANAVIMAS:
-Tambūras;
-Virtuvė sujungta su svetaine;
-Trys miegamieji kambariai;
-Vonios kambarys ir WC;
-Techninė patalpa;
-Stoginė automobiliui.
Šiame skelbime naudojamos nuotraukos yra MB BŪSTO PROFAI intelektinė nuosavybė. Jos kopijavimas, savinimasis ar platinimas be leidimo - gali užtraukti atsakomybę. Esame pasiruošę bendradarbiauti, todėl dėl nepriekaištingo būsto fotografavimo - kviečiame susisiekti.
Nuotraukos















