Įsiminti
Namas pardavimui, Palanga, Baltų g. id:995470 4 kmb.
225 000 €
2 446 €/m²
REKLAMA
Įmoka
848 €/mėn

Paskola 191 250 €
Palūkanos 3.40%
Trukmė 30 metų
Įsiminė
0
Parodymai
Šiandien: 12
Viso: 2243
Peržiūros
Šiandien: 1
Viso: 408
Objekto informacija
REKLAMA
REKLAMA
Aprašymas
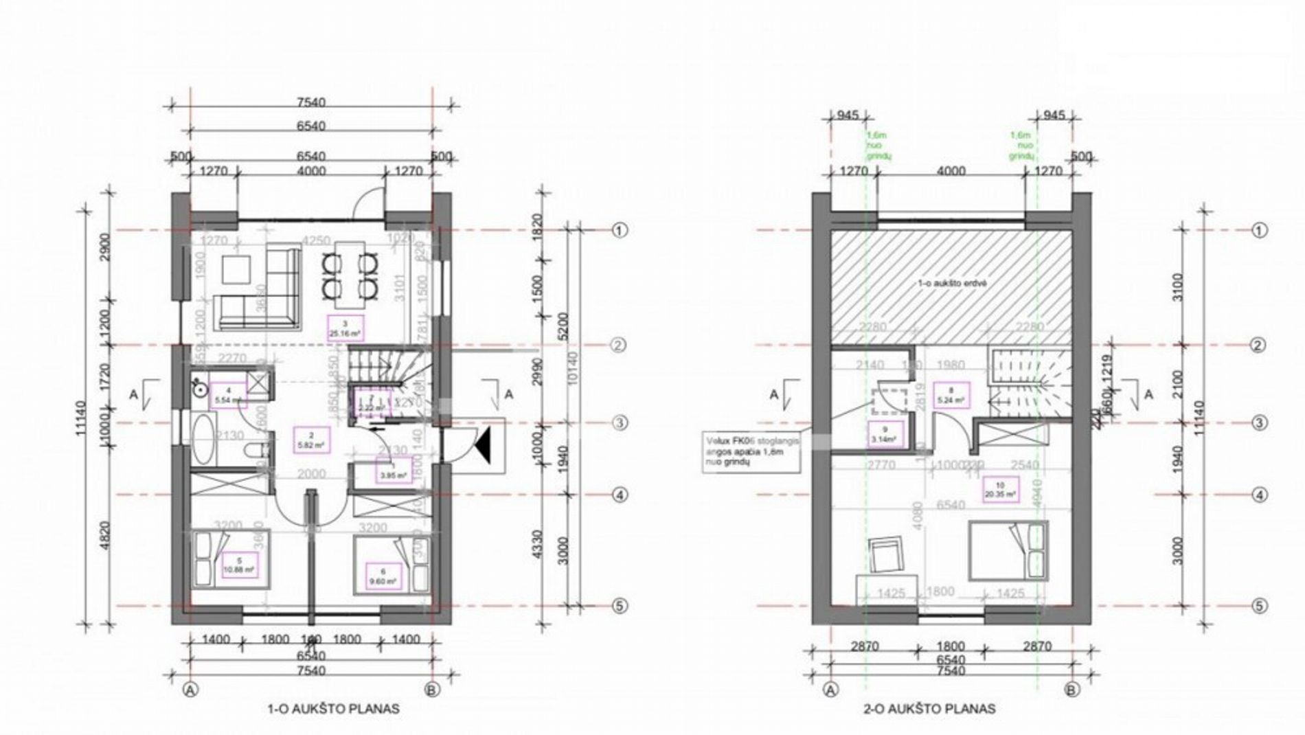
Parduodami A+ klasės individualūs gyvenamieji namai prie Baltijos jūros, Baltų g. Monciškėse. Iki jūros vos 900metrų
BENDRA INFORMACIJA
– A+ naudingumo klasė;
– namo plotas – 92kv. m;
- 4kambarių;
– aukštų skaičius – 2;
– namo tipas – mūrinis;
– šildymas – dujinis;
– dalinė apdaila.
– sutvarkytas gerbūvis, kiemas išklotas trinkelėmis.
VIETA IR INFRASTRUKTŪRA
Patraukli vieta poilsiui poilsiautojams, mėgstantiems aktyvų laisvalaikį – dviračių taku, nutiestu per pušyną nuo Palangos iki Klaipėdos, kuriuo dviračiu: per 10 min. pasieksite Palangos centrą, per 40 min. pasieksite Klaipėdą, Šventąją.
LAUKO:
– pamatai – gręžtiniai poliai, rostverkas apšiltintas 30 cm geoporas;
– perdangos – gelžbetoninis monolitinis perdengimas;
– sienos – 20 cm silikato blokelių mūras, apšiltintos 28 cm vatos, vidinės sienos 10 cm silikato blokeliai;
– stogas –dvišlaitis, apšiltintas 40cm vata, dengtas čerpėmis;
– vidinė - paslėpta lietaus nuvedimo nuo stogų sistema;
– fasado apdaila – čerpių / medienos danga;
– vidinės sienos – mūrinės, tinkuotos.
VIDAUS:
– išvedžiotas grindinis šildymas pirmame ir antrame aukšte;
– išvedžiota elektros instaliacija;
– išvedžiota santechnika;
– sienos tinkuotos;
– įrengti betoniniai laiptai;
– pirmo aukšto grindys išbetonuotos;
– rekuperacinė sistema (sumontuoti vamzdynai be rekuperacinės įrangos);
– kondicionavimo sistema (sumontuoti vamzdynai be kondicionavimo įrangos).
KITA INFORMACIJA
Aukštos lubos, pirmas aukštas 2miegamieji, vonios kambarys, svetainė su virtuve, antras aukštas, vienas didelis kambarys, vonios kambarys. Grindinis dujinis šildymas, terasa į vakarus. Galima įsigyti su paskola. Rekuperacinė sistema (sumontuoti vamzdynai be rekuperacinės įrangos),kondicionavimo sistema (sumontuoti vamzdynai be kondicionavimo įrangos).Visos miesto komunikacijos: vandentiekis, kanalizacija, elektra, dujos, vanduo: miesto.
Kontaktinis asmuo: Edita Markauskaitė, [email protected], tel. +370 67334381, mob. +370 67334381.
BENDRA INFORMACIJA
– A+ naudingumo klasė;
– namo plotas – 92kv. m;
- 4kambarių;
– aukštų skaičius – 2;
– namo tipas – mūrinis;
– šildymas – dujinis;
– dalinė apdaila.
– sutvarkytas gerbūvis, kiemas išklotas trinkelėmis.
VIETA IR INFRASTRUKTŪRA
Patraukli vieta poilsiui poilsiautojams, mėgstantiems aktyvų laisvalaikį – dviračių taku, nutiestu per pušyną nuo Palangos iki Klaipėdos, kuriuo dviračiu: per 10 min. pasieksite Palangos centrą, per 40 min. pasieksite Klaipėdą, Šventąją.
LAUKO:
– pamatai – gręžtiniai poliai, rostverkas apšiltintas 30 cm geoporas;
– perdangos – gelžbetoninis monolitinis perdengimas;
– sienos – 20 cm silikato blokelių mūras, apšiltintos 28 cm vatos, vidinės sienos 10 cm silikato blokeliai;
– stogas –dvišlaitis, apšiltintas 40cm vata, dengtas čerpėmis;
– vidinė - paslėpta lietaus nuvedimo nuo stogų sistema;
– fasado apdaila – čerpių / medienos danga;
– vidinės sienos – mūrinės, tinkuotos.
VIDAUS:
– išvedžiotas grindinis šildymas pirmame ir antrame aukšte;
– išvedžiota elektros instaliacija;
– išvedžiota santechnika;
– sienos tinkuotos;
– įrengti betoniniai laiptai;
– pirmo aukšto grindys išbetonuotos;
– rekuperacinė sistema (sumontuoti vamzdynai be rekuperacinės įrangos);
– kondicionavimo sistema (sumontuoti vamzdynai be kondicionavimo įrangos).
KITA INFORMACIJA
Aukštos lubos, pirmas aukštas 2miegamieji, vonios kambarys, svetainė su virtuve, antras aukštas, vienas didelis kambarys, vonios kambarys. Grindinis dujinis šildymas, terasa į vakarus. Galima įsigyti su paskola. Rekuperacinė sistema (sumontuoti vamzdynai be rekuperacinės įrangos),kondicionavimo sistema (sumontuoti vamzdynai be kondicionavimo įrangos).Visos miesto komunikacijos: vandentiekis, kanalizacija, elektra, dujos, vanduo: miesto.
Kontaktinis asmuo: Edita Markauskaitė, [email protected], tel. +370 67334381, mob. +370 67334381.
Nuotraukos













