Įsiminti
Namas pardavimui, Klaipėdos r. sav., Klemiškė II, Dvarininkų g. id:1002777 4 kmb.
195 000 €
1 822 €/m²
REKLAMA
Įmoka
735 €/mėn
Paskola 165 750 €
Palūkanos 3.40%
Trukmė 30 metų
Įsiminė
0
Parodymai
Šiandien: 28
Viso: 6909
Peržiūros
Šiandien: 10
Viso: 932
Objekto informacija
Aprašymas
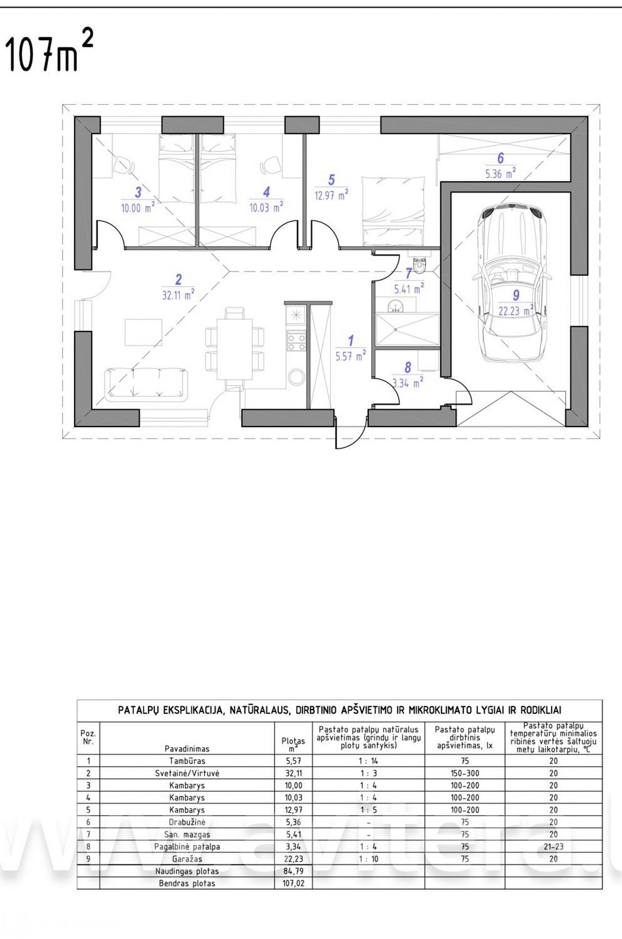
Klaipėdos raj. Klemiškės 2 kaime parduodamas naujos statybos 107 kvadratinių metrų su garažu namas su daline apdaila toliau vystomame Dvarininkų kvartale, Miliūnų gatvėje. Name svetainė su virtuve, trys miegamieji kambariai, sanmazgas, drabužinė, katilinė. Namas su klinkerio apdaila. Pilnai įrengtas kainuotų 235000 eurų. Gatvė asfaltuota, įrengtas apšvietimas. Skelbimo nr 9905
Kontaktinis asmuo: Kazys, [email protected], tel. +370 670 36056, mob. +370 46 411673.
Kontaktinis asmuo: Kazys, [email protected], tel. +370 670 36056, mob. +370 46 411673.

