Įsiminti
Kotedžas pardavimui, Klaipėda, Tauralaukis, Žaibo g. id:1031112 3 kmb.
210 000 €
2 333 €/m²
REKLAMA
Įmoka
792 €/mėn
Paskola 178 500 €
Palūkanos 3.40%
Trukmė 30 metų
Įsiminė
0
Parodymai
Šiandien: 110
Viso: 110
Peržiūros
Šiandien: 12
Viso: 12
Objekto informacija
REKLAMA
REKLAMA
Aprašymas
Parduodami namai naujajame kvartale.
„VAKARŲ ŽEMĖ“ - https://vakaruzeme.lt/
Klaipėdos šiaurinėje miesto dalyje, Tauralaukyje, parduodami išskirtinio ir šiuolaikiško dizaino kotedžo tipo namai, kurie skirti dviem šeimoms.
Puiki galimybė tapti modernių ir patogių namų savininku naujame jaukiame kvartale!
Siūlome įvairaus išplanavimų ir dydžių namus, pastatytus naudojant kokybiškas medžiagas bei pažangias statybos technologijas.
Statomi dviejų architektūrinių tipų pastatai: nuožulnaus ir horizontalaus stogo.
Visuose stoguose įrengta šildymo sistema, kad žiemą nesusidarytų ledas ir sniegas.
Kiekvienas kotedžas turi savo atskirą galinį kiemą, žalią veją, stovėjimo vietą dviem automobiliams.
Tiek pirmame, tiek antrame aukšte yra įrengtos erdvios terasos, leidžiančios mėgautis grynu oru ir nuostabiais vaizdais.
Būsto plotas – 90 m² (galima rinktis ir iš 70 m² ar 110 m² )
Sklypo plotas, priklausantis vienam kotedžui ~ 3 a.
Energinio naudingumo klasė A+
Infrastruktūra:
Kvartale jau įrengtas gatvės apšvietimas, bus įrengti asfaltuoti keliai ir pėsčiųjų takai, kurie užtikrins komfortą ir saugumą bet kuriuo paros metu.
Visos miesto komunikacijos:
- vanduo
- nuotekos
- elektra
- dujos
- internetas
Į r e n g i m a s:
Pilna išorės pastato apdaila.
Įrengtos terasos.
Trinkelėmis grįstos aikštelės prie namo.
Pastato viduje:
- ištinkuotos sienos,
- lauko įėjimo durys aliumininio profilio, su veidrodiniu stiklu iš lauko pusės.
- didėli, 6 kamerų langai
- vidinės pertvaros - mūrinės
- stogo šildymo technologija nuo apledėjimo
K o m u n i k a c i j o s:
- elektros instaliacija (7 kWh)
- rekuperacijos vamzdžiai
- internetas
- priešgaisrines signalizacijos laidai
- apsaugos signalizacijos laidai
Dalinė apdaila (baigtumas nuo 80 %).
Pastato k o n s t r u k t y v a s:
Pamatai
Monolitiniai gręžtiniai pamatai, armuoti erdviniu armatūriniu strypynu
monolitinis juostinis 200(460)x500mm rostverkas,
Rostverkas iš lauko, apšiltinamas EPS150 polistirolu, apačios ir vidaus apšiltinamas EPS100 polistirolu.
Sienos
180mm pločio silikatinių blokelių mūras (silikatiniai blokeliai- 250x180x238mm)
surenkamos ir g/b monolitinės sąramos, surenkamos perdangų plokštės, metalinės kolonos
Sienų apšiltinimas - polistirolas EPS 70N (250 mm)
Stogas
Dvišlaitis stogas: keraminių čerpių danga;
Apšiltinimo sluoksnis – gegnė 50x250, kas 600mm, tarpuose mineralinė vata Paroc 250mm, uždarų porų poliuretano FF‐PIR plokštė 70mm
Vidaus apdaila (g/k plokštė) ant pl. karkaso konstrukcijos
Horizontalus stogas – hidroizoliacija, šilumos izoliacija Paroc ROB60, 30 mm, EPS80, polistirolas EPS80 250 mm, izoliacinis sluoksnis g/b perdanga 200 mm
Laiptai
Betonas monolitinis
Langai
Plastikiniai, 6 kamerų “Salamander BluEvoiution“
Terasa
Monolitiniai gręžtiniai pamatai, rostverkas
Išpiltas betono sluoksnis 60 mm (po apačia smėlis), terasos lentos
II aukšto terasa
sustiprintas balkonas, hidroizoliacija., mineralinė vata, betonas
S k l y p a s
Išlygintas žemės paviršius
Takai, pagrindiniai įėjimai j pastatus, motorizuoto transporto privažiavimai-betono trinkelės(asfaltas).
Teritorijos apšvietimas: įrengtas gatvės apšvietimas
I š p l a n a v i m a s:
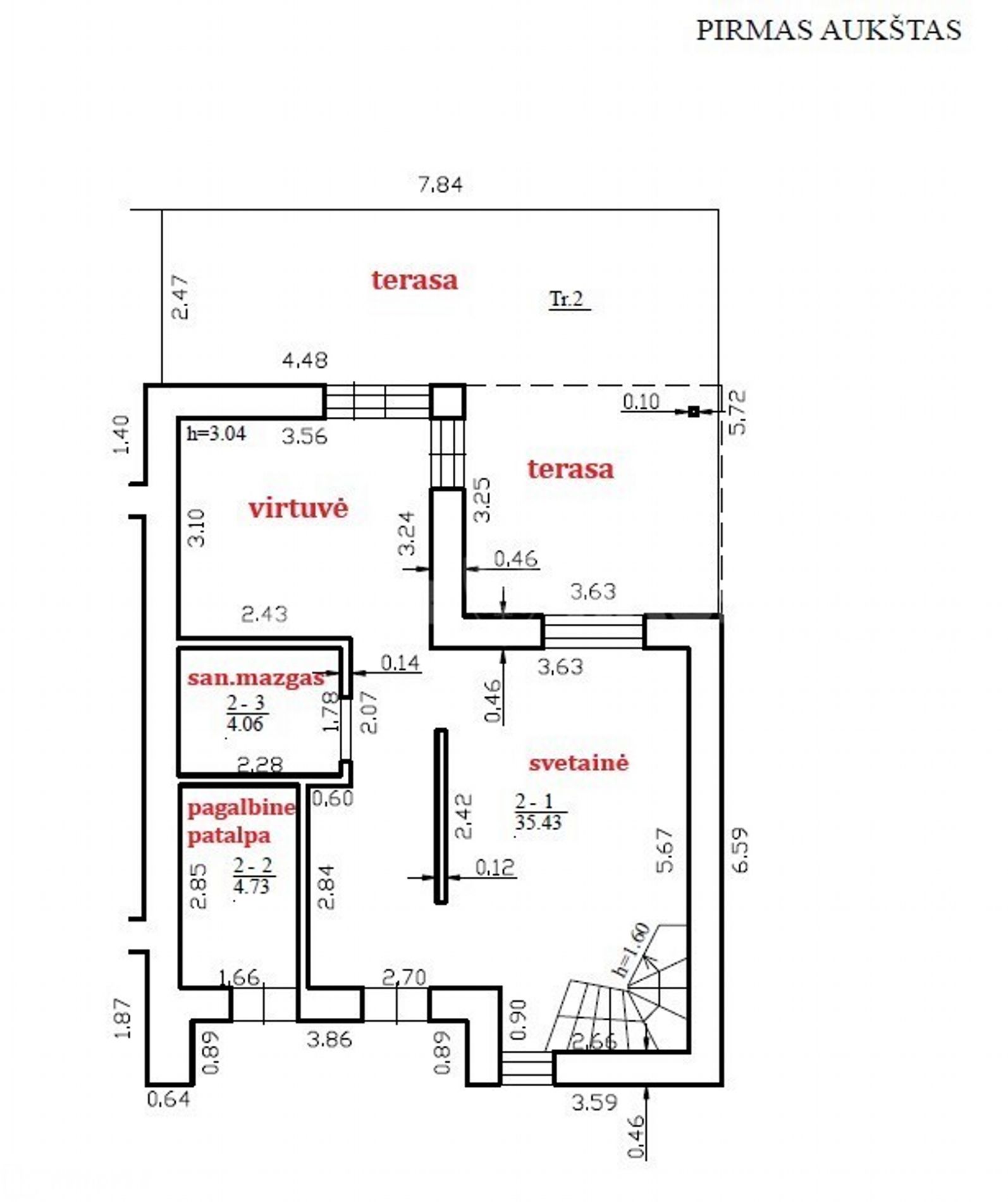
- Pirmas aukštas –
Svetainė su virtuvės zona, išėjimas į lauko terasą
Sanitarinis mazgas
Sandeliukas.
- Antras aukštas –
Miegamasis kambarys Nr.1 su išėjimu į atvirą antro aukšto terasą
Miegamasis kambarys Nr.2
Sanitarinis mazgas.
90 m², 110 m² būstas
- Pirmas aukštas –
Svetainė su virtuvės zona, išėjimas į lauko terasą
Sanitarinis mazgas
- Antras aukštas –
Miegamasis kambarys Nr.1 su išėjimu į atvirą antro aukšto terasą
Miegamasis kambarys Nr.2
Miegamasis kambarys Nr.3
Sanitarinis mazgas
Numatyta įrengti dviračių ir pėsčiųjų takus pagal prestižinių sklypų ir miško sankirtos liniją.
Sutvarkyti bendro naudojimo ir susisiekimo takus, kelius, kelkraščius.
P r i v a l u m a i:
Kvartalas yra prestižinėje, šiaurinėje miesto dalyje, garsėjančioje ekologiškumu ir aukštu gyvenimo lygiu.
Netoliese yra nedidelis vaizdingas upelis.
Asfaltuotas privažiavimas.
Solidi kaimynystė.
Gatvės apšvietimas.
Tiek pirmame, tiek antrame aukšte įrengtos erdvios terasos, leidžiančios mėgautis grynu oru ir nuostabiais vaizdais.
Patogus susisiekimas su visomis miesto dalimis ir priemiesčiais.
* Tapkite savo svajonių namo savininku naujame prestižiniame kvartale! *
Registruokitės norėdami apžiūrėti objektus jau šiandien!
Papildomos paslaugos:
• Pagalba gaunant būsto paskolą.
• Konsultacijos apželdinimo ir projektavimo klausimais.
• Teisinis sandorio palaikymas.
-- Objekto nr. Ober-Haus tinklapyje www.ober-haus.lt/OH493169
Profesionali pagalba parduodant, nuomojant ir įsigyjant nekilnojamąjį turtą:
- Sandoriui reikalingų dokumentų analizė prieš pardavimą;
- Preliminariųjų, rezervavimo sutarčių, priėmimo-perdavimo aktų ir kitų sutarties priedų bei dokumentų parengimas apsaugant jūsų interesus;
- Efektyvi ir itin platų pirkėjų ratą apimanti rinkodara ir marketingo priemonės, pirkėjų srauto monitoringas;
- Jūsų interesų atstovavimas derybose, sutarčių derinime;
- Konsultavimas mokestiniais, juridiniais klausimais.
„VAKARŲ ŽEMĖ“ - https://vakaruzeme.lt/
Klaipėdos šiaurinėje miesto dalyje, Tauralaukyje, parduodami išskirtinio ir šiuolaikiško dizaino kotedžo tipo namai, kurie skirti dviem šeimoms.
Puiki galimybė tapti modernių ir patogių namų savininku naujame jaukiame kvartale!
Siūlome įvairaus išplanavimų ir dydžių namus, pastatytus naudojant kokybiškas medžiagas bei pažangias statybos technologijas.
Statomi dviejų architektūrinių tipų pastatai: nuožulnaus ir horizontalaus stogo.
Visuose stoguose įrengta šildymo sistema, kad žiemą nesusidarytų ledas ir sniegas.
Kiekvienas kotedžas turi savo atskirą galinį kiemą, žalią veją, stovėjimo vietą dviem automobiliams.
Tiek pirmame, tiek antrame aukšte yra įrengtos erdvios terasos, leidžiančios mėgautis grynu oru ir nuostabiais vaizdais.
Būsto plotas – 90 m² (galima rinktis ir iš 70 m² ar 110 m² )
Sklypo plotas, priklausantis vienam kotedžui ~ 3 a.
Energinio naudingumo klasė A+
Infrastruktūra:
Kvartale jau įrengtas gatvės apšvietimas, bus įrengti asfaltuoti keliai ir pėsčiųjų takai, kurie užtikrins komfortą ir saugumą bet kuriuo paros metu.
Visos miesto komunikacijos:
- vanduo
- nuotekos
- elektra
- dujos
- internetas
Į r e n g i m a s:
Pilna išorės pastato apdaila.
Įrengtos terasos.
Trinkelėmis grįstos aikštelės prie namo.
Pastato viduje:
- ištinkuotos sienos,
- lauko įėjimo durys aliumininio profilio, su veidrodiniu stiklu iš lauko pusės.
- didėli, 6 kamerų langai
- vidinės pertvaros - mūrinės
- stogo šildymo technologija nuo apledėjimo
K o m u n i k a c i j o s:
- elektros instaliacija (7 kWh)
- rekuperacijos vamzdžiai
- internetas
- priešgaisrines signalizacijos laidai
- apsaugos signalizacijos laidai
Dalinė apdaila (baigtumas nuo 80 %).
Pastato k o n s t r u k t y v a s:
Pamatai
Monolitiniai gręžtiniai pamatai, armuoti erdviniu armatūriniu strypynu
monolitinis juostinis 200(460)x500mm rostverkas,
Rostverkas iš lauko, apšiltinamas EPS150 polistirolu, apačios ir vidaus apšiltinamas EPS100 polistirolu.
Sienos
180mm pločio silikatinių blokelių mūras (silikatiniai blokeliai- 250x180x238mm)
surenkamos ir g/b monolitinės sąramos, surenkamos perdangų plokštės, metalinės kolonos
Sienų apšiltinimas - polistirolas EPS 70N (250 mm)
Stogas
Dvišlaitis stogas: keraminių čerpių danga;
Apšiltinimo sluoksnis – gegnė 50x250, kas 600mm, tarpuose mineralinė vata Paroc 250mm, uždarų porų poliuretano FF‐PIR plokštė 70mm
Vidaus apdaila (g/k plokštė) ant pl. karkaso konstrukcijos
Horizontalus stogas – hidroizoliacija, šilumos izoliacija Paroc ROB60, 30 mm, EPS80, polistirolas EPS80 250 mm, izoliacinis sluoksnis g/b perdanga 200 mm
Laiptai
Betonas monolitinis
Langai
Plastikiniai, 6 kamerų “Salamander BluEvoiution“
Terasa
Monolitiniai gręžtiniai pamatai, rostverkas
Išpiltas betono sluoksnis 60 mm (po apačia smėlis), terasos lentos
II aukšto terasa
sustiprintas balkonas, hidroizoliacija., mineralinė vata, betonas
S k l y p a s
Išlygintas žemės paviršius
Takai, pagrindiniai įėjimai j pastatus, motorizuoto transporto privažiavimai-betono trinkelės(asfaltas).
Teritorijos apšvietimas: įrengtas gatvės apšvietimas
I š p l a n a v i m a s:
- Pirmas aukštas –
Svetainė su virtuvės zona, išėjimas į lauko terasą
Sanitarinis mazgas
Sandeliukas.
- Antras aukštas –
Miegamasis kambarys Nr.1 su išėjimu į atvirą antro aukšto terasą
Miegamasis kambarys Nr.2
Sanitarinis mazgas.
90 m², 110 m² būstas
- Pirmas aukštas –
Svetainė su virtuvės zona, išėjimas į lauko terasą
Sanitarinis mazgas
- Antras aukštas –
Miegamasis kambarys Nr.1 su išėjimu į atvirą antro aukšto terasą
Miegamasis kambarys Nr.2
Miegamasis kambarys Nr.3
Sanitarinis mazgas
Numatyta įrengti dviračių ir pėsčiųjų takus pagal prestižinių sklypų ir miško sankirtos liniją.
Sutvarkyti bendro naudojimo ir susisiekimo takus, kelius, kelkraščius.
P r i v a l u m a i:
Kvartalas yra prestižinėje, šiaurinėje miesto dalyje, garsėjančioje ekologiškumu ir aukštu gyvenimo lygiu.
Netoliese yra nedidelis vaizdingas upelis.
Asfaltuotas privažiavimas.
Solidi kaimynystė.
Gatvės apšvietimas.
Tiek pirmame, tiek antrame aukšte įrengtos erdvios terasos, leidžiančios mėgautis grynu oru ir nuostabiais vaizdais.
Patogus susisiekimas su visomis miesto dalimis ir priemiesčiais.
* Tapkite savo svajonių namo savininku naujame prestižiniame kvartale! *
Registruokitės norėdami apžiūrėti objektus jau šiandien!
Papildomos paslaugos:
• Pagalba gaunant būsto paskolą.
• Konsultacijos apželdinimo ir projektavimo klausimais.
• Teisinis sandorio palaikymas.
-- Objekto nr. Ober-Haus tinklapyje www.ober-haus.lt/OH493169
Profesionali pagalba parduodant, nuomojant ir įsigyjant nekilnojamąjį turtą:
- Sandoriui reikalingų dokumentų analizė prieš pardavimą;
- Preliminariųjų, rezervavimo sutarčių, priėmimo-perdavimo aktų ir kitų sutarties priedų bei dokumentų parengimas apsaugant jūsų interesus;
- Efektyvi ir itin platų pirkėjų ratą apimanti rinkodara ir marketingo priemonės, pirkėjų srauto monitoringas;
- Jūsų interesų atstovavimas derybose, sutarčių derinime;
- Konsultavimas mokestiniais, juridiniais klausimais.
Nuotraukos
