Įsiminti
Namas pardavimui, Klaipėda, Giruliai, Turistų g. id:1005225 10 kmb.
630 000 €
2 180 €/m²
REKLAMA
Įmoka
2 375 €/mėn
Paskola 535 500 €
Palūkanos 3.40%
Trukmė 30 metų
Įsiminė
0
Parodymai
Šiandien: 30
Viso: 9414
Peržiūros
Šiandien: 25
Viso: 2081
Objekto informacija
Aprašymas
PARDUODAMAS IŠSKIRTINIS OBJEKTAS PRESTIŽINIAME KVARTALE
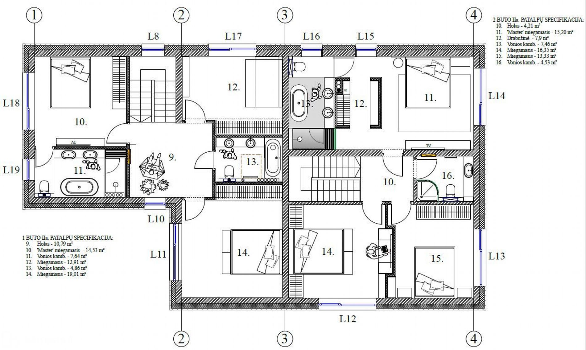
NAMAS YRA SUPROJEKTUOTAS IR PRITAIKYTAS DVIEMS ŠEIMOMS. TECHNIŠKAI YRA GALIMYBĖ APJUNGTI IR NAMĄ PRITAIKYTI VIENAI ŠEIMAI.
Šis objektas gali būti ne tik jūsų nauji namai, bet ir investicinė galimybė!
================================================
PRIVALUMAI:
• Prieš Jūsų akis namas, vertinantiems kokybišką ir išskirtinį gyvenimą būdą. Namas įsiterpęs pušyne, vos keli šimtai metrų nuo pajūrio kopų;
• Namas statytas naudojant tik ilgaamžiškas kokybiškas medžiagas;
• Namo fasadui panaudotos autentiškos senovinės plytos;
• Modernūs mediniai langai ("Megamas"), nestandartinės 2,8 m. aukščio įėjimo durys, titano-cinko palangės;
• Fasadui Išskirtinumo suteikia rūdinto plieno (Corten) lakštų dekoras;
• Namuose sumontuoti panoraminiai dideli langai, pro kuriuos ištisus metus stebėsite besikeičiančius pušyno peizažus. Namas suprojektuotas taip, jog ištisą dieną pro langus patektų daug dienos šviesos ir saulės spindulių - orientuotas pietine-vakarine kryptimis.
• Vonios kambariai suprojektuoti abiejuose aukštuose.
• Čia gyvendami galėsite mėgautis ramybe privačiame kieme;
• Įsikurkite tarsi nuosavam rojaus kampelyje, tačiau miesto privalumus pasiekite akimirksniu: gyvenvietėje įsikūręs vaikų darželis, prekybos centras, kursuoja viešasis transportas, o Klaipėdos miesto centrą pasiekite vos per 10-15 minučių.
================================================
BENDRA INFORMACIJA:
• Adresas - Turistų gatvė, Klaipėda;
• Sklypo plotas - 5,96 arai;
• Namo statybos metai - 2025 m.;
• Aukštai - 2;
• Bendras plotas - 289,03 kv.m. (pagal projektą, 1 buto plotas 143,51 kv. m., 2 buto - 145,52 kv. m.;
================================================
KOMUNIKACIJOS:
• Elektra;
• Vandentiekis / nuotekos - miesto.
• Dujos - yra;
Čia kaip mat atrasite balansą tarp kasdienių rūpesčių ir kokybiško poilsio bei savęs atradimo!
Turite klausimų?
Mielai į juos visus atsakysiu telefonu arba apžiūros metu Jūsų naujuose svajonių namuose
Visus naujausius CAPITAL nekilnojamojo turto skelbimus rasite mūsų internetiniame puslapyje www.capital.lt. Kviečiame apsilankyti!
NAMAS YRA SUPROJEKTUOTAS IR PRITAIKYTAS DVIEMS ŠEIMOMS. TECHNIŠKAI YRA GALIMYBĖ APJUNGTI IR NAMĄ PRITAIKYTI VIENAI ŠEIMAI.
Šis objektas gali būti ne tik jūsų nauji namai, bet ir investicinė galimybė!
================================================
PRIVALUMAI:
• Prieš Jūsų akis namas, vertinantiems kokybišką ir išskirtinį gyvenimą būdą. Namas įsiterpęs pušyne, vos keli šimtai metrų nuo pajūrio kopų;
• Namas statytas naudojant tik ilgaamžiškas kokybiškas medžiagas;
• Namo fasadui panaudotos autentiškos senovinės plytos;
• Modernūs mediniai langai ("Megamas"), nestandartinės 2,8 m. aukščio įėjimo durys, titano-cinko palangės;
• Fasadui Išskirtinumo suteikia rūdinto plieno (Corten) lakštų dekoras;
• Namuose sumontuoti panoraminiai dideli langai, pro kuriuos ištisus metus stebėsite besikeičiančius pušyno peizažus. Namas suprojektuotas taip, jog ištisą dieną pro langus patektų daug dienos šviesos ir saulės spindulių - orientuotas pietine-vakarine kryptimis.
• Vonios kambariai suprojektuoti abiejuose aukštuose.
• Čia gyvendami galėsite mėgautis ramybe privačiame kieme;
• Įsikurkite tarsi nuosavam rojaus kampelyje, tačiau miesto privalumus pasiekite akimirksniu: gyvenvietėje įsikūręs vaikų darželis, prekybos centras, kursuoja viešasis transportas, o Klaipėdos miesto centrą pasiekite vos per 10-15 minučių.
================================================
BENDRA INFORMACIJA:
• Adresas - Turistų gatvė, Klaipėda;
• Sklypo plotas - 5,96 arai;
• Namo statybos metai - 2025 m.;
• Aukštai - 2;
• Bendras plotas - 289,03 kv.m. (pagal projektą, 1 buto plotas 143,51 kv. m., 2 buto - 145,52 kv. m.;
================================================
KOMUNIKACIJOS:
• Elektra;
• Vandentiekis / nuotekos - miesto.
• Dujos - yra;
Čia kaip mat atrasite balansą tarp kasdienių rūpesčių ir kokybiško poilsio bei savęs atradimo!
Turite klausimų?
Mielai į juos visus atsakysiu telefonu arba apžiūros metu Jūsų naujuose svajonių namuose
Visus naujausius CAPITAL nekilnojamojo turto skelbimus rasite mūsų internetiniame puslapyje www.capital.lt. Kviečiame apsilankyti!

