Įsiminti
Kotedžas pardavimui, Kauno r. sav., Vaišvydava, Liepų al. id:1031553 4 kmb.
165 000 €
1 410 €/m²
REKLAMA
Įmoka
622 €/mėn
Paskola 140 250 €
Palūkanos 3.40%
Trukmė 30 metų
Įsiminė
0
Parodymai
Šiandien: 18
Viso: 4058
Peržiūros
Šiandien: 3
Viso: 351
Objekto informacija
Aprašymas
IEŠKOTE MODERNIŲ IR JAUKIŲ NAMŲ ŠALIA KAUNO?
Šis naujai pastatytas A++ energinės klasės sublokuotas namas Vaišvydavoje – puikus pasirinkimas tiems, kurie nori suderinti ramybę, gamtą ir patogų susisiekimą su miestu.
Namas įsikūręs uždaroje, saugioje teritorijoje, apsuptoje žalumos ir miško takų. Čia kiekviena detalė apgalvota šeimos patogumui – nuo erdvaus išplanavimo iki galimybės įsirengti jaukų privatų kiemelį.
PAGRINDINĖ INFORMACIJA
-Statybos metai: 2025 m., A++ energinė klasė
-Dalinė apdaila (galimas ir pilnas 100 % įrengimas)
-Šildymas: oras–vanduo
-Išvedžiotas grindinis šildymas, išbetonuotos grindys, sumontuoti kolektoriai, įrengta elektros instaliacija bei vėdinimo sistemos ortakiai
-Miesto vandentiekis ir kanalizacija
-Patalpų aukštis: 2,8–3 m
-Sutvarkyta aplinka – suklotos trinkelės, pasėta veja
-Galimybė įsirengti saulės elektrinę
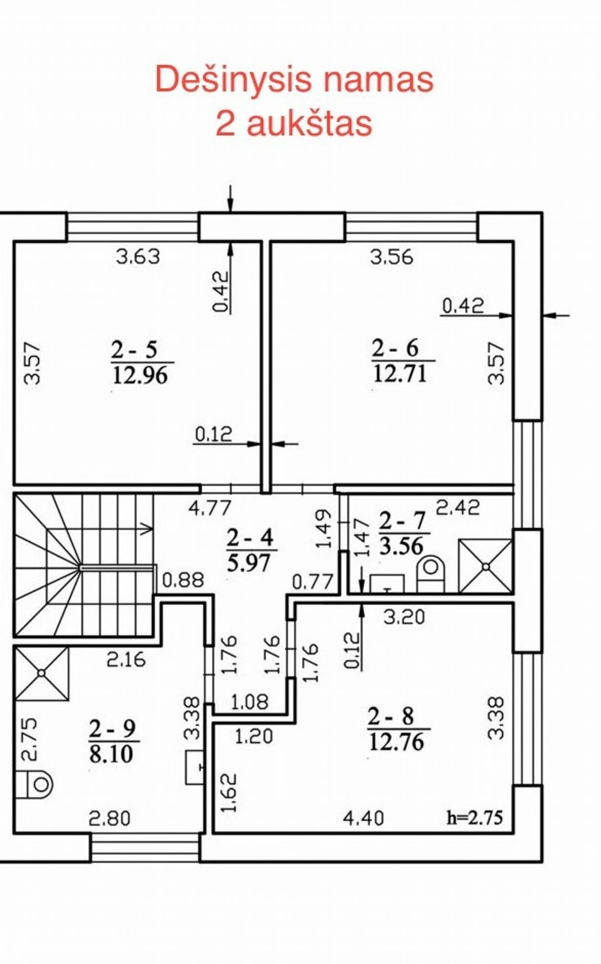
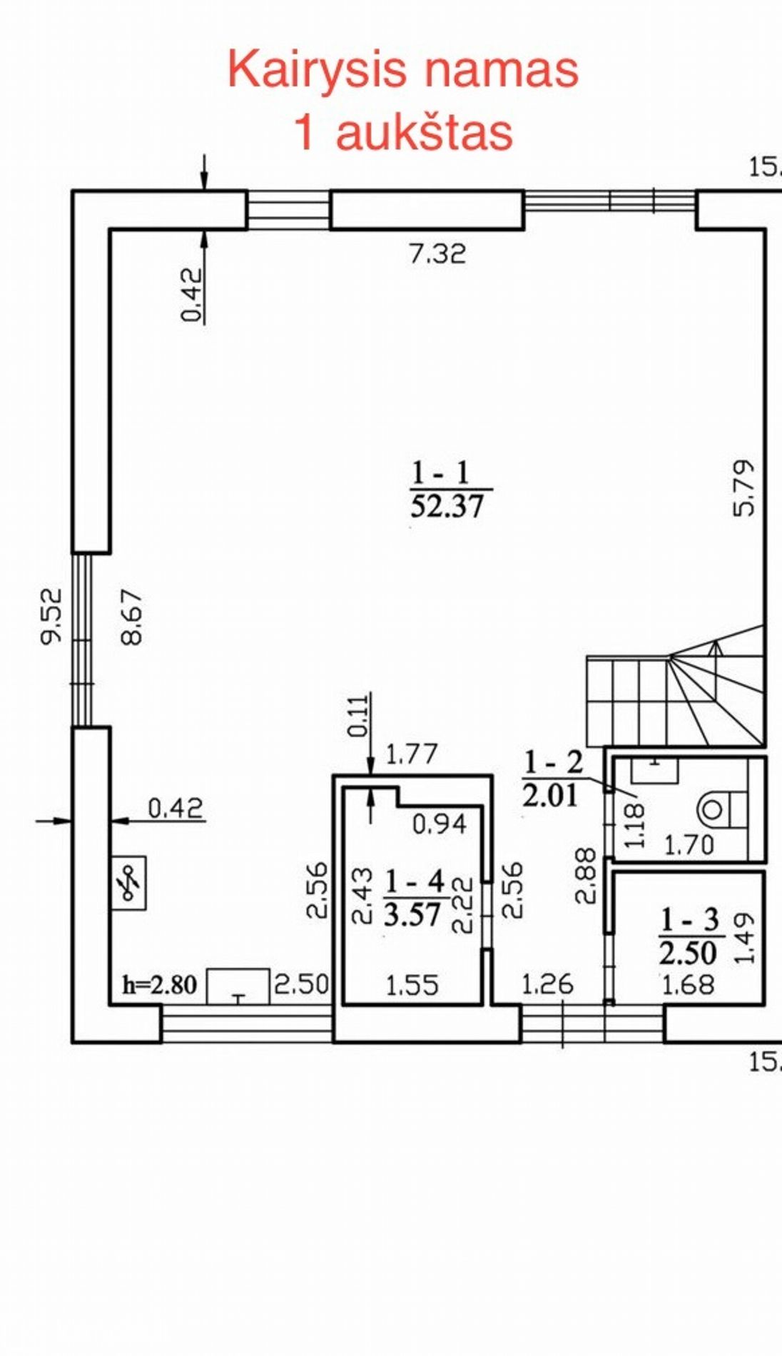
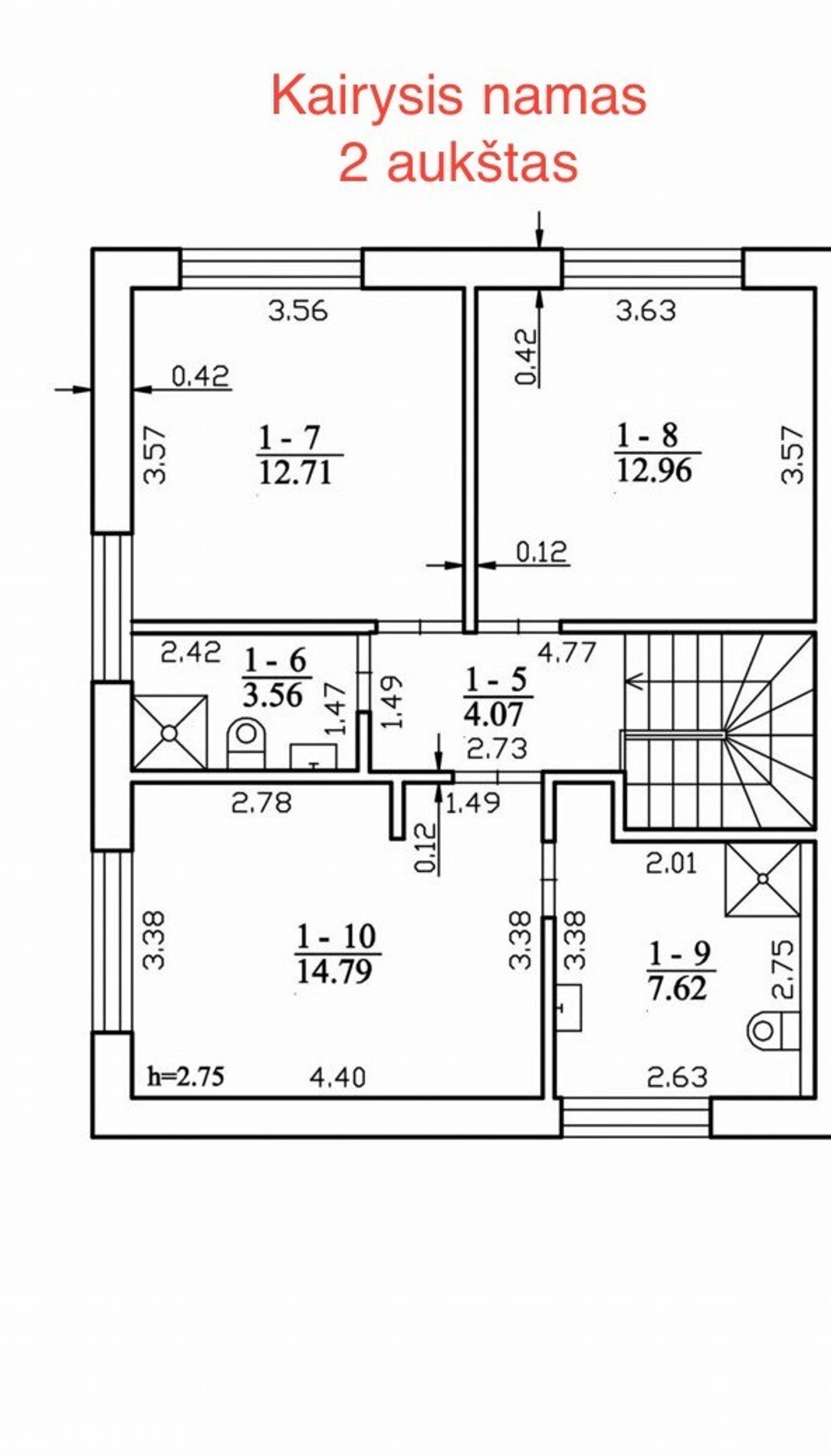
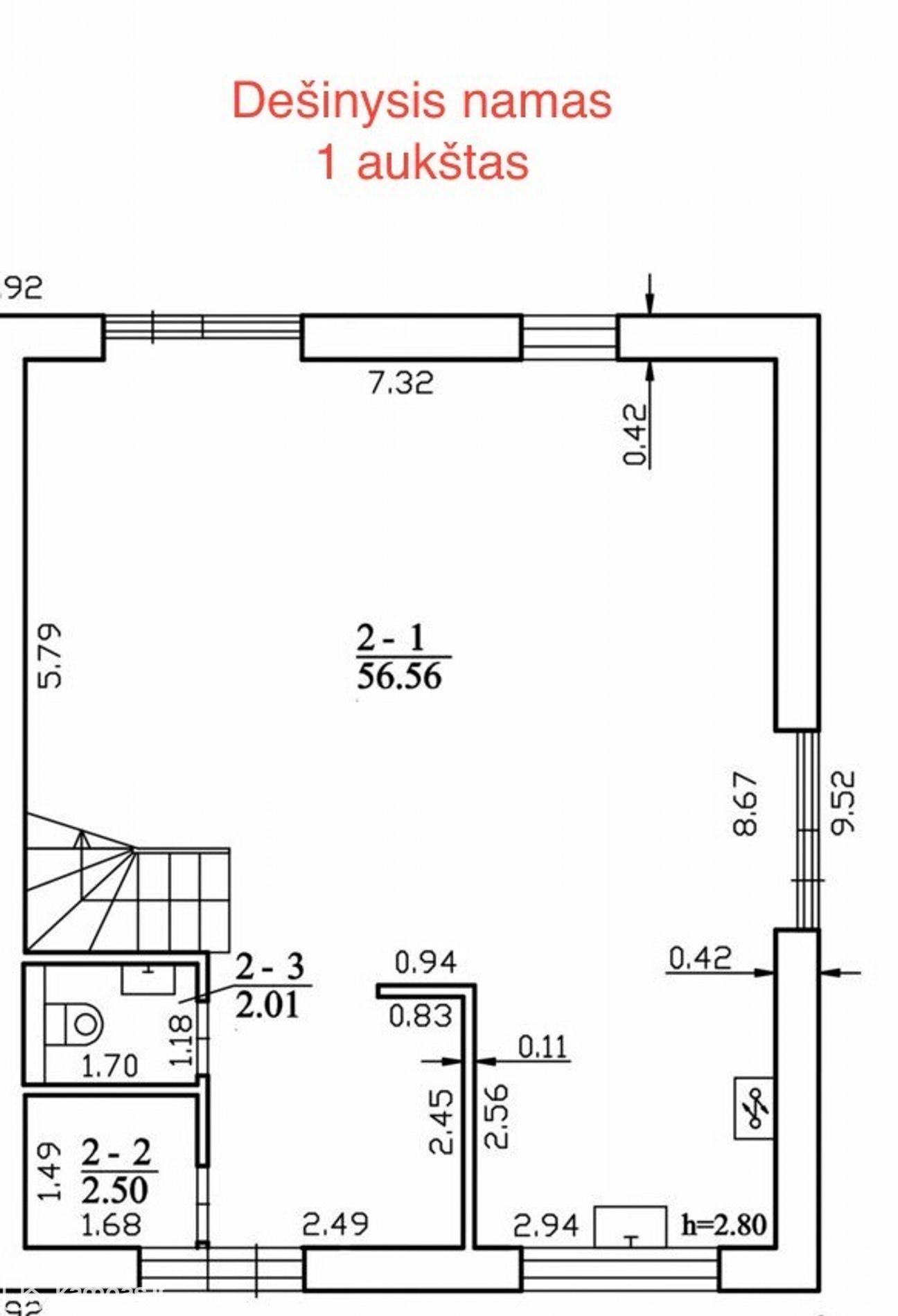
IŠPLANAVIMAS
1 aukštas: erdvi svetainė su virtuve, san. mazgas, katilinė, sandėliukas
2 aukštas: trys miegamieji, tėvų kambarys su atskiru vonios kambariu, vaikų vonios kambarys su WC
VIETA
Vaišvydava, Liepų al., Kauno r.
Rami gyvenvietė gamtos apsuptyje, tačiau vos keliolika minučių automobiliu iki miesto centro
Jaunoms šeimoms – galimybė gauti subsidiją.
Dėl išsamesnės informacijos ar apžiūros:
NT brokeris – Egidijus Vilkas
+370 611 26643 Visus naujausius CAPITAL nekilnojamojo turto skelbimus rasite mūsų internetiniame puslapyje www.capital.lt. Kviečiame apsilankyti!
Šis naujai pastatytas A++ energinės klasės sublokuotas namas Vaišvydavoje – puikus pasirinkimas tiems, kurie nori suderinti ramybę, gamtą ir patogų susisiekimą su miestu.
Namas įsikūręs uždaroje, saugioje teritorijoje, apsuptoje žalumos ir miško takų. Čia kiekviena detalė apgalvota šeimos patogumui – nuo erdvaus išplanavimo iki galimybės įsirengti jaukų privatų kiemelį.
PAGRINDINĖ INFORMACIJA
-Statybos metai: 2025 m., A++ energinė klasė
-Dalinė apdaila (galimas ir pilnas 100 % įrengimas)
-Šildymas: oras–vanduo
-Išvedžiotas grindinis šildymas, išbetonuotos grindys, sumontuoti kolektoriai, įrengta elektros instaliacija bei vėdinimo sistemos ortakiai
-Miesto vandentiekis ir kanalizacija
-Patalpų aukštis: 2,8–3 m
-Sutvarkyta aplinka – suklotos trinkelės, pasėta veja
-Galimybė įsirengti saulės elektrinę
IŠPLANAVIMAS
1 aukštas: erdvi svetainė su virtuve, san. mazgas, katilinė, sandėliukas
2 aukštas: trys miegamieji, tėvų kambarys su atskiru vonios kambariu, vaikų vonios kambarys su WC
VIETA
Vaišvydava, Liepų al., Kauno r.
Rami gyvenvietė gamtos apsuptyje, tačiau vos keliolika minučių automobiliu iki miesto centro
Jaunoms šeimoms – galimybė gauti subsidiją.
Dėl išsamesnės informacijos ar apžiūros:
NT brokeris – Egidijus Vilkas
+370 611 26643 Visus naujausius CAPITAL nekilnojamojo turto skelbimus rasite mūsų internetiniame puslapyje www.capital.lt. Kviečiame apsilankyti!
Nuotraukos
Kontaktai
MB Home NT
Skelbėjas:
Capital Būstas

