Įsiminti
Namas pardavimui, Kauno r. sav., Lapės, Tvenkinių g. id:948215 4 kmb.
229 000 €
1 497 €/m²
REKLAMA
Įmoka
863 €/mėn
Paskola 194 650 €
Palūkanos 3.40%
Trukmė 30 metų
Įsiminė
0
Parodymai
Šiandien: 1
Viso: 12616
Peržiūros
Šiandien: 0
Viso: 1207
Objekto informacija
REKLAMA
REKLAMA
Aprašymas
Parduodamas puikiai įrengtas namas Lapėse, tikroje gamtos apsuptyje. Iš vienos namo pusės teka Neris, iš kitos - Lapių tvenkinys. Tai vieta, kurioje atitrūkstate nuo miesto šurmulio, galėsite įkvėpti gryno oro gūsį ir pasinerti į ramybės oazę. Tačiau miesto patogumai išliks šalia - gydymo įstaigos, mokyklos, darželiai, parduotuvės bei visuomeninis transportas. Namas parduodamas su visais baldais, bei buitine technika, tad Jums kaip naujiems namo šeimininkams nereikės rūpintis buities įranga. Tai namas į kurį įėjus nesinori išeiti. Žodžiais apibūdinti to jaukumo neįmanoma, tad kviečiu atvažiuoti į apžiūrą ir pajausti tai patiems.
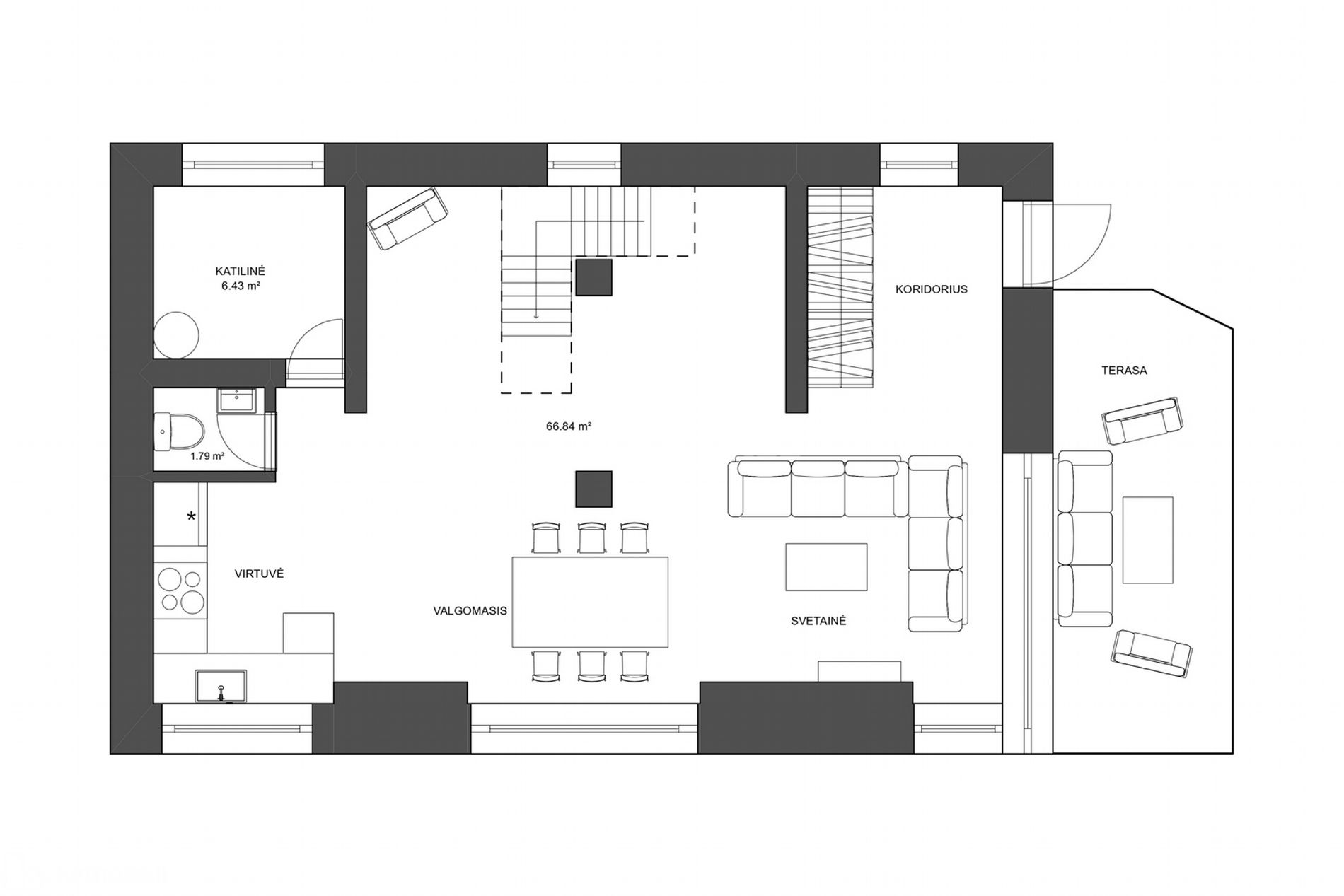
Gerai išplanuotas vidus: namas turi 3 miegamuosius, bei erdvią svetainę sujungta su virtuvės zona.
I aukšte - erdvi rūbinė, svetainė, virtuvė, tualetas, sandėliukas.
II aukšte - miegamasis su sienine drabužine, kitas miegamasis, vienas vaikų kambarys, labai erdvus vonios kambarys kuriame rasite dušą, kriauklę, tualetą, vonią.
PRIVALUMAI
• Itin rami vieta, šalia Staviščių miškas, tik 2 minutės pėsčiomis iki Lapių tvenkinio;
• Rami gatvelė, privatumas, šalia ugdymo ir gydymo įstaigos;
• Autonominis dujinis šildymas;
• Dideli langai;
• Lauko terasa su išskleidžiamu stogu, bei minkštais lauko baldais;
• Itin erdvus, patogiai suplanuotas būstas, sandėliukas;
• Atskiras kiemas ir automobilių parkavimo vietos;
BENDRA INFORMACIJA
• Plotas: 153,04 kv. m;
• Kambarių skaičius: 4 (3 iš jų miegamieji);
• Pagalbinė patalpa;
• Šildymas: dujinis autonominis (šildomos grindys);
• Grindys: medinės;
• Sienos: dažytos, tapetuotos;
• Lauko durys: šarvo;
• Žemės sklypo plotas: 5,83 a;
• Vandentiekis: miesto;
• Nuotekų šalinimas: miesto;
NAMO INFORMACIJA
• Statybos metai: 2013;
• Namo tipas: blokeliai;
• Stogo danga: beasbestis cementas;
VIETA IR INFRASTRUKTŪRA
• 1 minutė pėsčiomis iki Hila klinikos;
• 2 minutės automobiliu iki Lapių mokyklos;
• 2 minutės automobiliu iki sveikatos centro
• 3 minutės automobiliu iki Lapių lopšelio - darželio;
• 3 minutės automobiliu iki maisto prekių parduotuvės;
Susisiekite nurodytais kontaktais ir bet kuriuo Jums patogiu metu suderinsime apžiūrą, bei apžiūros metu atsakysiu į visus Jums rūpimus klausimus.
PIRKĖJUI NETAIKOMI TARPININKAVIMO MOKESČIAI
Pirkėjui paruošiu visus reikiamus dokumentus pirkimui, padėsiu gauti paskolą su partnerių nuolaidomis be administracinių mokesčių, suorganizuosiu turto vertinimą, kuris galioja visose Lietuvos kredito įstaigose, konsultuosiu kitais su pirkimu susijusiais klausimais.
-- Objekto nr. Ober-Haus tinklapyje www.ober-haus.lt/OH493542
Profesionali pagalba parduodant, nuomojant ir įsigyjant nekilnojamąjį turtą:
- Sandoriui reikalingų dokumentų analizė prieš pardavimą;
- Preliminariųjų, rezervavimo sutarčių, priėmimo-perdavimo aktų ir kitų sutarties priedų bei dokumentų parengimas apsaugant jūsų interesus;
- Efektyvi ir itin platų pirkėjų ratą apimanti rinkodara ir marketingo priemonės, pirkėjų srauto monitoringas;
- Jūsų interesų atstovavimas derybose, sutarčių derinime;
- Konsultavimas mokestiniais, juridiniais klausimais.
Gerai išplanuotas vidus: namas turi 3 miegamuosius, bei erdvią svetainę sujungta su virtuvės zona.
I aukšte - erdvi rūbinė, svetainė, virtuvė, tualetas, sandėliukas.
II aukšte - miegamasis su sienine drabužine, kitas miegamasis, vienas vaikų kambarys, labai erdvus vonios kambarys kuriame rasite dušą, kriauklę, tualetą, vonią.
PRIVALUMAI
• Itin rami vieta, šalia Staviščių miškas, tik 2 minutės pėsčiomis iki Lapių tvenkinio;
• Rami gatvelė, privatumas, šalia ugdymo ir gydymo įstaigos;
• Autonominis dujinis šildymas;
• Dideli langai;
• Lauko terasa su išskleidžiamu stogu, bei minkštais lauko baldais;
• Itin erdvus, patogiai suplanuotas būstas, sandėliukas;
• Atskiras kiemas ir automobilių parkavimo vietos;
BENDRA INFORMACIJA
• Plotas: 153,04 kv. m;
• Kambarių skaičius: 4 (3 iš jų miegamieji);
• Pagalbinė patalpa;
• Šildymas: dujinis autonominis (šildomos grindys);
• Grindys: medinės;
• Sienos: dažytos, tapetuotos;
• Lauko durys: šarvo;
• Žemės sklypo plotas: 5,83 a;
• Vandentiekis: miesto;
• Nuotekų šalinimas: miesto;
NAMO INFORMACIJA
• Statybos metai: 2013;
• Namo tipas: blokeliai;
• Stogo danga: beasbestis cementas;
VIETA IR INFRASTRUKTŪRA
• 1 minutė pėsčiomis iki Hila klinikos;
• 2 minutės automobiliu iki Lapių mokyklos;
• 2 minutės automobiliu iki sveikatos centro
• 3 minutės automobiliu iki Lapių lopšelio - darželio;
• 3 minutės automobiliu iki maisto prekių parduotuvės;
Susisiekite nurodytais kontaktais ir bet kuriuo Jums patogiu metu suderinsime apžiūrą, bei apžiūros metu atsakysiu į visus Jums rūpimus klausimus.
PIRKĖJUI NETAIKOMI TARPININKAVIMO MOKESČIAI
Pirkėjui paruošiu visus reikiamus dokumentus pirkimui, padėsiu gauti paskolą su partnerių nuolaidomis be administracinių mokesčių, suorganizuosiu turto vertinimą, kuris galioja visose Lietuvos kredito įstaigose, konsultuosiu kitais su pirkimu susijusiais klausimais.
-- Objekto nr. Ober-Haus tinklapyje www.ober-haus.lt/OH493542
Profesionali pagalba parduodant, nuomojant ir įsigyjant nekilnojamąjį turtą:
- Sandoriui reikalingų dokumentų analizė prieš pardavimą;
- Preliminariųjų, rezervavimo sutarčių, priėmimo-perdavimo aktų ir kitų sutarties priedų bei dokumentų parengimas apsaugant jūsų interesus;
- Efektyvi ir itin platų pirkėjų ratą apimanti rinkodara ir marketingo priemonės, pirkėjų srauto monitoringas;
- Jūsų interesų atstovavimas derybose, sutarčių derinime;
- Konsultavimas mokestiniais, juridiniais klausimais.
Nuotraukos
