Įsiminti
Namas pardavimui, Kauno r. sav., Ireniškiai, Varovų g. id:1037387 4 kmb.
199 500 €
2 057 €/m²
REKLAMA
Įmoka
752 €/mėn
Paskola 169 575 €
Palūkanos 3.40%
Trukmė 30 metų
Įsiminė
0
Parodymai
Šiandien: 11
Viso: 217
Peržiūros
Šiandien: 2
Viso: 52
Objekto informacija
Aprašymas
PARDUODAMI 4 BLOKUOTI MŪRINIAI VIENO AUKŠTO NAMAI IRENIŠKĖSE, VIENAAUKŠČIŲ NAMŲ KVARTALE, MIESTO KOMUNIKACIJOS. NAMAI KAMPINIAI, 4 KAMBARIŲ SU ERDVE DRABUŽINE IR TECHNINE PATALPA. NAMŲ BAIGTUMAS NUMATOMAS 85 PROC., TAČIAU GALIMAS IR PILNAS ĮRENGIMAS. KIEMAS GRYSTAS TRINKELĖMIS, ASFALTUOTAS PRIVAŽIAVIMAS. RAMI, SOLIDI KAIMINYSTĖ, AKLIGATVIS.
ŠIUO METU DIRBAMA NAMO VIDUJE. REZERVAVUS YRA GALIMYBĖ ĮRENGTI PAGAL JŪSŲ NORUS IKI 100 PROC. BAIGTUMO. FASADO APDAILA NUMATOMAS KLINKERIS.
ŠIUO METU GALITE RINKTIS LABIAUSIAI PATINKANTĮ VARIANTĄ IŠ 4.
BLOKUOTŲ NAMŲ PIRKIMAS BUS GALIMAS 2026 M. PAVASARĮ. REZERVACIJA GALIMA JAU DABAR.
____________________________
Skambinkite ir sutarsime laiką apžiūrai. Tel.+370 624 44044
CAPITAL BROKERĖ DOVILĖ VELIČKIENĖ
____________________________
BENDRA INFORMACIJA:
✅ Adresas: Varovų g. 22, Ireniškiai, Kauno raj.
✅ Statybos metai: 2025 - 2026
✅ Kambarių skaičius: 4
✅ 1 aukštas, A++ klasė
✅ Baigtumas: 85 proc.
✅ Namai vieno aukšto, blokuoti (dvibučiai)
✅ Žemės plotas: 4,6 arai
✅ Šildymas: oras vanduo šilumos siurblys
✅ Vanduo: miesto
✅ Nuotekos: miesto
✅ Elektros įvadas: po 9 KW.
✅ Signalizacija
PRIVALUMAI:
✅ Namas mūrinis
✅ Asfaltuotas privažiavimas
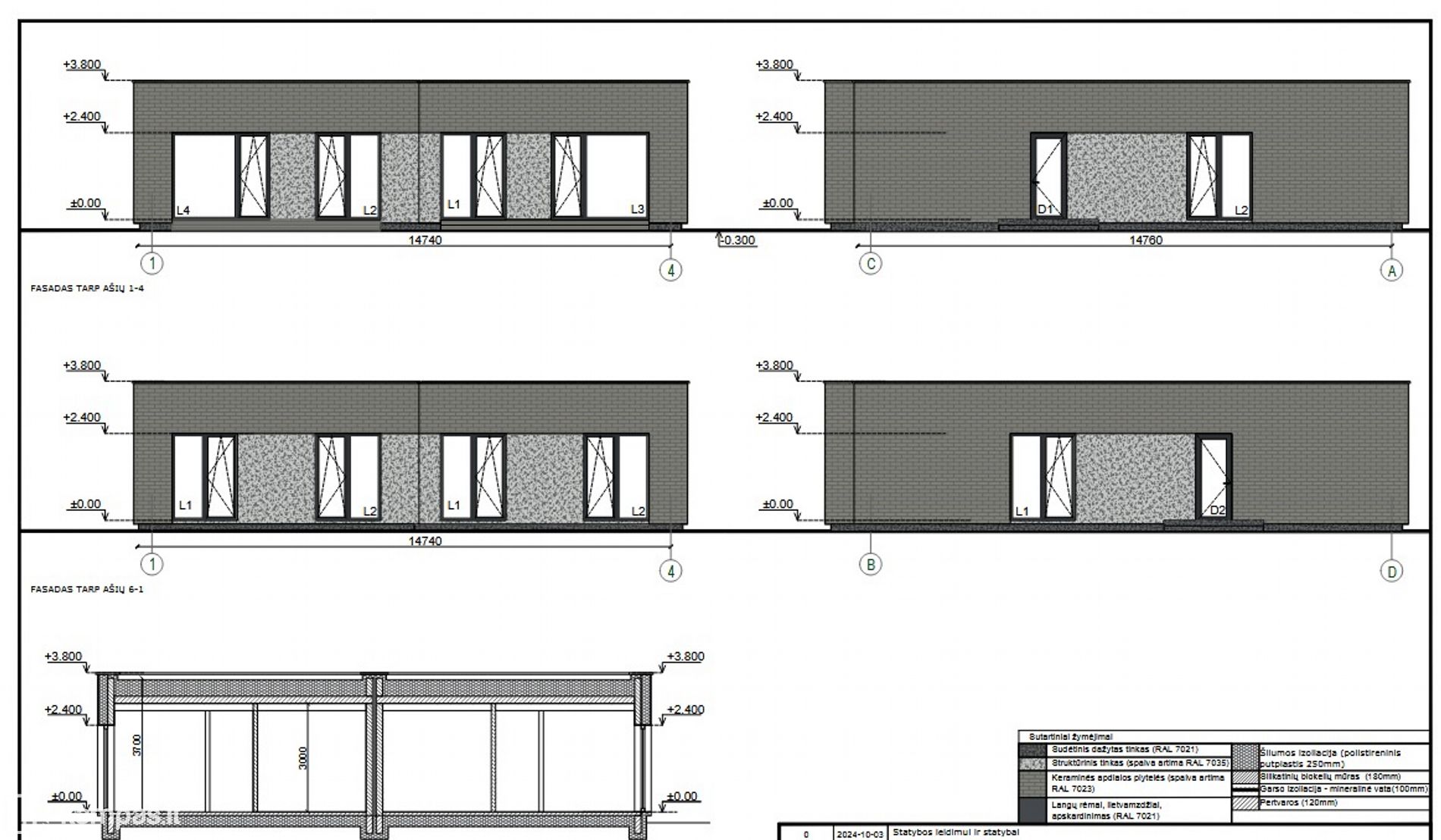
✅ Klinkerinis fasadas
✅ Bus aptverta teritorija
✅ Nuosavų namų gyvenamasis kvartalas
✅ Akligatvis
✅ Sklypas lygus, taisyklingos formos
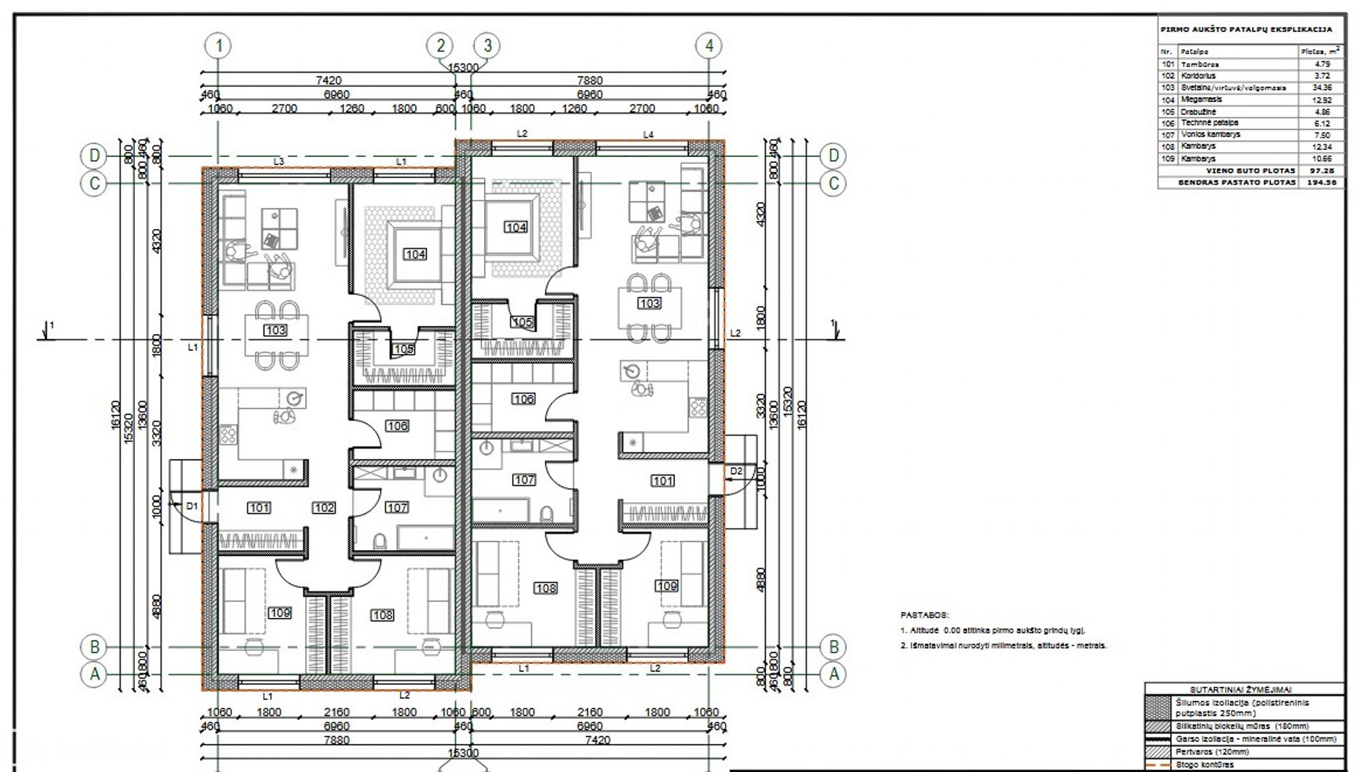
IŠPLANAVIMAS
✅ Tambūras: 4,79 kv.m
✅ Koridorius: 3,72 kv.m
✅ Svetainė sujungta su virtuve ir valgomuoju: 34,36 kv.m
✅ Miegamasis: 12,92 kv.m
✅ Drabužinė: 4,86 kv.m
✅ Kambarys: 12,34 kv.m
✅ Kambarys: 10,66 kv.m
✅ Vonios su wc kambarys: 7,5 kv.m
✅ Techninė patalpa: 6,12 kv.m
APIE PROJEKTĄ:
✅ Numatytos po dvi - tris parkavimo vietos. Galimi atskiri įvažiavimai arba bendras kiemas.
✅ Fasado apdaila – šviesiai pilkas ir tamsiai pilkos spalvos klinkeris
✅ Šildymo sistema: oras/vanduo
✅ Sumontuota rekuperacinė vėdinimo sistema
✅ Oras/vanduo šilumos siurbliai - “Samsung ” firmos.
✅ Aukštos kokybės medžiagos
✅ Bus atliktas sandarumo testas
✅ Visos miesto komunikacijos (vandentiekis, kanalizacija, lietaus kanalizacija)
✅ Įrengtas drenažas
✅ Mūryta iš keramikos blokelių(molis)
✅ Fasadas šiltintas 25 putplastis
✅ Tarp kaimynų mūryta dviguba siena
✅ Pamatai gręžtiniai poliniai, house blokelių
✅ Stogas bituminė danga.
✅ Langai
✅ Šildomos grindys
✅ Vidaus pertavros dvigubas gipsas 10cm. ir mineralinė vatas. Virtuvės ir wc sienos mūrytos.
Reikalinga paskola? Savo klientams padedu gauti išskirtines finansavimo sąlygas ne tik bankuose, o taip pat ir Kredito unijose.
PARDUODATE? Skambinkite – nemokamai konsultuojame, nemokamai nustatome Jūsų objekto rinkos kainą. Konsultacijos nemokamos! Galite kreiptis ir savaitgaliais!
Rekomenduojame turto VERTINTOJUS, MATININKUS. Visus naujausius CAPITAL nekilnojamojo turto skelbimus rasite mūsų internetiniame puslapyje www.capital.lt. Kviečiame apsilankyti!
ŠIUO METU DIRBAMA NAMO VIDUJE. REZERVAVUS YRA GALIMYBĖ ĮRENGTI PAGAL JŪSŲ NORUS IKI 100 PROC. BAIGTUMO. FASADO APDAILA NUMATOMAS KLINKERIS.
ŠIUO METU GALITE RINKTIS LABIAUSIAI PATINKANTĮ VARIANTĄ IŠ 4.
BLOKUOTŲ NAMŲ PIRKIMAS BUS GALIMAS 2026 M. PAVASARĮ. REZERVACIJA GALIMA JAU DABAR.
____________________________
Skambinkite ir sutarsime laiką apžiūrai. Tel.+370 624 44044
CAPITAL BROKERĖ DOVILĖ VELIČKIENĖ
____________________________
BENDRA INFORMACIJA:
✅ Adresas: Varovų g. 22, Ireniškiai, Kauno raj.
✅ Statybos metai: 2025 - 2026
✅ Kambarių skaičius: 4
✅ 1 aukštas, A++ klasė
✅ Baigtumas: 85 proc.
✅ Namai vieno aukšto, blokuoti (dvibučiai)
✅ Žemės plotas: 4,6 arai
✅ Šildymas: oras vanduo šilumos siurblys
✅ Vanduo: miesto
✅ Nuotekos: miesto
✅ Elektros įvadas: po 9 KW.
✅ Signalizacija
PRIVALUMAI:
✅ Namas mūrinis
✅ Asfaltuotas privažiavimas
✅ Klinkerinis fasadas
✅ Bus aptverta teritorija
✅ Nuosavų namų gyvenamasis kvartalas
✅ Akligatvis
✅ Sklypas lygus, taisyklingos formos
IŠPLANAVIMAS
✅ Tambūras: 4,79 kv.m
✅ Koridorius: 3,72 kv.m
✅ Svetainė sujungta su virtuve ir valgomuoju: 34,36 kv.m
✅ Miegamasis: 12,92 kv.m
✅ Drabužinė: 4,86 kv.m
✅ Kambarys: 12,34 kv.m
✅ Kambarys: 10,66 kv.m
✅ Vonios su wc kambarys: 7,5 kv.m
✅ Techninė patalpa: 6,12 kv.m
APIE PROJEKTĄ:
✅ Numatytos po dvi - tris parkavimo vietos. Galimi atskiri įvažiavimai arba bendras kiemas.
✅ Fasado apdaila – šviesiai pilkas ir tamsiai pilkos spalvos klinkeris
✅ Šildymo sistema: oras/vanduo
✅ Sumontuota rekuperacinė vėdinimo sistema
✅ Oras/vanduo šilumos siurbliai - “Samsung ” firmos.
✅ Aukštos kokybės medžiagos
✅ Bus atliktas sandarumo testas
✅ Visos miesto komunikacijos (vandentiekis, kanalizacija, lietaus kanalizacija)
✅ Įrengtas drenažas
✅ Mūryta iš keramikos blokelių(molis)
✅ Fasadas šiltintas 25 putplastis
✅ Tarp kaimynų mūryta dviguba siena
✅ Pamatai gręžtiniai poliniai, house blokelių
✅ Stogas bituminė danga.
✅ Langai
✅ Šildomos grindys
✅ Vidaus pertavros dvigubas gipsas 10cm. ir mineralinė vatas. Virtuvės ir wc sienos mūrytos.
Reikalinga paskola? Savo klientams padedu gauti išskirtines finansavimo sąlygas ne tik bankuose, o taip pat ir Kredito unijose.
PARDUODATE? Skambinkite – nemokamai konsultuojame, nemokamai nustatome Jūsų objekto rinkos kainą. Konsultacijos nemokamos! Galite kreiptis ir savaitgaliais!
Rekomenduojame turto VERTINTOJUS, MATININKUS. Visus naujausius CAPITAL nekilnojamojo turto skelbimus rasite mūsų internetiniame puslapyje www.capital.lt. Kviečiame apsilankyti!
Nuotraukos
