Įsiminti
Namas pardavimui, Alytus, Senamiestis, Liškiavos g. id:1029225 4 kmb.
103 000 €
701 €/m²
REKLAMA
Įmoka
388 €/mėn
Paskola 87 550 €
Palūkanos 3.40%
Trukmė 30 metų
Įsiminė
0
Parodymai
Šiandien: 6
Viso: 3811
Peržiūros
Šiandien: 4
Viso: 658
Objekto informacija
Aprašymas
147,10 kv. m. namas įsikūręs vos kelios minutės pėsčiomis nuo pušyno, žaliųjų erdvių bei pėsčiųjų ir dviračių takų. Puiki vieta tiems, kurie vertina ramybę, gryną orą ir galimybę mėgautis tiek ramiu poilsiu, tiek aktyviu laisvalaikiu gamtoje.
Strategiškai patogi vieta gyvenimui – iki pat sklypo veda trinkelėmis išklotas, sutvarkytas privažiavimas.
Sklype taip pat yra nedidelis 6,6 kv. m. ūkinis pastatas – patogus sprendimas daiktų laikymui ar smulkiems buitiniams poreikiams.
BENDRA INFORMACIJA:
• Bendras plotas: 147,10 kv. m.
• Statybos metai: 1969 m.
• Aukštai: 1 aukštas + rūsys
• Kambarių skaičius: 4
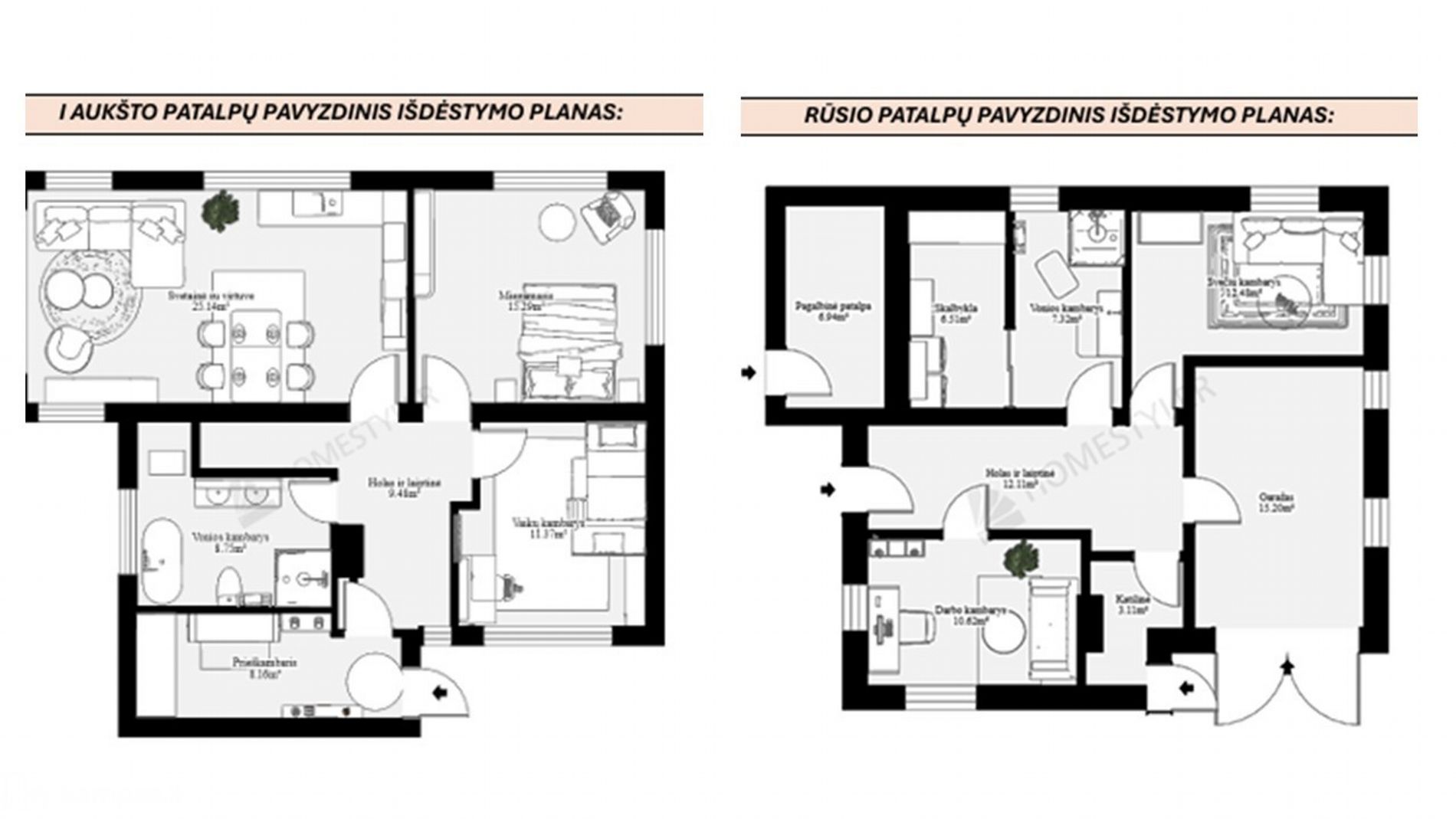
• I aukšto patalpos: kambarys – 21,42 kv.m, kambarys – 17,14 kv.m, kambarys – 11,70 kv.m, kambarys – 15,43 kv.m, holas su laiptine– 8,56 kv.m, prieškambaris – 1,67 kv.m
• Rūsio patalpos: kambarys – 13,17 kv.m, pagalbinė patalpa – 8,69 kv.m, vonios kambarys ir WC – 3,99 kv.m, virtuvė – 9,83 kv.m, holas su laiptine – 8,93 kv.m, katilinė – 2,82 kv.m , garažas – 15,20 kv.m, prieškambaris – 1,61 kv.m, pagalbinė patalpa – 6,94 kv.m
• Sklypo plotas – 6,36 arai
• Šildymas – kietu kuru
• Garažas – integruotas po namu
• Pagalbinė patalpa daiktams laikyti (sandėliukas) – integruota po namu (įėjimas iš lauko).
• Rūsyje yra katilinė.
• Miesto vandentiekis ir kanalizacija.
Mėgaukitės ramybe miesto apsuptyje, gyvendami ten, kur viskas, ko reikia patogiam ir šiuolaikiškam gyvenimui, – ranka pasiekiama. Tai puikus sprendimas norintiems gyventi komfortiškoje ir harmoningje aplinkoje Alytaus mieste.
Visus naujausius CAPITAL nekilnojamojo turto skelbimus rasite mūsų internetiniame puslapyje www.capital.lt. Kviečiame apsilankyti!
Strategiškai patogi vieta gyvenimui – iki pat sklypo veda trinkelėmis išklotas, sutvarkytas privažiavimas.
Sklype taip pat yra nedidelis 6,6 kv. m. ūkinis pastatas – patogus sprendimas daiktų laikymui ar smulkiems buitiniams poreikiams.
BENDRA INFORMACIJA:
• Bendras plotas: 147,10 kv. m.
• Statybos metai: 1969 m.
• Aukštai: 1 aukštas + rūsys
• Kambarių skaičius: 4
• I aukšto patalpos: kambarys – 21,42 kv.m, kambarys – 17,14 kv.m, kambarys – 11,70 kv.m, kambarys – 15,43 kv.m, holas su laiptine– 8,56 kv.m, prieškambaris – 1,67 kv.m
• Rūsio patalpos: kambarys – 13,17 kv.m, pagalbinė patalpa – 8,69 kv.m, vonios kambarys ir WC – 3,99 kv.m, virtuvė – 9,83 kv.m, holas su laiptine – 8,93 kv.m, katilinė – 2,82 kv.m , garažas – 15,20 kv.m, prieškambaris – 1,61 kv.m, pagalbinė patalpa – 6,94 kv.m
• Sklypo plotas – 6,36 arai
• Šildymas – kietu kuru
• Garažas – integruotas po namu
• Pagalbinė patalpa daiktams laikyti (sandėliukas) – integruota po namu (įėjimas iš lauko).
• Rūsyje yra katilinė.
• Miesto vandentiekis ir kanalizacija.
Mėgaukitės ramybe miesto apsuptyje, gyvendami ten, kur viskas, ko reikia patogiam ir šiuolaikiškam gyvenimui, – ranka pasiekiama. Tai puikus sprendimas norintiems gyventi komfortiškoje ir harmoningje aplinkoje Alytaus mieste.
Visus naujausius CAPITAL nekilnojamojo turto skelbimus rasite mūsų internetiniame puslapyje www.capital.lt. Kviečiame apsilankyti!
Nuotraukos
Kontaktai
Capital Centras
Skelbėjas:
Capital Centras

