Įsiminti
Butas nuomai, Vilnius, Markučiai, Manufaktūrų g. id:1034354 3 kmb.
1 150 € / mėn.
19,83 €/m²
Įsiminė
0
Parodymai
Šiandien: 70
Viso: 70
Peržiūros
Šiandien: 7
Viso: 6
Objekto informacija
Aprašymas
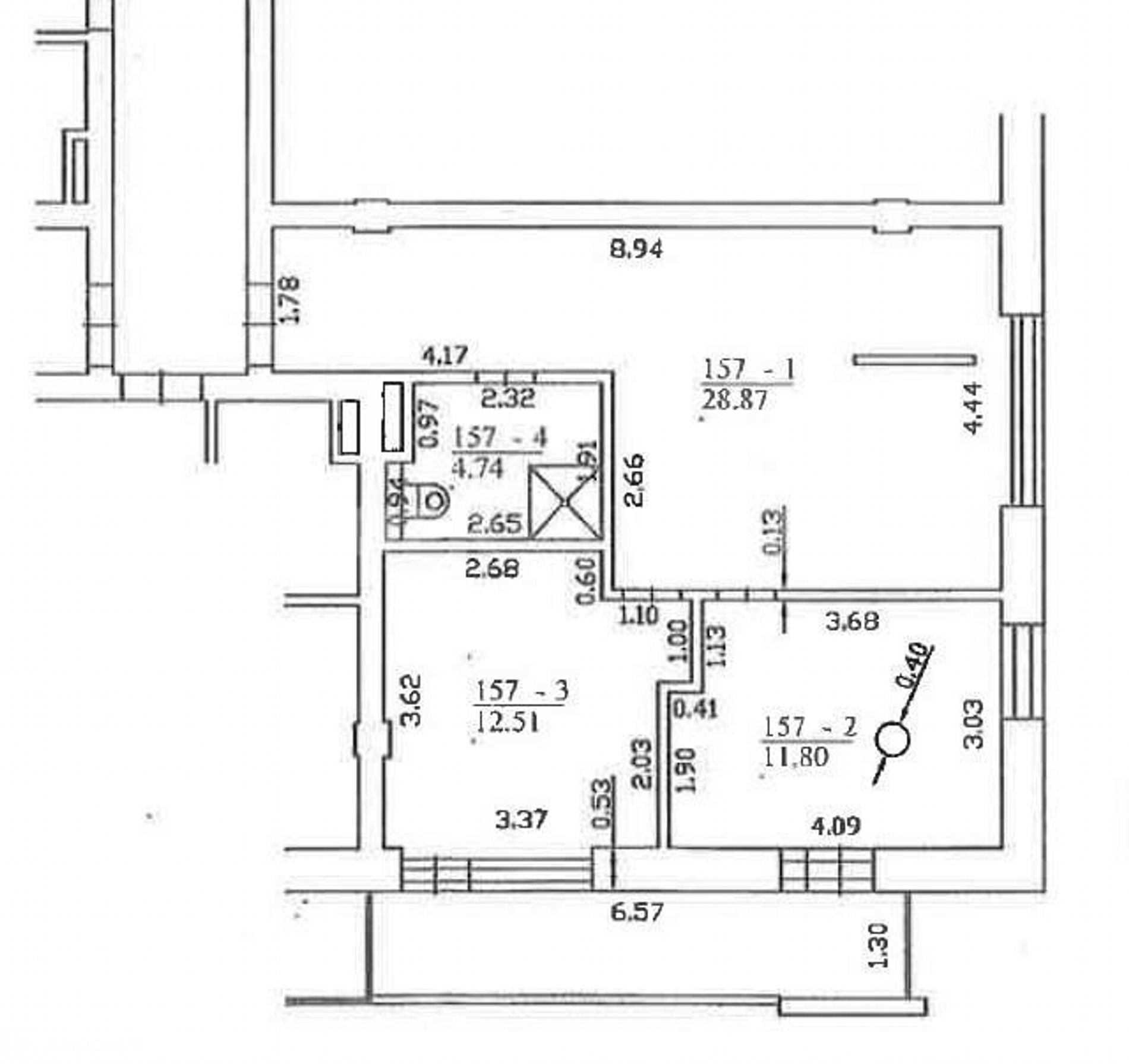
Išnuomojamas modernus ir šviesus 3 kambarių, 58 kv. m butas uždarame P-9 kvartale, Paupio kaimynystėje.
PAGRINDINIAI PRIVALUMAI
• Funkcionalus interjeras, sukurtas dizainerio
• Daug natūralios šviesos
• Didelis 8,5 kv. m balkonas
• Moderni virtuvė, kokybiški baldai ir technika
• Miegamasis su didele spinta, trečias kambarys be baldų
• Kolektorinis šildymas, grindinis elektrinis šildymas vonioje
• Rekuperacinė vėdinimo sistema
• Kondicionierius, signalizacija, domofonas su kamera
• Uždara dviračių saugykla, saugi teritorija
• Galimybė išsinuomoti požeminį parkingą ir sandėliuką (5,56 kv. m)
BENDRA INFORMACIJA
• Aukštas – 2/6 (yra liftas)
• Kambarių skaičius – 3, 58 kv. m
• Langai orientuoti į rytus ir pietus
• Svetainė su virtuve, miegamasis, trečias kambarys
• Nuomos kaina – 1150 Eur/mėn. + komunaliniai
• Butas nuomojamas be papildomų NT agento mokesčių
VIETA IR APLINKA
• Strategiškai patogi vieta – greta Paupio, Užupio ir Senamiesčio
• Uždara, saugi teritorija su dideliu vidiniu kiemu
• Poilsio zonos ir moderni vaikų žaidimų aikštelė
• 7–10 min. pėsčiomis iki Paupio turgaus, 10–15 min. iki Užupio ir Senamiesčio
• Šalia prekybos vietos: „Aibė“ (0 min), „Maxima“ – 5–7 min., „Rimi“ – 7–10 min.
• 5 min. pėsčiomis iki darželio ir viešojo transporto stotelių
• Greta Belmonto ir Pavilnio parkai – puiki vieta gamtos mėgėjams
• Vos 1 min. pėsčiomis iki naujai įrengto Kaukysos stadiono su padelio, tinklinio, futbolo, krepšinio, teniso aikštynais, treniruoklių zona ir didžiule vaikų žaidimų erdve
• Įrengti dviračių, bėgimo ir pėsčiųjų takai – ideali vieta aktyviam gyvenimo būdui
Šis butas – puiki vieta tiems, kurie vertina ramybę ir saugumą uždarame kvartale, patogų išplanavimą ir greitą priėjimą prie miesto infrastruktūros bei gamtos erdvių. Čia rasite komfortą, privatumą ir galimybę gyventi aktyvų gyvenimą patogioje vietoje.
-- Objekto nr. Ober-Haus tinklapyje www.ober-haus.lt/OH503246
Profesionali pagalba parduodant, nuomojant ir įsigyjant nekilnojamąjį turtą:
- Sandoriui reikalingų dokumentų analizė prieš pardavimą;
- Preliminariųjų, rezervavimo sutarčių, priėmimo-perdavimo aktų ir kitų sutarties priedų bei dokumentų parengimas apsaugant jūsų interesus;
- Efektyvi ir itin platų pirkėjų ratą apimanti rinkodara ir marketingo priemonės, pirkėjų srauto monitoringas;
- Jūsų interesų atstovavimas derybose, sutarčių derinime;
- Konsultavimas mokestiniais, juridiniais klausimais.
PAGRINDINIAI PRIVALUMAI
• Funkcionalus interjeras, sukurtas dizainerio
• Daug natūralios šviesos
• Didelis 8,5 kv. m balkonas
• Moderni virtuvė, kokybiški baldai ir technika
• Miegamasis su didele spinta, trečias kambarys be baldų
• Kolektorinis šildymas, grindinis elektrinis šildymas vonioje
• Rekuperacinė vėdinimo sistema
• Kondicionierius, signalizacija, domofonas su kamera
• Uždara dviračių saugykla, saugi teritorija
• Galimybė išsinuomoti požeminį parkingą ir sandėliuką (5,56 kv. m)
BENDRA INFORMACIJA
• Aukštas – 2/6 (yra liftas)
• Kambarių skaičius – 3, 58 kv. m
• Langai orientuoti į rytus ir pietus
• Svetainė su virtuve, miegamasis, trečias kambarys
• Nuomos kaina – 1150 Eur/mėn. + komunaliniai
• Butas nuomojamas be papildomų NT agento mokesčių
VIETA IR APLINKA
• Strategiškai patogi vieta – greta Paupio, Užupio ir Senamiesčio
• Uždara, saugi teritorija su dideliu vidiniu kiemu
• Poilsio zonos ir moderni vaikų žaidimų aikštelė
• 7–10 min. pėsčiomis iki Paupio turgaus, 10–15 min. iki Užupio ir Senamiesčio
• Šalia prekybos vietos: „Aibė“ (0 min), „Maxima“ – 5–7 min., „Rimi“ – 7–10 min.
• 5 min. pėsčiomis iki darželio ir viešojo transporto stotelių
• Greta Belmonto ir Pavilnio parkai – puiki vieta gamtos mėgėjams
• Vos 1 min. pėsčiomis iki naujai įrengto Kaukysos stadiono su padelio, tinklinio, futbolo, krepšinio, teniso aikštynais, treniruoklių zona ir didžiule vaikų žaidimų erdve
• Įrengti dviračių, bėgimo ir pėsčiųjų takai – ideali vieta aktyviam gyvenimo būdui
Šis butas – puiki vieta tiems, kurie vertina ramybę ir saugumą uždarame kvartale, patogų išplanavimą ir greitą priėjimą prie miesto infrastruktūros bei gamtos erdvių. Čia rasite komfortą, privatumą ir galimybę gyventi aktyvų gyvenimą patogioje vietoje.
-- Objekto nr. Ober-Haus tinklapyje www.ober-haus.lt/OH503246
Profesionali pagalba parduodant, nuomojant ir įsigyjant nekilnojamąjį turtą:
- Sandoriui reikalingų dokumentų analizė prieš pardavimą;
- Preliminariųjų, rezervavimo sutarčių, priėmimo-perdavimo aktų ir kitų sutarties priedų bei dokumentų parengimas apsaugant jūsų interesus;
- Efektyvi ir itin platų pirkėjų ratą apimanti rinkodara ir marketingo priemonės, pirkėjų srauto monitoringas;
- Jūsų interesų atstovavimas derybose, sutarčių derinime;
- Konsultavimas mokestiniais, juridiniais klausimais.
Nuotraukos
