Įsiminti
Butas nuomai, Vilnius, Antakalnis, Smėlio g. id:1027370 4 kmb.
1 350 € / mėn.
12,50 €/m²
Įsiminė
0
Parodymai
Šiandien: 6
Viso: 1059
Peržiūros
Šiandien: 1
Viso: 63
Objekto informacija
REKLAMA
REKLAMA
Aprašymas
NUOMOJAMAS stilingas ir patogus butas su AUTONOMINIU ŠILDYMU ANTAKALNYJE (Smėlio g. 17, šalia Karo akademijos)
PAPILDOMA INFORMACIJA NUOMININKAMS:
• Butas LAISVAS jau DABAR, galima apžiūrėti ir nuomotis Jums patogiu metu / Available from NOW
• Šiam butui netaikomas joks agentūros mokestis (jei nuomojamasi 1 metams) / NO AGENCY FEE
• BUTAS STILINGAI IR KOKYBIŠKAI ĮRENGTAS
• AUTONOMINIS ŠILDYMAS (modernūs elektriniai šildytuvai, individualiai reguliuojama kiekvienoje patalpoje)
• VIDINIAME KIEME galima statyti AUTOMOBILIUS
• AUKŠTOS LUBOS, STOROS SIENOS
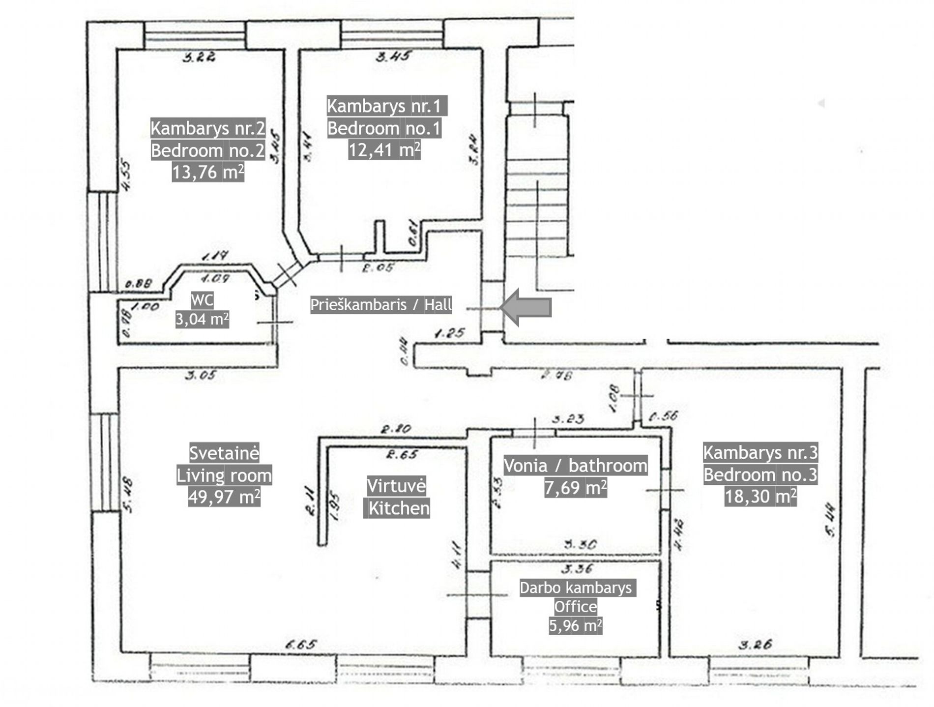
• FUNKCIONALUS IŠPLANAVIMAS (3 miegamieji kambariai + 1 darbo kambarys, svetainės + virtuvės erdvės, 1 vonios kambarys su WC ir papildomas WC)
• Yra SKALBYKLĖ, INDAPLOVĖ
• PRESTIŽINĖ IR STRATEGIŠKAI PATOGI VIETA, KUR VISI SVARBIAUSI OBJEKTAI BEI LANKYTINOS VIETOS PASIEKIAMI PĖSČIOMIS VISIEMS ŠEIMOS NARIAMS
• ŠALIA yra ANTAKALNIO MIŠKAI – PAVILNIO PARKAS, ATNAUJINTI PASIVAIKŠČIOJIMO TAKAI palei NERIES upę
BENDRA INFORMACIJA:
• Adresas: Smėlio g. 17, Antakalnis
• Bendras plotas: 108,15 kv.m.
• Aukštas: 1 iš 4
• Langai orientuoti į ramų vidinį kiemą ir Smėlio g.
• Kambariai: 3 miegamieji kambariai, 1 darbo kambarys (mažas
ĮRENGIMAS:
• Bute geros būklės
• Kokybiškas interjeras, įrengimui naudotos natūralios medžiagos
• Durys: įėjimo - šarvuotos, vidaus – natūralaus medžio
• Sienos: dažytos, san.mazguose ir virtuvėje – kokybiškos plytelės
• Storos sienos, gera garso izoliacija
• Ant langų sumontuotos išorinės apsauginės žaliuzės (dėl apsaugos ir dėl karščio vasarą)
• Grindys: kokybiškas parketas, san.mazguose – plytelės, yra šildomos zonos
• San. mazgai: dušas ir WC įrengtas patogiai
• Yra daug sieninių spintų (prieškambaryje, 3 didelės sieninės spintos kiekviename kambaryje)
• Balkonas: nėra.
NAMAS ir APLINKA:
• Saugi ir draugiška kaimynystė
• Tvarkinga ir švari laiptinė su rakinamomis durimis, yra domofonas
• Name nėra lifto (ir su juo susijusių mokesčių)
• Šalia namo yra daug vaikų žaidimų aikštelių
BALDAI IR BUITINĖ TECHNIKA:
• Nuomojamas su kokybiškais baldais (matosi nuotraukose) ir kokybiška buitine technika (skalbimo mašina, šaldytuvas su šaldikliu, gartraukis, skalbyklė)
EKSPLOATACINĖS IŠLAIDOS:
• Mažos šildymo išlaidos (autonomiškai reguliuojasi moderniais šildytuvais), apie 100-250 eur šalčiausiais mėnesiais
• Pastato ir kiemo priežiūra, laiptinės apšvietimas, šiukšlių išvežimas ir kt. – apie 35-45 eur/mėn.
• Šaltas bei karštas vanduo, elektra – pagal faktinį sunaudojimą ir galiojančius tarifus
• Yra internetas ir kabelinė televizija
PARKAVIMAS:
• Šalia namo NEMOKAMAI vidiniame kieme yra galimybė statyti automobilį
• Saugi vieta, netoliese yra Karo akademija su sustiprinta apsauga
VIETA
• Labai gera ir strategiškai patogi vieta, kur visi svarbiausi objektai bei lankytinos vietos pasiekiami pėsčiomis visiems šeimos nariams
• Puikus susisiekimas su visomis Vilniaus vietomis tiek pėsčiomis, tiek ir automobiliu
• Iki viešojo transporto stotelės ~ 300 m
• Iki prekybos centro Maxima, IKI ~ 400 m
• Idealiai tinka dirbantiems Centre, Senamiestyje arba aplinkinėse teritorijose
• Labai rami vieta, nesigirdi jokio miesto triukšmo
Kviečiu apžiūrai jums patogiu laiku!
NT brokerė
JUSTINA ZABARAUSKIENĖ
8 6 7 0 8 0 6 0 3
Kyla klausimų? Norite apžiūrėti? Skambinkite ar rašykite! Susitarsime dėl apžiūros arba pasiūlysiu alternatyvų.
Visus naujausius CAPITAL nekilnojamojo turto skelbimus rasite mūsų internetiniame puslapyje www.capital.lt. Kviečiame apsilankyti!
PAPILDOMA INFORMACIJA NUOMININKAMS:
• Butas LAISVAS jau DABAR, galima apžiūrėti ir nuomotis Jums patogiu metu / Available from NOW
• Šiam butui netaikomas joks agentūros mokestis (jei nuomojamasi 1 metams) / NO AGENCY FEE
• BUTAS STILINGAI IR KOKYBIŠKAI ĮRENGTAS
• AUTONOMINIS ŠILDYMAS (modernūs elektriniai šildytuvai, individualiai reguliuojama kiekvienoje patalpoje)
• VIDINIAME KIEME galima statyti AUTOMOBILIUS
• AUKŠTOS LUBOS, STOROS SIENOS
• FUNKCIONALUS IŠPLANAVIMAS (3 miegamieji kambariai + 1 darbo kambarys, svetainės + virtuvės erdvės, 1 vonios kambarys su WC ir papildomas WC)
• Yra SKALBYKLĖ, INDAPLOVĖ
• PRESTIŽINĖ IR STRATEGIŠKAI PATOGI VIETA, KUR VISI SVARBIAUSI OBJEKTAI BEI LANKYTINOS VIETOS PASIEKIAMI PĖSČIOMIS VISIEMS ŠEIMOS NARIAMS
• ŠALIA yra ANTAKALNIO MIŠKAI – PAVILNIO PARKAS, ATNAUJINTI PASIVAIKŠČIOJIMO TAKAI palei NERIES upę
BENDRA INFORMACIJA:
• Adresas: Smėlio g. 17, Antakalnis
• Bendras plotas: 108,15 kv.m.
• Aukštas: 1 iš 4
• Langai orientuoti į ramų vidinį kiemą ir Smėlio g.
• Kambariai: 3 miegamieji kambariai, 1 darbo kambarys (mažas
ĮRENGIMAS:
• Bute geros būklės
• Kokybiškas interjeras, įrengimui naudotos natūralios medžiagos
• Durys: įėjimo - šarvuotos, vidaus – natūralaus medžio
• Sienos: dažytos, san.mazguose ir virtuvėje – kokybiškos plytelės
• Storos sienos, gera garso izoliacija
• Ant langų sumontuotos išorinės apsauginės žaliuzės (dėl apsaugos ir dėl karščio vasarą)
• Grindys: kokybiškas parketas, san.mazguose – plytelės, yra šildomos zonos
• San. mazgai: dušas ir WC įrengtas patogiai
• Yra daug sieninių spintų (prieškambaryje, 3 didelės sieninės spintos kiekviename kambaryje)
• Balkonas: nėra.
NAMAS ir APLINKA:
• Saugi ir draugiška kaimynystė
• Tvarkinga ir švari laiptinė su rakinamomis durimis, yra domofonas
• Name nėra lifto (ir su juo susijusių mokesčių)
• Šalia namo yra daug vaikų žaidimų aikštelių
BALDAI IR BUITINĖ TECHNIKA:
• Nuomojamas su kokybiškais baldais (matosi nuotraukose) ir kokybiška buitine technika (skalbimo mašina, šaldytuvas su šaldikliu, gartraukis, skalbyklė)
EKSPLOATACINĖS IŠLAIDOS:
• Mažos šildymo išlaidos (autonomiškai reguliuojasi moderniais šildytuvais), apie 100-250 eur šalčiausiais mėnesiais
• Pastato ir kiemo priežiūra, laiptinės apšvietimas, šiukšlių išvežimas ir kt. – apie 35-45 eur/mėn.
• Šaltas bei karštas vanduo, elektra – pagal faktinį sunaudojimą ir galiojančius tarifus
• Yra internetas ir kabelinė televizija
PARKAVIMAS:
• Šalia namo NEMOKAMAI vidiniame kieme yra galimybė statyti automobilį
• Saugi vieta, netoliese yra Karo akademija su sustiprinta apsauga
VIETA
• Labai gera ir strategiškai patogi vieta, kur visi svarbiausi objektai bei lankytinos vietos pasiekiami pėsčiomis visiems šeimos nariams
• Puikus susisiekimas su visomis Vilniaus vietomis tiek pėsčiomis, tiek ir automobiliu
• Iki viešojo transporto stotelės ~ 300 m
• Iki prekybos centro Maxima, IKI ~ 400 m
• Idealiai tinka dirbantiems Centre, Senamiestyje arba aplinkinėse teritorijose
• Labai rami vieta, nesigirdi jokio miesto triukšmo
Kviečiu apžiūrai jums patogiu laiku!
NT brokerė
JUSTINA ZABARAUSKIENĖ
8 6 7 0 8 0 6 0 3
Kyla klausimų? Norite apžiūrėti? Skambinkite ar rašykite! Susitarsime dėl apžiūros arba pasiūlysiu alternatyvų.
Visus naujausius CAPITAL nekilnojamojo turto skelbimus rasite mūsų internetiniame puslapyje www.capital.lt. Kviečiame apsilankyti!
Nuotraukos
























