Įsiminti
Butas nuomai, Vilnius, Antakalnis, Plytinės g. id:1035489 2 kmb.
750 € / mėn.
10,27 €/m²
Įsiminė
0
Parodymai
Šiandien: 31
Viso: 3820
Peržiūros
Šiandien: 8
Viso: 487
Objekto informacija
Papildoma įranga
Aprašymas
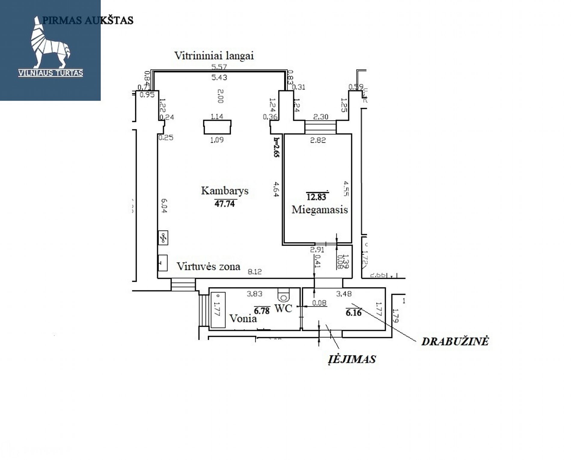
IŠNUOMOJAMAS labai ramioje vietoje, šalia miško PILNAI ĮRENGTAS - 2 k. Butas 73,28 kv. m SU VITRININIAIS LANGAIS, Plytinės g.29, Antakalnyje.
JOKIO TARPININKAVIMO MOKESČIO NĖRA !!!
PASIRAŠOMA NUOMOS SUTARTIS;
• VITRININIAI ATIDAROMI LANGAI Į PUŠYNĄ LEIS MĖGAUTIS RYTINE KAVA, AR VAKARE MĖGAUTIS RAMYBE, PAUKŠČIŲ ČIULBĖJIMU IR GRYNU ORU;
• IDEALI VIETA SPORTUOJANTIEMS , MĖGSTANTIEMS GRYBAUTI IR UOGAUTI;
• NETOLI MIESTO CENTRAS AR PAGRINDINIAI PREKYBOS CENTRAI, MOKYKLOS, DARŽELIAI...
• IDEALIOS SĄLYGOS MĖGSTANTIEMS GAMTĄ, AKTYVŲ GYVENIMO BŪDĄ – ŠALIA NAMŲ MIŠKAI, TAKELIAI BĖGIOJIMUI, DVIRAČIAMS, ŽYGIAMS.
BENDRA INFORMACIJA
Adresas: Plytinės g. 29, Vilnius (Antakalnis)
Bendras plotas: 73,28 kv. m;
Aukštai: 1 iš 6;
Kambarių sk.: 2;
Namo tipas: mūrinis;
Šildymas: Centrinis kolektorinis su individualia apskaita;
Statybos m. 2006 m.;
Įrengimas – Pilnai įrengtas
KAMBARIŲ APDAILA IR ĮRENGIMAS:
Grindys – natūralaus medžio parketinė grindų danga, vonioje ir koridoriuje – šildomomis plytelėmis
Sienos -- dažytos
Langai -- plastikiniai orientuoti į pušyno rytinę pusę ir vakarinę virtuvės langas.
Įėjimo į butą durys -- šarvo tipo; vidaus- medinės durys.
Svetainėje: minkšta odinė sofa;
Miegamajame: dvigulė lova, erdvi sieninė spinta;
Prieškambaryje: erdvi DRABUŽINĖ.
BUITINĖ TECHNIKA
Gartraukis, šaldytuvas, indaplovė, stiklo keramikos kaitlentė, orkaitė, skalbimo mašina.
PATALPŲ APRAŠYMAS:
• Svetainė ir virtuvė - 47,47 kv.m
• Miegamasis - 13,19 kv.m
• Vonios kambarys su WC - 6,16 kv.m
• Drabužinė su holu – 6,46 kv.m
KOMUNIKACIJOS IR KITA INFORMACIJA:
Šildymas (Centrinis kolektorinis su individualia apskaita, skaitikliu ). (šalčiausiu metu ~ 85 Eur.)
Elektra (yra naktinis ir dieninis tarifas) - mokesčiai priklauso nuo suvartojamo kiekio.
Į butą atvestos visos pagrindinės komunikacijos – internetas, kabelinė televizija.
Namą administruoja (“ADMI”) – papildomi mokesčiai mėnesiui apie 55 Eur. (gyva apsauga ~15Eur.; ir kt. paslaugos);
PARKAVIMAS
• Erdvus kiemas, kuriame visada rasite vietą automobiliui;
SAUGUMAS:
• Namo saugumas – Visą parą teritorija stebima video kameromis.
• Rakinama labai tvarkinga laiptinė su domofonu;
VIETA IR INFRASTRUKTŪRA:
• Namas randasi ramioje vietoje, šalia miškas
• Patogus susisiekimas tiek visuomeniniu tiek asmeniniu transportu. Šalia viešojo transporto stotelė.
Už ~150 m kursuoja 18 ir 38 maršruto autobusai. ~ 700 m iki troleibusų sustojimo (kursuoja 2,14,19 ir 21 maršrutas)
• Puikus susisiekimas su miesto centru ir kitais Vilniaus miesto rajonais.
• Didelė vaikų žaidimo aikštelė
• Tinklinio aikštelė
• PC „IKI“ ; PC „MAXIMA“
------------------------------------------------------
Ši miesto dalis žavi tuo, kad aplink nėra jokių kitų daugiaaukščių ir gyvenamųjų kvartalų – pravažiuoji modernėjantį, jaunatvišku entuziazmu pulsuojantį Saulėtekio miestelį su kavinukėmis, moderniomis bibliotekomis – dar keli šimtai metrų ir tu – miškų zonoje – pabėgai iš miesto, papuolei į kitą erdvę – „stress free zone“ (jokio streso).
Jei iškilo klausimų dėl šio būsto, ar tiesiog norite pasitarti dėl nekilnojamojo turto, skambinkite:
VAIVA KELEČIENĖ
Mob. +370 688 57 032
www.brokereNT.lt
JOKIO TARPININKAVIMO MOKESČIO NĖRA !!!
PASIRAŠOMA NUOMOS SUTARTIS;
• VITRININIAI ATIDAROMI LANGAI Į PUŠYNĄ LEIS MĖGAUTIS RYTINE KAVA, AR VAKARE MĖGAUTIS RAMYBE, PAUKŠČIŲ ČIULBĖJIMU IR GRYNU ORU;
• IDEALI VIETA SPORTUOJANTIEMS , MĖGSTANTIEMS GRYBAUTI IR UOGAUTI;
• NETOLI MIESTO CENTRAS AR PAGRINDINIAI PREKYBOS CENTRAI, MOKYKLOS, DARŽELIAI...
• IDEALIOS SĄLYGOS MĖGSTANTIEMS GAMTĄ, AKTYVŲ GYVENIMO BŪDĄ – ŠALIA NAMŲ MIŠKAI, TAKELIAI BĖGIOJIMUI, DVIRAČIAMS, ŽYGIAMS.
BENDRA INFORMACIJA
Adresas: Plytinės g. 29, Vilnius (Antakalnis)
Bendras plotas: 73,28 kv. m;
Aukštai: 1 iš 6;
Kambarių sk.: 2;
Namo tipas: mūrinis;
Šildymas: Centrinis kolektorinis su individualia apskaita;
Statybos m. 2006 m.;
Įrengimas – Pilnai įrengtas
KAMBARIŲ APDAILA IR ĮRENGIMAS:
Grindys – natūralaus medžio parketinė grindų danga, vonioje ir koridoriuje – šildomomis plytelėmis
Sienos -- dažytos
Langai -- plastikiniai orientuoti į pušyno rytinę pusę ir vakarinę virtuvės langas.
Įėjimo į butą durys -- šarvo tipo; vidaus- medinės durys.
Svetainėje: minkšta odinė sofa;
Miegamajame: dvigulė lova, erdvi sieninė spinta;
Prieškambaryje: erdvi DRABUŽINĖ.
BUITINĖ TECHNIKA
Gartraukis, šaldytuvas, indaplovė, stiklo keramikos kaitlentė, orkaitė, skalbimo mašina.
PATALPŲ APRAŠYMAS:
• Svetainė ir virtuvė - 47,47 kv.m
• Miegamasis - 13,19 kv.m
• Vonios kambarys su WC - 6,16 kv.m
• Drabužinė su holu – 6,46 kv.m
KOMUNIKACIJOS IR KITA INFORMACIJA:
Šildymas (Centrinis kolektorinis su individualia apskaita, skaitikliu ). (šalčiausiu metu ~ 85 Eur.)
Elektra (yra naktinis ir dieninis tarifas) - mokesčiai priklauso nuo suvartojamo kiekio.
Į butą atvestos visos pagrindinės komunikacijos – internetas, kabelinė televizija.
Namą administruoja (“ADMI”) – papildomi mokesčiai mėnesiui apie 55 Eur. (gyva apsauga ~15Eur.; ir kt. paslaugos);
PARKAVIMAS
• Erdvus kiemas, kuriame visada rasite vietą automobiliui;
SAUGUMAS:
• Namo saugumas – Visą parą teritorija stebima video kameromis.
• Rakinama labai tvarkinga laiptinė su domofonu;
VIETA IR INFRASTRUKTŪRA:
• Namas randasi ramioje vietoje, šalia miškas
• Patogus susisiekimas tiek visuomeniniu tiek asmeniniu transportu. Šalia viešojo transporto stotelė.
Už ~150 m kursuoja 18 ir 38 maršruto autobusai. ~ 700 m iki troleibusų sustojimo (kursuoja 2,14,19 ir 21 maršrutas)
• Puikus susisiekimas su miesto centru ir kitais Vilniaus miesto rajonais.
• Didelė vaikų žaidimo aikštelė
• Tinklinio aikštelė
• PC „IKI“ ; PC „MAXIMA“
------------------------------------------------------
Ši miesto dalis žavi tuo, kad aplink nėra jokių kitų daugiaaukščių ir gyvenamųjų kvartalų – pravažiuoji modernėjantį, jaunatvišku entuziazmu pulsuojantį Saulėtekio miestelį su kavinukėmis, moderniomis bibliotekomis – dar keli šimtai metrų ir tu – miškų zonoje – pabėgai iš miesto, papuolei į kitą erdvę – „stress free zone“ (jokio streso).
Jei iškilo klausimų dėl šio būsto, ar tiesiog norite pasitarti dėl nekilnojamojo turto, skambinkite:
VAIVA KELEČIENĖ
Mob. +370 688 57 032
www.brokereNT.lt

