Įsiminti
Loftas nuomai, Vilnius, Antakalnis, L. Sapiegos g. id:551486 3 kmb.
2 100 € / mėn.
15,91 €/m²
Įsiminė
0
Parodymai
Šiandien: 105
Viso: 1379
Peržiūros
Šiandien: 4
Viso: 193
Objekto informacija
REKLAMA
REKLAMA
Aprašymas
IŠSKIRTINIS BUTAS-LOFTAS ANTAKALNYJE – ERDVĖ, ŠVIESA IR ARCHITEKTŪRINIS CHARAKTERIS
L. Sapiegos gatvėje, Antakalnio širdyje, nuomojamas išskirtinio dizaino 3 kambarių loftas – tai erdvi, šviesi ir charakteringa erdvė, sukurta tiems, kurie vertina architektūrinį savitumą, šiuolaikinį patogumą ir panoraminius vaizdus.
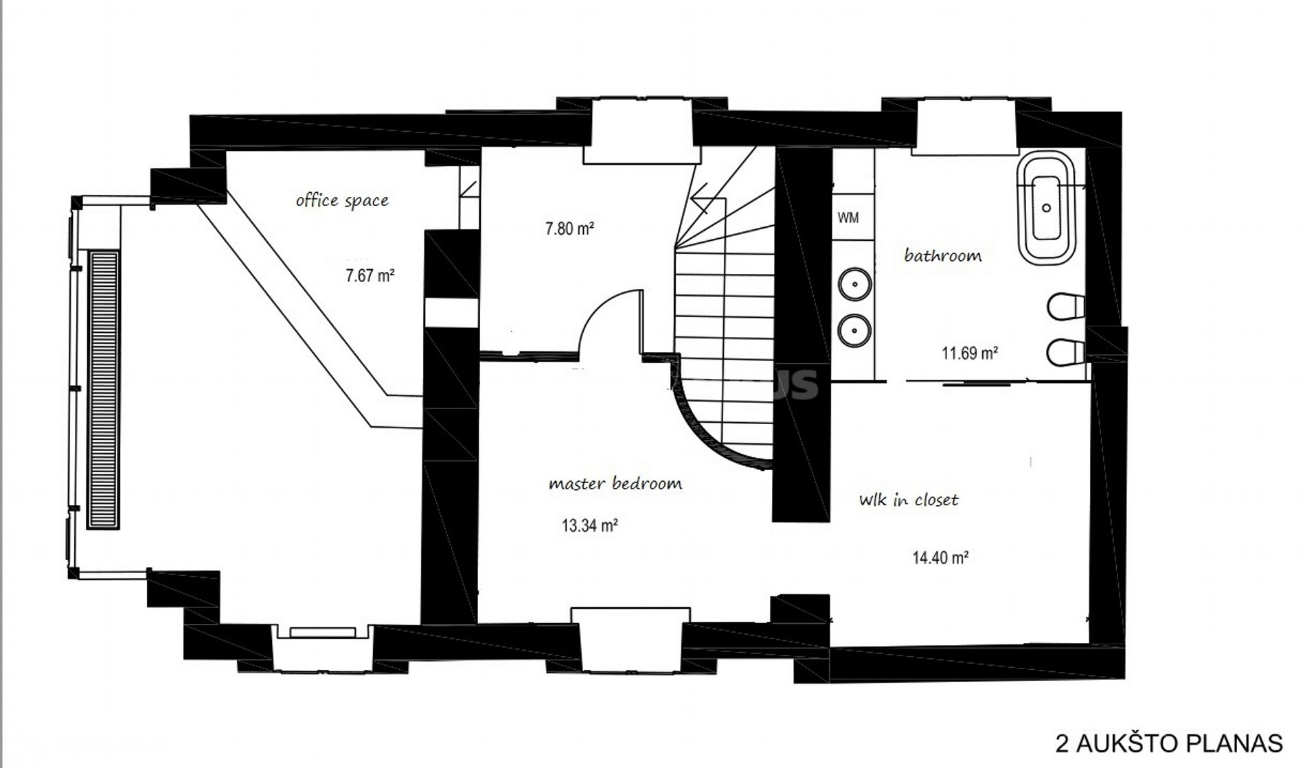
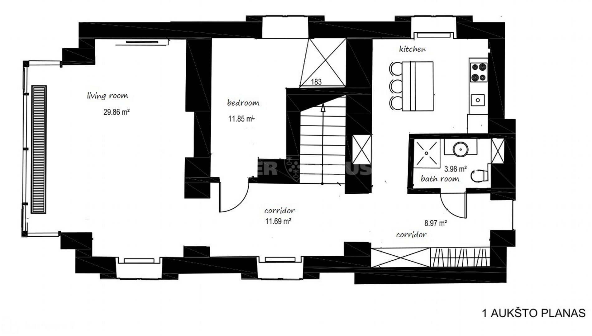
Butas įsikūręs rekonstruotame istoriniame pastate (rekonstrukcija – 2005 m.), trečiame aukšte. Net 132 kv. m ploto erdvė su beveik 5 metrų aukščio lubomis svetainėje – tai išskirtinis pojūtis kiekvieną dieną.
ERDVĖ JŪSŲ GYVENIMUI:
• Erdvi svetainė su įspūdingais vitrininiais langais ir aukštomis lubomis
• Atskira virtuvė su valgomojo zona
• Du uždari miegamieji kambariai
• Darbo zona – patogu dirbantiems iš namų
• Du vonios kambariai: (viename – dušas ir tualetas, kitame – vonia ir tualetas)
• Drabužinė – daugiau vietos patogiam gyvenimui
KOMFORTAS IR KOKYBĖ:
• Autonominis dujinis šildymas – patogus ir ekonomiškas sprendimas
• Dideli langai – vakarinė saulė ir vaizdai į bažnyčią bei parką
• Aukštos lubos ir atviras aukštis svetainėje – išskirtinis erdvės pojūtis
• Nuomojamas tik su virtuvės baldais ir buitine technika: šaldytuvas su šaldikliu, orkaitė, indaplovė, gartraukis, skalbimo ir džiovinimo mašinos
• Privati automobilio stovėjimo vieta
PAGRINDINĖ INFORMACIJA:
• Plotas: 132 kv. m
• Kambariai: 3 + darbo zona
• Aukštas: 3 / 3
• Šildymas: autonominis, dujinis
• Parkavimas: privati vieta
PRIVALUMAI:
• Išskirtinis dizainas ir architektūra
• Šviesus, vakarinės saulės pripildytas interjeras
• Itin aukštos lubos ir erdvūs kambariai
• Rami vieta Antakalnyje – šalia parkai, kultūros paveldas
• Privatumas – nedaug kaimynų
• Vaizdas į bažnyčią ir žaliąją aplinką
Jei ieškote namų, kurie būtų daugiau nei tik gyvenamoji vieta – kviečiame apžiūrai!
-- Objekto nr. Ober-Haus tinklapyje www.ober-haus.lt/OH438054
Profesionali pagalba parduodant, nuomojant ir įsigyjant nekilnojamąjį turtą:
- Sandoriui reikalingų dokumentų analizė prieš pardavimą;
- Preliminariųjų, rezervavimo sutarčių, priėmimo-perdavimo aktų ir kitų sutarties priedų bei dokumentų parengimas apsaugant jūsų interesus;
- Efektyvi ir itin platų pirkėjų ratą apimanti rinkodara ir marketingo priemonės, pirkėjų srauto monitoringas;
- Jūsų interesų atstovavimas derybose, sutarčių derinime;
- Konsultavimas mokestiniais, juridiniais klausimais.
L. Sapiegos gatvėje, Antakalnio širdyje, nuomojamas išskirtinio dizaino 3 kambarių loftas – tai erdvi, šviesi ir charakteringa erdvė, sukurta tiems, kurie vertina architektūrinį savitumą, šiuolaikinį patogumą ir panoraminius vaizdus.
Butas įsikūręs rekonstruotame istoriniame pastate (rekonstrukcija – 2005 m.), trečiame aukšte. Net 132 kv. m ploto erdvė su beveik 5 metrų aukščio lubomis svetainėje – tai išskirtinis pojūtis kiekvieną dieną.
ERDVĖ JŪSŲ GYVENIMUI:
• Erdvi svetainė su įspūdingais vitrininiais langais ir aukštomis lubomis
• Atskira virtuvė su valgomojo zona
• Du uždari miegamieji kambariai
• Darbo zona – patogu dirbantiems iš namų
• Du vonios kambariai: (viename – dušas ir tualetas, kitame – vonia ir tualetas)
• Drabužinė – daugiau vietos patogiam gyvenimui
KOMFORTAS IR KOKYBĖ:
• Autonominis dujinis šildymas – patogus ir ekonomiškas sprendimas
• Dideli langai – vakarinė saulė ir vaizdai į bažnyčią bei parką
• Aukštos lubos ir atviras aukštis svetainėje – išskirtinis erdvės pojūtis
• Nuomojamas tik su virtuvės baldais ir buitine technika: šaldytuvas su šaldikliu, orkaitė, indaplovė, gartraukis, skalbimo ir džiovinimo mašinos
• Privati automobilio stovėjimo vieta
PAGRINDINĖ INFORMACIJA:
• Plotas: 132 kv. m
• Kambariai: 3 + darbo zona
• Aukštas: 3 / 3
• Šildymas: autonominis, dujinis
• Parkavimas: privati vieta
PRIVALUMAI:
• Išskirtinis dizainas ir architektūra
• Šviesus, vakarinės saulės pripildytas interjeras
• Itin aukštos lubos ir erdvūs kambariai
• Rami vieta Antakalnyje – šalia parkai, kultūros paveldas
• Privatumas – nedaug kaimynų
• Vaizdas į bažnyčią ir žaliąją aplinką
Jei ieškote namų, kurie būtų daugiau nei tik gyvenamoji vieta – kviečiame apžiūrai!
-- Objekto nr. Ober-Haus tinklapyje www.ober-haus.lt/OH438054
Profesionali pagalba parduodant, nuomojant ir įsigyjant nekilnojamąjį turtą:
- Sandoriui reikalingų dokumentų analizė prieš pardavimą;
- Preliminariųjų, rezervavimo sutarčių, priėmimo-perdavimo aktų ir kitų sutarties priedų bei dokumentų parengimas apsaugant jūsų interesus;
- Efektyvi ir itin platų pirkėjų ratą apimanti rinkodara ir marketingo priemonės, pirkėjų srauto monitoringas;
- Jūsų interesų atstovavimas derybose, sutarčių derinime;
- Konsultavimas mokestiniais, juridiniais klausimais.
Nuotraukos
