Įsiminti
Butas pardavimui, Vilnius, Užupis, Filaretų g. id:1028290 3 kmb.
780 000 €
6 610 €/m²
REKLAMA
Įmoka
2 940 €/mėn

Paskola 663 000 €
Palūkanos 3.40%
Trukmė 30 metų
Įsiminė
0
Parodymai
Šiandien: 1438
Viso: 2261
Peržiūros
Šiandien: 11
Viso: 75
Objekto informacija
REKLAMA
REKLAMA
Aprašymas
Parduodamas išskirtinis, 118 kv. m ploto trijų kambarių butas su kerinčia 119 kv. m terasa, iš kurios atsiveria nuostabūs Senamiesčio ir Užupio vaizdai. Šis butas sužavės išskirtiniu dizainu, kokybišku ir funkcionaliu išplanavimu.
Butas įsikūręs prestižinėje Užupio bohemiškoje respublikoje, apsuptas žaliuojančių daugiamečių medžių. Tai vieta, kur susipina istorija, menas ir ramybė.
Įsivaizduokite rytus, kai kavą geri terasoje, iš kurios atsiveria kvapą gniaužiantys Senamiesčio ir Užupio vaizdai. Tai ne tik namai, tai gyvenimo būdas.
Šis būstas puikiai tiks tiems, kurie mėgsta miesto ritmą, bet vertina privatumą ir ramybę.
Butui priklauso viena parkavimo vieta (už papildomą 30 000 Eur mokestį) ir sandėliukas — dovana pirkėjui.
BUTO PRIVALUMAI:
• Viršutinis aukštas su privačia, išskirtine terasa
• Funkcionalus išplanavimas
• Šviesus butas — langai orientuoti į pietų ir rytų puses
• Du sanitariniai mazgai
• Įrengtas kondicionierius
• Solidi kaimynystė
• Įrengta signalizacija
•Parkavimo vieta ir 3,6 kv. m sandėliukas, kuriame galėsite laikyti dviračius ar namų apyvokos daiktus
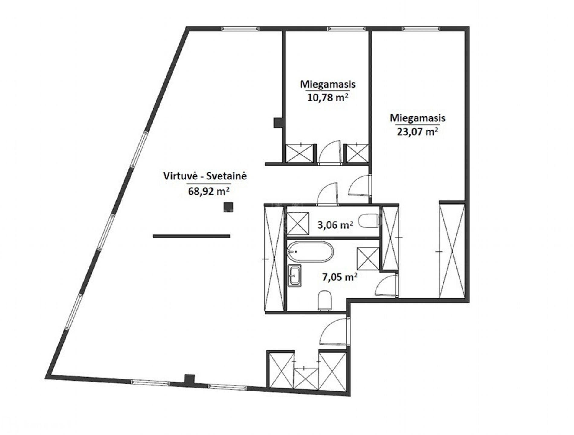
IŠPLANAVIMAS:
• Erdvus prieškambaris su integruotomis spintomis
• Patogi svetainė
• Virtuvės ir valgomojo zona
• Vonios kambarys: dušas, WC, kriauklė
• Vaiko kambarys
• Erdvus pagrindinis miegamasis su sieninėmis spintom
• Karališko dydžio vonios kambarys: vonia, WC, du
• Iš prieškambario pusės medžio masyvo laiptais pateksite į erdvią, vaizdingą terasą
VIETA:
• Strategiškai patogi — puikus susisiekimas su visais miesto rajonais
• Solidi kaimynystė, draugiški kaimynai
• Šalia Vilniaus vaikų lopšelis-darželis „Užupiukas“ — rami ir patogi vieta šeimai
-- Objekto nr. Ober-Haus tinklapyje www.ober-haus.lt/OH501948
Profesionali pagalba parduodant, nuomojant ir įsigyjant nekilnojamąjį turtą:
- Sandoriui reikalingų dokumentų analizė prieš pardavimą;
- Preliminariųjų, rezervavimo sutarčių, priėmimo-perdavimo aktų ir kitų sutarties priedų bei dokumentų parengimas apsaugant jūsų interesus;
- Efektyvi ir itin platų pirkėjų ratą apimanti rinkodara ir marketingo priemonės, pirkėjų srauto monitoringas;
- Jūsų interesų atstovavimas derybose, sutarčių derinime;
- Konsultavimas mokestiniais, juridiniais klausimais.
Butas įsikūręs prestižinėje Užupio bohemiškoje respublikoje, apsuptas žaliuojančių daugiamečių medžių. Tai vieta, kur susipina istorija, menas ir ramybė.
Įsivaizduokite rytus, kai kavą geri terasoje, iš kurios atsiveria kvapą gniaužiantys Senamiesčio ir Užupio vaizdai. Tai ne tik namai, tai gyvenimo būdas.
Šis būstas puikiai tiks tiems, kurie mėgsta miesto ritmą, bet vertina privatumą ir ramybę.
Butui priklauso viena parkavimo vieta (už papildomą 30 000 Eur mokestį) ir sandėliukas — dovana pirkėjui.
BUTO PRIVALUMAI:
• Viršutinis aukštas su privačia, išskirtine terasa
• Funkcionalus išplanavimas
• Šviesus butas — langai orientuoti į pietų ir rytų puses
• Du sanitariniai mazgai
• Įrengtas kondicionierius
• Solidi kaimynystė
• Įrengta signalizacija
•Parkavimo vieta ir 3,6 kv. m sandėliukas, kuriame galėsite laikyti dviračius ar namų apyvokos daiktus
IŠPLANAVIMAS:
• Erdvus prieškambaris su integruotomis spintomis
• Patogi svetainė
• Virtuvės ir valgomojo zona
• Vonios kambarys: dušas, WC, kriauklė
• Vaiko kambarys
• Erdvus pagrindinis miegamasis su sieninėmis spintom
• Karališko dydžio vonios kambarys: vonia, WC, du
• Iš prieškambario pusės medžio masyvo laiptais pateksite į erdvią, vaizdingą terasą
VIETA:
• Strategiškai patogi — puikus susisiekimas su visais miesto rajonais
• Solidi kaimynystė, draugiški kaimynai
• Šalia Vilniaus vaikų lopšelis-darželis „Užupiukas“ — rami ir patogi vieta šeimai
-- Objekto nr. Ober-Haus tinklapyje www.ober-haus.lt/OH501948
Profesionali pagalba parduodant, nuomojant ir įsigyjant nekilnojamąjį turtą:
- Sandoriui reikalingų dokumentų analizė prieš pardavimą;
- Preliminariųjų, rezervavimo sutarčių, priėmimo-perdavimo aktų ir kitų sutarties priedų bei dokumentų parengimas apsaugant jūsų interesus;
- Efektyvi ir itin platų pirkėjų ratą apimanti rinkodara ir marketingo priemonės, pirkėjų srauto monitoringas;
- Jūsų interesų atstovavimas derybose, sutarčių derinime;
- Konsultavimas mokestiniais, juridiniais klausimais.
Nuotraukos








































