Įsiminti
Butas pardavimui, Vilnius, Šnipiškės, Daugėliškio g. id:1035743 3 kmb.
305 000 €
4 420 €/m²
REKLAMA
Įmoka
1 150 €/mėn
Paskola 259 250 €
Palūkanos 3.40%
Trukmė 30 metų
Įsiminė
0
Parodymai
Šiandien: 20
Viso: 14941
Peržiūros
Šiandien: 10
Viso: 1656
Objekto informacija
Papildoma įranga
Aprašymas
Parduodamas funkcionaliai išplanuotas 3 kambarių butas su jaukia lodžija, Šnipiškėse, Daugėliškio g. 33, Vilniuje.
BUTAS SU PILNA APDAILA, todėl Jums beliks tik pasirūpinti maloniausia naujakurių dalimi - buto apstatymu baldais ir buitine technika!
Vidinis kiemas be parkavimo aikštelių, todėl po langais nebus jokių automobilių garsų. Saugi kaimynystė.
Parduodamo buto langai orientuoti į rytų pusę ir vakarų puses.
_________________________________________________________________
APIE PROJEKTĄ:
"K17" - tai modernus ir šiuolaikiškas daugiabučių namų ir komercinių patalpų projektas šalia Vilniaus centro, Daugėliškio gatvėje, viename sparčiausiai besivystančių Vilniaus mikrorajonų, Šnipiškėse.
Butas strategiškai itin patogioje vietoje, naujakuriams nekils rūpesčių dėl susisiekimo su miesto centru. Čia puikiai išvystyta infrastruktūra, patogus susisiekimas tiek nuosavu automobiliu, tiek viešuoju transportu. Be vargo daugelį objektų ir vaizdingų maršrutų pasieksite ir pėsčiomis. Namo aplinkos gerbūvis pilnai sutvarkytas, įrengtas kiemas su žaliosiomis zonomis bei vaikų žaidimo aikštelėmis.
Galbūt, tai Jūsų ieškomas būstas, pasižvalgykite!
_________________________________________________________________________
DETALI PARDUODAMO BUTO INFORMACIJA:
- Namo statybos metai: 2023 m.
- Buto paskirtis: gyvenamoji.
- Įrengimas: pilna apdaila.
- Baigtumas: 100%.
- Adresas: Daugėliškio g. 33, Vilnius.
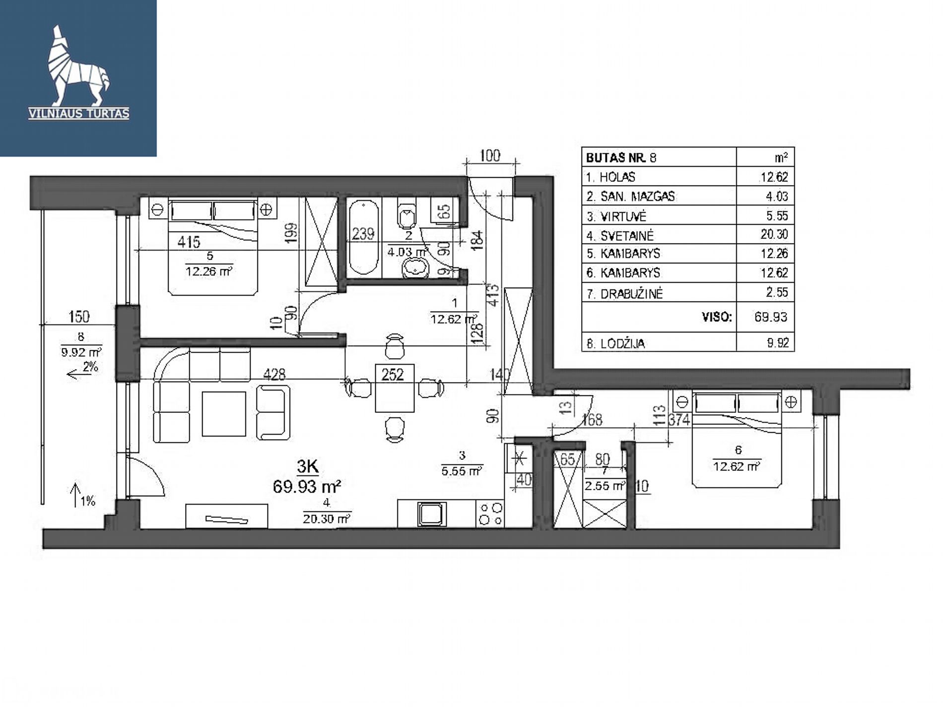
- Buto Nr. 8.
- Aukštas: 2 iš 7.
- Kambarių skaičius: 3.
- Bendras plotas: 69,93 m².:
- Holas: 12,62 m².
- San. mazgas: 4,03 m².
- Virtuvė: 5,55 m².
- Svetainė: 20,30 m².
- Kambarys: 12,26 m².
- Kambarys: 12,62 m².
- Tamsus kambariukas/ drabužinė: 2,55 m².
- Lodžija 9,92 m². (lodžija neįtraukta į bendrą buto plotą!)
_________________________________________________________________________
Esant poreikiui papildomai galite įsigyti požemines automobilių stovėjimo vietas po namu esančioje uždaroje parkavimo aikštelėje.
Taip pat yra galimybė įsigyti požeminėje automobilių stovėjimo aikštelėje esančius sandėliukus.
_________________________________________________________________________
Kviečiu susitikti ir apžiūrėti šį butą!
NT Brokerė
Daiva Gudinovič
+370 600 50554
[email protected]
www.vilniaus-turtas.lt/brokeris/daiva-gudinovic
BUTAS SU PILNA APDAILA, todėl Jums beliks tik pasirūpinti maloniausia naujakurių dalimi - buto apstatymu baldais ir buitine technika!
Vidinis kiemas be parkavimo aikštelių, todėl po langais nebus jokių automobilių garsų. Saugi kaimynystė.
Parduodamo buto langai orientuoti į rytų pusę ir vakarų puses.
_________________________________________________________________
APIE PROJEKTĄ:
"K17" - tai modernus ir šiuolaikiškas daugiabučių namų ir komercinių patalpų projektas šalia Vilniaus centro, Daugėliškio gatvėje, viename sparčiausiai besivystančių Vilniaus mikrorajonų, Šnipiškėse.
Butas strategiškai itin patogioje vietoje, naujakuriams nekils rūpesčių dėl susisiekimo su miesto centru. Čia puikiai išvystyta infrastruktūra, patogus susisiekimas tiek nuosavu automobiliu, tiek viešuoju transportu. Be vargo daugelį objektų ir vaizdingų maršrutų pasieksite ir pėsčiomis. Namo aplinkos gerbūvis pilnai sutvarkytas, įrengtas kiemas su žaliosiomis zonomis bei vaikų žaidimo aikštelėmis.
Galbūt, tai Jūsų ieškomas būstas, pasižvalgykite!
_________________________________________________________________________
DETALI PARDUODAMO BUTO INFORMACIJA:
- Namo statybos metai: 2023 m.
- Buto paskirtis: gyvenamoji.
- Įrengimas: pilna apdaila.
- Baigtumas: 100%.
- Adresas: Daugėliškio g. 33, Vilnius.
- Buto Nr. 8.
- Aukštas: 2 iš 7.
- Kambarių skaičius: 3.
- Bendras plotas: 69,93 m².:
- Holas: 12,62 m².
- San. mazgas: 4,03 m².
- Virtuvė: 5,55 m².
- Svetainė: 20,30 m².
- Kambarys: 12,26 m².
- Kambarys: 12,62 m².
- Tamsus kambariukas/ drabužinė: 2,55 m².
- Lodžija 9,92 m². (lodžija neįtraukta į bendrą buto plotą!)
_________________________________________________________________________
Esant poreikiui papildomai galite įsigyti požemines automobilių stovėjimo vietas po namu esančioje uždaroje parkavimo aikštelėje.
Taip pat yra galimybė įsigyti požeminėje automobilių stovėjimo aikštelėje esančius sandėliukus.
_________________________________________________________________________
Kviečiu susitikti ir apžiūrėti šį butą!
NT Brokerė
Daiva Gudinovič
+370 600 50554
[email protected]
www.vilniaus-turtas.lt/brokeris/daiva-gudinovic

