Įsiminti
Butas pardavimui, Vilnius, Rasos, Gardino g. id:945202 4 kmb.
350 592 €
4 803 €/m²
REKLAMA
Įmoka
1 322 €/mėn
Paskola 298 003 €
Palūkanos 3.40%
Trukmė 30 metų
Įsiminė
0
Parodymai
Šiandien: 31
Viso: 3089
Peržiūros
Šiandien: 6
Viso: 141
Objekto informacija
Aprašymas
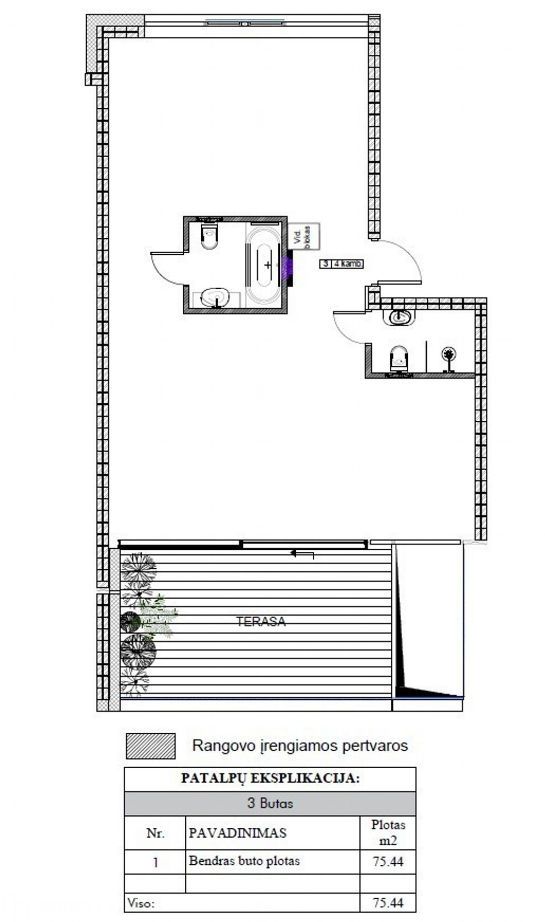
Parduodamas 2024 m. statybos, 3-4 kambarių, 73,04 kv.m. butas su 20 kv.m. terasa į rytinę pusę Rasose, naujame projekte Gardino g. 22. Butas parduodamas su daline apdaila. 2 aukštas. Kryptys vakarai/rytai. Lubų aukštis 295-315cm.
Gardino 22 naujas projektas Rasose, nedidelėje gatvelėje, kurioje kiemelius apgaubia ir į namus darniai įsilieja gabalėlis miško.
Sukurtas tvariai ir su didele pagarba aplinkai, nedidelis 15 butų daugiabutis, sukurtas žmogui norinčiam kurti ryšį su gamta, kaimynais.
Vilniaus architektūros studijos architektų sukurti namai, skirti šiuolaikiniams estetams.
Būsimieji gyventojai jau dabar turi galimybę rinktis 3-jų ir 4-ių, bei 5-ių kambarių butus nuo 70 kv.m. iki 148 kv.m. Daugelyje butų yra numatoma įrengti antresoles.
PROJEKTO IŠKIRTINUMAS IR PRIVALUMAI:
Patogi lokacija mieste. Šalia senamiestis. Ribiškių parkas.
Daug žalumos. Miškas sklype.
Mažaaukštis, tvarios architektūros namas.
Mažas butų skaičius name, laiptinėje.
Name tik 4-5 kambarių butai.
Erdvios terasos.
Aukštos lubos (290 – 470 cm).
Autonominis šildymas / vėsinimas / vėdinimas.
A+ energetinė klasė.
Akustinio komforto klasė – C.
Dvipusė / tripusė orientacija pasaulio šalių atžvilgiu.
Erdvi parkavimo aikštelė po namu.
Namo administratorius ir teritorijos priežiūra
-- Objekto nr. Ober-Haus tinklapyje www.ober-haus.lt/OH479671
Profesionali pagalba parduodant, nuomojant ir įsigyjant nekilnojamąjį turtą:
- Sandoriui reikalingų dokumentų analizė prieš pardavimą;
- Preliminariųjų, rezervavimo sutarčių, priėmimo-perdavimo aktų ir kitų sutarties priedų bei dokumentų parengimas apsaugant jūsų interesus;
- Efektyvi ir itin platų pirkėjų ratą apimanti rinkodara ir marketingo priemonės, pirkėjų srauto monitoringas;
- Jūsų interesų atstovavimas derybose, sutarčių derinime;
- Konsultavimas mokestiniais, juridiniais klausimais.
Gardino 22 naujas projektas Rasose, nedidelėje gatvelėje, kurioje kiemelius apgaubia ir į namus darniai įsilieja gabalėlis miško.
Sukurtas tvariai ir su didele pagarba aplinkai, nedidelis 15 butų daugiabutis, sukurtas žmogui norinčiam kurti ryšį su gamta, kaimynais.
Vilniaus architektūros studijos architektų sukurti namai, skirti šiuolaikiniams estetams.
Būsimieji gyventojai jau dabar turi galimybę rinktis 3-jų ir 4-ių, bei 5-ių kambarių butus nuo 70 kv.m. iki 148 kv.m. Daugelyje butų yra numatoma įrengti antresoles.
PROJEKTO IŠKIRTINUMAS IR PRIVALUMAI:
Patogi lokacija mieste. Šalia senamiestis. Ribiškių parkas.
Daug žalumos. Miškas sklype.
Mažaaukštis, tvarios architektūros namas.
Mažas butų skaičius name, laiptinėje.
Name tik 4-5 kambarių butai.
Erdvios terasos.
Aukštos lubos (290 – 470 cm).
Autonominis šildymas / vėsinimas / vėdinimas.
A+ energetinė klasė.
Akustinio komforto klasė – C.
Dvipusė / tripusė orientacija pasaulio šalių atžvilgiu.
Erdvi parkavimo aikštelė po namu.
Namo administratorius ir teritorijos priežiūra
-- Objekto nr. Ober-Haus tinklapyje www.ober-haus.lt/OH479671
Profesionali pagalba parduodant, nuomojant ir įsigyjant nekilnojamąjį turtą:
- Sandoriui reikalingų dokumentų analizė prieš pardavimą;
- Preliminariųjų, rezervavimo sutarčių, priėmimo-perdavimo aktų ir kitų sutarties priedų bei dokumentų parengimas apsaugant jūsų interesus;
- Efektyvi ir itin platų pirkėjų ratą apimanti rinkodara ir marketingo priemonės, pirkėjų srauto monitoringas;
- Jūsų interesų atstovavimas derybose, sutarčių derinime;
- Konsultavimas mokestiniais, juridiniais klausimais.
Nuotraukos
