Įsiminti
Butas pardavimui, Vilnius, Naujininkai, Zanavykų g. id:1029557 1 kmb.
63 000 €
2 250 €/m²
REKLAMA
Įmoka
237 €/mėn

Paskola 53 550 €
Palūkanos 3.40%
Trukmė 30 metų
Įsiminė
0
Parodymai
Šiandien: 145
Viso: 725
Peržiūros
Šiandien: 9
Viso: 43
Objekto informacija
Papildoma įranga
Apsauga
REKLAMA
REKLAMA
Aprašymas
IŠSKIRTINĖ ERDVĖ, KUR GALITE GYVENTI KITAIP!
Parduodamas butas - kūrybinės dirbtuvės - su langais, vos keli žingsniai nuo Vilniaus centro, Zanavykų g. 5. Natūrali šviesa ir unikalus išplanavimas leidžia šią vietą pritaikyti ne tik darbui, bet ir gyvenimui. Tai gali tapti Jūsų:
• stilingu lofto tipo butu,
• jaukia miesto slėptuve,
• arba kūrybine namų erdve.
BENDRA INFORMACIJA:
• Adresas: Zanavykų g. 5, Vilnius;
• Buto bendras plotas – 28,74 kv.m;
• Statybos metai – 1959 m.;
• Namo tipas – mūrinis;
• Šildymas – nėra (visos namo šildymo trasos eina greta, labai šiltas butas be jokio mokesčio);
• Kambarių skaičius – 1;
• Aukštas – 0/4;
• Butas pilnai suremontuotas, kapitalinis remontas.
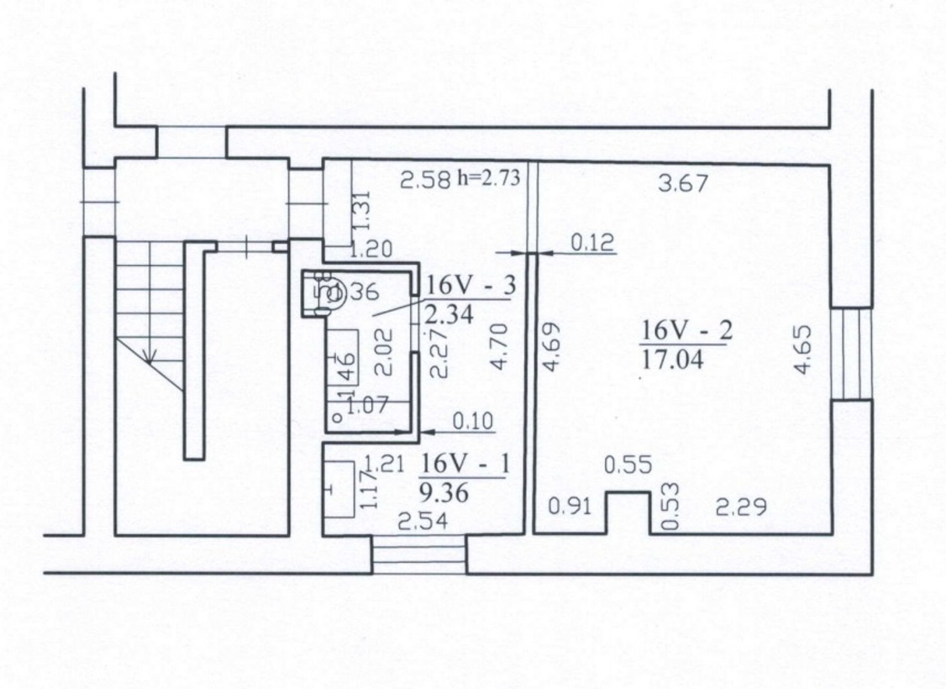
BUTO IŠPLANAVIMAS:
• Koridorius – 5,90 kv.m.;
• Kambarys – 17,04 kv.m.;
• Virtuvė – 9,36 kv.m.;
• San.mazgas – 2,02 kv.m..
BUTO PRIVALUMAI:
• Butas turi net 2 langus;
• Langai – plastikiniai;
• Langų kryptis į vidinį kiemą bei namo šoninę sieną;
• Butas turi ir san.mazgą ir virtuvėlę;
• Individualus įėjimas į butą;
• Įėjimo durys – šarvuotos;
• Individualūs vandens bei elektros skaitliukai;
• Tvarkinga laiptinė;
• Kieme daug žalumos;
• Erdvus kiemas, kuriame visada rasite vietą savo automobiliui;
• Gerai išvystyta infrastruktūra: šalia viešojo transporto stotelė, mokyklos, vaikų darželiai, parduotuvės, gydymo įstaigos;
• Strategiškai patogi vieta, šalia oro uostas, senamiestis, prekybos centrai, geležinkelio ir autobusų stotys.
INFRASTRUKTŪRA IR SUSISIEKIMAS:
• Puikus susisiekimas su Vilniaus Senamiesčiu ir Centru ne tik transportu, bet ir pėsčiomis;
• Per pėsčiųjų tiltą lengvai ir greitai pasieksite visus miesto autobusus, važiuojančius iš stoties;
• Aplink daug žalumos, daug pasivaikščiojimo vietų;
• 0,14 km. - AIBĖ;
• 0.20 km. - Panevėžio st.;
• 0.75 km. - Geležinkelio stotis.;
• 1.7 km. - atstumas iki Rotušės;
• 3.3 km. - atstumas iki oro uosto.
Skambinti galite Jums patogiu laiku telefonu +370 654 44445
CAPITAL TEAM brokerė Marija Damaševičiūtė Visus naujausius CAPITAL nekilnojamojo turto skelbimus rasite mūsų internetiniame puslapyje www.capital.lt. Kviečiame apsilankyti!
Profesionali pagalba parduodant, nuomojant ir įsigyjant nekilnojamąjį turtą:
- Sandoriui reikalingų dokumentų analizė prieš pardavimą;
- Preliminariųjų, rezervavimo sutarčių, priėmimo-perdavimo aktų ir kitų sutarties priedų bei dokumentų parengimas apsaugant jūsų interesus;
- Efektyvi ir itin platų pirkėjų ratą apimanti rinkodara ir marketingo priemonės, pirkėjų srauto monitoringas;
- Jūsų interesų atstovavimas derybose, sutarčių derinime;
- Kreditavimo pagalba;
- Konsultavimas mokestiniais, juridiniais klausimais.
Marija Damaševičiūtė Capital Team brokerė
+370 654 44445
Parduodamas butas - kūrybinės dirbtuvės - su langais, vos keli žingsniai nuo Vilniaus centro, Zanavykų g. 5. Natūrali šviesa ir unikalus išplanavimas leidžia šią vietą pritaikyti ne tik darbui, bet ir gyvenimui. Tai gali tapti Jūsų:
• stilingu lofto tipo butu,
• jaukia miesto slėptuve,
• arba kūrybine namų erdve.
BENDRA INFORMACIJA:
• Adresas: Zanavykų g. 5, Vilnius;
• Buto bendras plotas – 28,74 kv.m;
• Statybos metai – 1959 m.;
• Namo tipas – mūrinis;
• Šildymas – nėra (visos namo šildymo trasos eina greta, labai šiltas butas be jokio mokesčio);
• Kambarių skaičius – 1;
• Aukštas – 0/4;
• Butas pilnai suremontuotas, kapitalinis remontas.
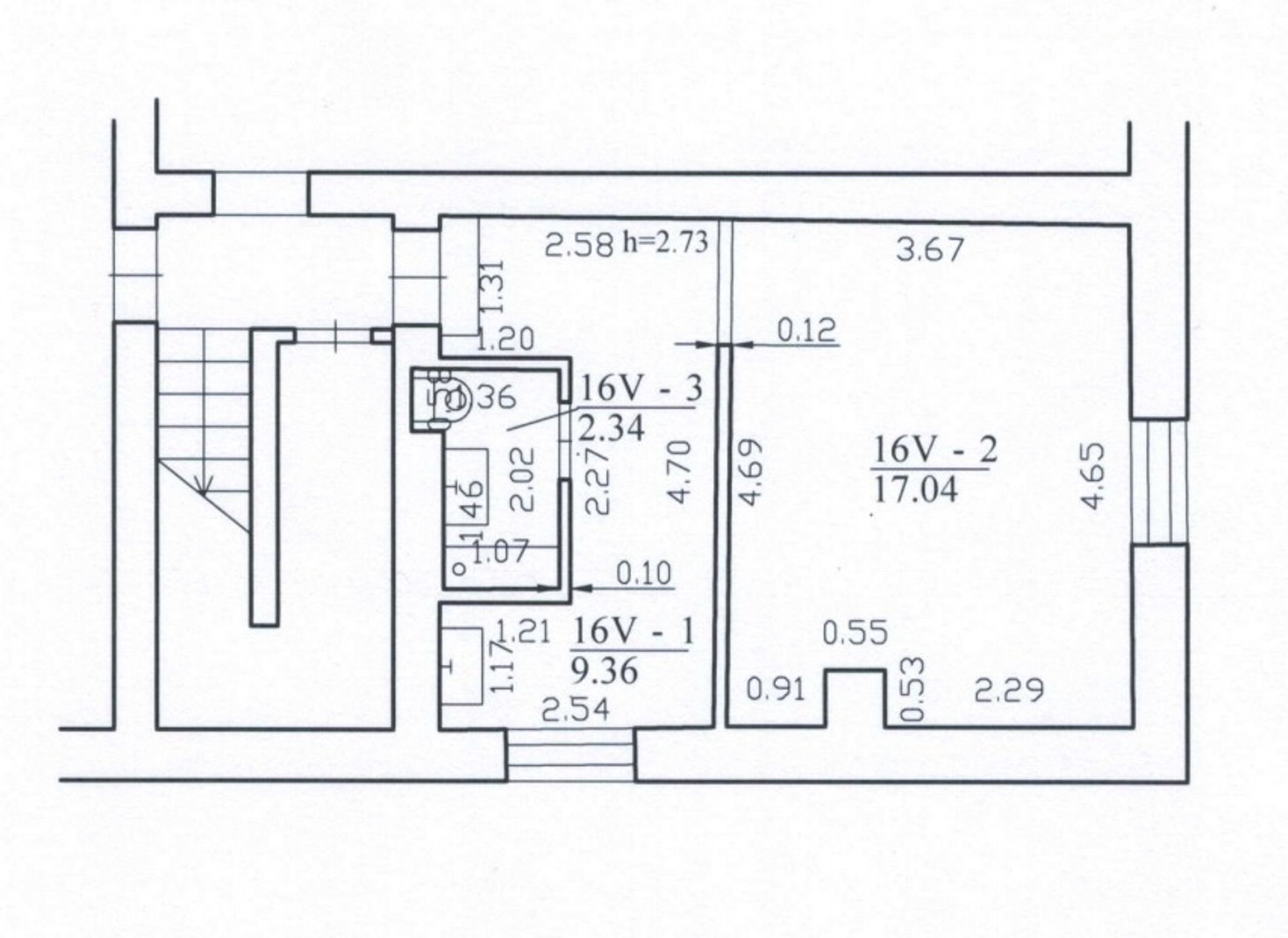
BUTO IŠPLANAVIMAS:
• Koridorius – 5,90 kv.m.;
• Kambarys – 17,04 kv.m.;
• Virtuvė – 9,36 kv.m.;
• San.mazgas – 2,02 kv.m..
BUTO PRIVALUMAI:
• Butas turi net 2 langus;
• Langai – plastikiniai;
• Langų kryptis į vidinį kiemą bei namo šoninę sieną;
• Butas turi ir san.mazgą ir virtuvėlę;
• Individualus įėjimas į butą;
• Įėjimo durys – šarvuotos;
• Individualūs vandens bei elektros skaitliukai;
• Tvarkinga laiptinė;
• Kieme daug žalumos;
• Erdvus kiemas, kuriame visada rasite vietą savo automobiliui;
• Gerai išvystyta infrastruktūra: šalia viešojo transporto stotelė, mokyklos, vaikų darželiai, parduotuvės, gydymo įstaigos;
• Strategiškai patogi vieta, šalia oro uostas, senamiestis, prekybos centrai, geležinkelio ir autobusų stotys.
INFRASTRUKTŪRA IR SUSISIEKIMAS:
• Puikus susisiekimas su Vilniaus Senamiesčiu ir Centru ne tik transportu, bet ir pėsčiomis;
• Per pėsčiųjų tiltą lengvai ir greitai pasieksite visus miesto autobusus, važiuojančius iš stoties;
• Aplink daug žalumos, daug pasivaikščiojimo vietų;
• 0,14 km. - AIBĖ;
• 0.20 km. - Panevėžio st.;
• 0.75 km. - Geležinkelio stotis.;
• 1.7 km. - atstumas iki Rotušės;
• 3.3 km. - atstumas iki oro uosto.
Skambinti galite Jums patogiu laiku telefonu +370 654 44445
CAPITAL TEAM brokerė Marija Damaševičiūtė Visus naujausius CAPITAL nekilnojamojo turto skelbimus rasite mūsų internetiniame puslapyje www.capital.lt. Kviečiame apsilankyti!
Profesionali pagalba parduodant, nuomojant ir įsigyjant nekilnojamąjį turtą:
- Sandoriui reikalingų dokumentų analizė prieš pardavimą;
- Preliminariųjų, rezervavimo sutarčių, priėmimo-perdavimo aktų ir kitų sutarties priedų bei dokumentų parengimas apsaugant jūsų interesus;
- Efektyvi ir itin platų pirkėjų ratą apimanti rinkodara ir marketingo priemonės, pirkėjų srauto monitoringas;
- Jūsų interesų atstovavimas derybose, sutarčių derinime;
- Kreditavimo pagalba;
- Konsultavimas mokestiniais, juridiniais klausimais.
Marija Damaševičiūtė Capital Team brokerė
+370 654 44445
Nuotraukos























