Įsiminti
Butas pardavimui, Vilnius, Naujininkai, Kapsų g. id:1031175 3 kmb.
179 000 €
3 580 €/m²
REKLAMA
Įmoka
675 €/mėn
Paskola 152 150 €
Palūkanos 3.40%
Trukmė 30 metų
Įsiminė
0
Parodymai
Šiandien: 26
Viso: 5415
Peržiūros
Šiandien: 4
Viso: 369
Objekto informacija
Papildoma įranga
Aprašymas
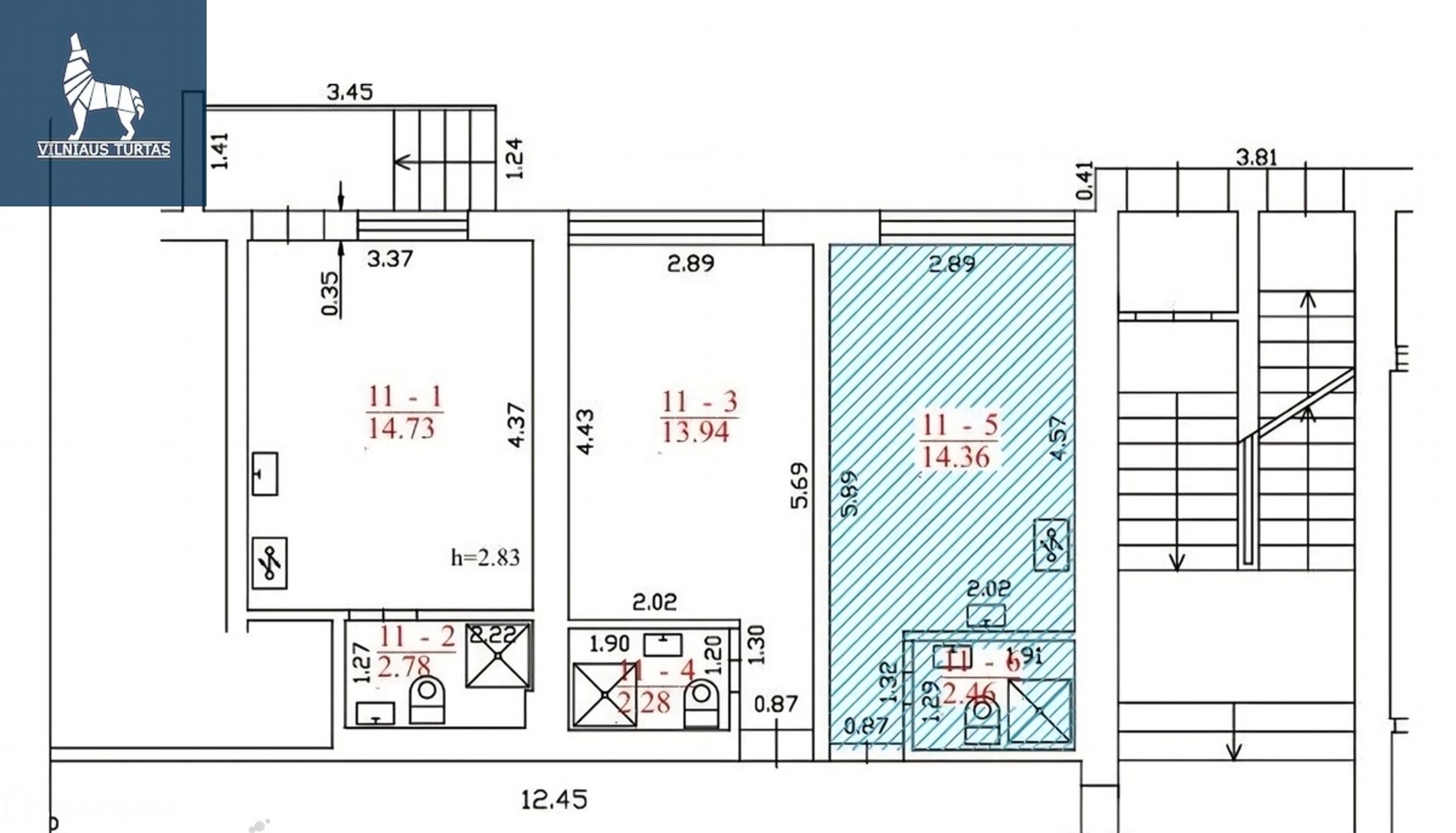
Parduodamos naujai įrengtos 3 studijos Naujininkuose, Kapsų g. Vilniuje – su visais patogumais! Patrauklus pasiūlymas investuotojams.
Kaina: 179 000 € už visas 3 studijas
Bendras plotas: apie 50.55 kv. m (Vienos studijos plotas apie 16kv.m)
Nuomos kaina už vieną studiją 400-440€ (šiuo metu yra nuomuojamos)
Studijos įrengtos prieš metus– viskas nauja, stilinga ir apgalvota iki smulkmenų.
—
🏡 Pagrindinė informacija:
• Plotas – 50.55 kv. m
• Paskirtis- gyvenamoji
• Parduodama su visais baldais ir buitine technika
•Nauja elektros instaliacija, nauja kanalizacija
—
Virtuvė:
• Pilnai įrengtas virtuvės komplektas
• Įmontuota buitinė technika (kaitlentė, gartraukis, ir kt.)
—
Gyvenamoji zona:
• Patogi poilsio erdvė su svetaine ir miegamuoju
• Šiuolaikiškas interjeras, apgalvotas išplanavimas
—
Vonios kambarys:
• Dušas, tualetas
• Skalbyklė – džiovyklė
📍 Vieta:
• Naujininkai, Kapsų 32, – patogus ir strategiškai patrauklus rajonas
• Patogus susisiekimas su centru
• Netoliese prekybos centrai, viešasis transportas
Skambinkite, ar rašykite patogiu laiku :
+37067794725
[email protected]
Kaina: 179 000 € už visas 3 studijas
Bendras plotas: apie 50.55 kv. m (Vienos studijos plotas apie 16kv.m)
Nuomos kaina už vieną studiją 400-440€ (šiuo metu yra nuomuojamos)
Studijos įrengtos prieš metus– viskas nauja, stilinga ir apgalvota iki smulkmenų.
—
🏡 Pagrindinė informacija:
• Plotas – 50.55 kv. m
• Paskirtis- gyvenamoji
• Parduodama su visais baldais ir buitine technika
•Nauja elektros instaliacija, nauja kanalizacija
—
Virtuvė:
• Pilnai įrengtas virtuvės komplektas
• Įmontuota buitinė technika (kaitlentė, gartraukis, ir kt.)
—
Gyvenamoji zona:
• Patogi poilsio erdvė su svetaine ir miegamuoju
• Šiuolaikiškas interjeras, apgalvotas išplanavimas
—
Vonios kambarys:
• Dušas, tualetas
• Skalbyklė – džiovyklė
📍 Vieta:
• Naujininkai, Kapsų 32, – patogus ir strategiškai patrauklus rajonas
• Patogus susisiekimas su centru
• Netoliese prekybos centrai, viešasis transportas
Skambinkite, ar rašykite patogiu laiku :
+37067794725
[email protected]

