Įsiminti
Kotedžas nuomai, Vilnius, Tarandė, Masionių g. id:1029541 5 kmb.
1 550 € / mėn.
10,40 €/m²
Įsiminė
0
Parodymai
Šiandien: 82
Viso: 573
Peržiūros
Šiandien: 4
Viso: 30
Objekto informacija
Papildoma įranga
Apsauga
REKLAMA
REKLAMA
Aprašymas
NUOMOJAMAS ĮRENGTAS 5 KAMBARIŲ KOTEDŽAS TARANDĖJE, MASIONIŲ G.
Laisvas nuo 2025 m. lapkričio 1 d.
Nuomojamas naujas 5 kambarių kotedžas su terasa bei nuosavu kiemu.
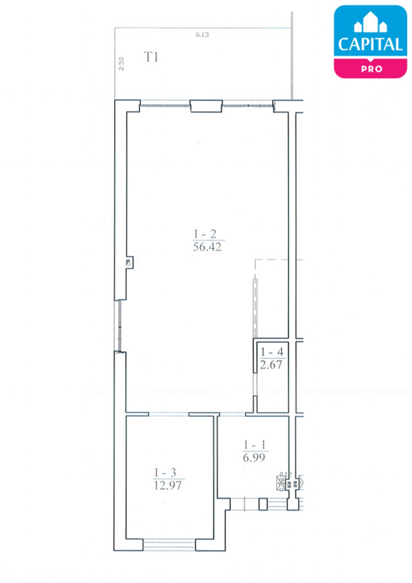
Kotedžas yra funkcionaliai išplanuotas per du aukštus. Pirmajame aukšte - yra svetainė su židiniu, virtuvė bei tualeto kambarys, antrajame - 3 miegamieji, sandėliukas/rūbinė bei erdvus vonios kambarys.
Kotedžas yra nuomojamas kartu su erdvia stovėjimo aikštele, kurioje vienu metu gali tilpti keli automobiliai.
BENDRA INFORMACIJA
• Adresas - Masionių g. 6, Tarandė,
• Plotas - 149.75,
• Kambarių skaičius - 4 + sandėliukas/rūbinė,
• Statybos metai - 2015.
• Šildymas - autonominis (dujinis).
ĮRENGIMAS
• Grindys - kokybiškas laminatas ir plytelės,
• Sienos- dažytos,
• Langai - plastikiniai, orientuoti į Vakarų, Rytų ir Pietų kryptimis;
• Nuomojamas su baldais ir buitine technika.
PATALPŲ IŠDĖSTYMAS
• Pirmame aukšte: svetainė su židiniu, izoliuota virtuvė, tualeto kambarys bei boilerinė.
• Antrame aukšte: trys miegamieji, sandėliukas/ spintos kambarys bei tualetas sujungtas su vonios kambariu.
INFRASTRUKTŪRA
• 1,26 km iki Ukmergės g.
• 297 m iki viešojo transporto stotelės (Tomo Žebrausko, 52 autobusas)
• 2,2 km iki parduotuvės „IKI“
• 3 km iki PC BIG
• 1,6 km iki Vilniaus raj. Avižienių vid. mokyklos
• 1,7 km iki Vilniaus raj. Avižienių vaikų darželio
• 9,23 km iki Vilniaus miesto centro Visus naujausius CAPITAL nekilnojamojo turto skelbimus rasite mūsų internetiniame puslapyje www.capital.lt. Kviečiame apsilankyti!
Laisvas nuo 2025 m. lapkričio 1 d.
Nuomojamas naujas 5 kambarių kotedžas su terasa bei nuosavu kiemu.
Kotedžas yra funkcionaliai išplanuotas per du aukštus. Pirmajame aukšte - yra svetainė su židiniu, virtuvė bei tualeto kambarys, antrajame - 3 miegamieji, sandėliukas/rūbinė bei erdvus vonios kambarys.
Kotedžas yra nuomojamas kartu su erdvia stovėjimo aikštele, kurioje vienu metu gali tilpti keli automobiliai.
BENDRA INFORMACIJA
• Adresas - Masionių g. 6, Tarandė,
• Plotas - 149.75,
• Kambarių skaičius - 4 + sandėliukas/rūbinė,
• Statybos metai - 2015.
• Šildymas - autonominis (dujinis).
ĮRENGIMAS
• Grindys - kokybiškas laminatas ir plytelės,
• Sienos- dažytos,
• Langai - plastikiniai, orientuoti į Vakarų, Rytų ir Pietų kryptimis;
• Nuomojamas su baldais ir buitine technika.
PATALPŲ IŠDĖSTYMAS
• Pirmame aukšte: svetainė su židiniu, izoliuota virtuvė, tualeto kambarys bei boilerinė.
• Antrame aukšte: trys miegamieji, sandėliukas/ spintos kambarys bei tualetas sujungtas su vonios kambariu.
INFRASTRUKTŪRA
• 1,26 km iki Ukmergės g.
• 297 m iki viešojo transporto stotelės (Tomo Žebrausko, 52 autobusas)
• 2,2 km iki parduotuvės „IKI“
• 3 km iki PC BIG
• 1,6 km iki Vilniaus raj. Avižienių vid. mokyklos
• 1,7 km iki Vilniaus raj. Avižienių vaikų darželio
• 9,23 km iki Vilniaus miesto centro Visus naujausius CAPITAL nekilnojamojo turto skelbimus rasite mūsų internetiniame puslapyje www.capital.lt. Kviečiame apsilankyti!
Nuotraukos
























